1 bedroom house to rent
Raddlebarn Court - Studio Room, Selly Oak B29
Student
House
1 bed
6 baths
Key information
Council tax, if payable: Ask agent
Letting details
- Availability date: 1 Jul 2026
- Furnished
- Deposit: £500.00
- Long term let
- Student property
Features and description
- Available for 26/27 Academic Year
- Bills Included Option
- Recently Refurbished
- High Spec Finish
- En-Suite Available
- All Double Bedrooms
- Modern Kitchen
- Fully Furnished
- White Goods Included
- Professionals Welcome
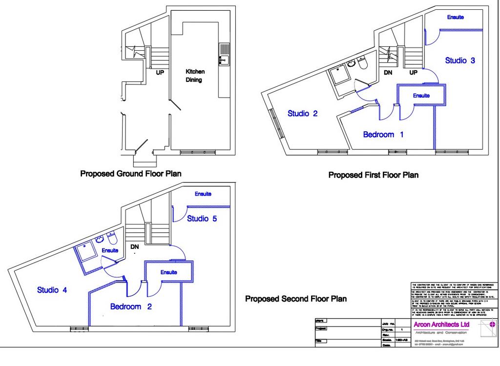
| £191 pppw inc bills | 6 Bedroom Property | Available for 26/27 Academic Year | Tenancy Start Date: 01/07/2026 | NEWLY REFURBISHED | CLOSE TO UNIVERSITY | Ref: 17364 | This newly renovated property will offer six en-suite bedrooms, four of which will be studio-style with private kitchenettes, designed with modern student living in mind. Each bedroom comfortably accommodates a double bed, wardrobe and desk. All bedrooms benefit from an en-suite shower room. The property is currently undergoing a full refurbishment to a high standard. Photos are illustrative of the expected finish based on a recently completed project. Full floor plans and a detailed specification will be available in January 2026. Positioned within easy reach of the university campus and local amenities. Where bills are included: Gas, electricity, water, TV licence, fibre broadband where possible (limited by a fair usage policy). Holding Deposit: £191 per person (one week's rent) Council Tax Band: C
Area statistics
Crime score
Moderate crime
6/10
Home prices (average)
1 bedroom houses
£183 pppw
£183 pppw
About this agent

Our vision, mission and values These are the guiding principals which help us to stay focused on building a business we're proud of and providing the service to our tenants and landlords we know they deserve. The Vision To build relationships and inspire people with great service, in order to grow into a national brand as leaders in student accommodation services. The Mission To be the best provider of student accommodation services in the country. Our Values Helpful: We’re helpful to every single client, and to the communities we serve. Honest: We’re honest and genuine, we manage expectations, and we believe in telling the truth. Fair: We treat out team, tenants, clients, and contractors fairly. Fun: We like to have fun, because along with quality and service, we just want to make people happy.
Similar properties
Discover similar properties nearby in a single step.





Area stats







