Total views: 820
Land for sale
The Woodlands, Whitchurch, BS14
Added yesterday
Land
Key information
Tenure: Freehold
Council tax: Ask agent
Broadband: Ultra-fast 1800Mbps *
Mobile signal:
EEO2ThreeVodafone
Features and description
- 950.76m2 Plot
- Planning Permission
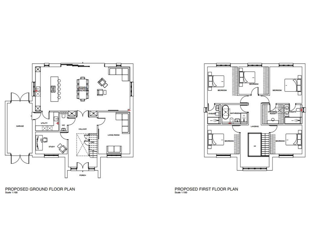
- 5 Bed Detached House
- Orchard Views
- Quiet Location
- Development Opportunity
CJ Hole are delighted to offer for sale Plot B The Woodlands, presenting a rare opportunity to acquire an individual building plot set within a desirable and well-established residential location, ideal for those seeking to create a bespoke home.
A fantastic opportunity to acquire a substantial plot of approximately 950.76m², positioned between two neighbouring plots of equal size. Quietly tucked away from busy roads, this attractive setting offers a wonderful sense of privacy while still being within easy reach of local amenities and nearby towns.
Full planning permission has already been granted for a large five-bedroom detached family home featuring a triple driveway, garage, and a spacious rear garden, allowing a buyer to move straight ahead with an impressive build. The proposed layout offers generous living areas and ample outdoor space, ideal for a growing family or those seeking a bespoke forever home.
Full plans can be found under planning application reference: 25/03390/VAR .
To the rear, the site enjoys a beautiful outlook across an orchard and open fields where horses and donkeys graze, providing a lovely rural backdrop and a genuine sense of countryside living. The peaceful position and natural surroundings create a rare lifestyle opportunity that feels both secluded and scenic.
An exceptional chance to create a substantial property in a quiet, established location with planning already in place, ready for someone’s vision to become reality.
Located in a quiet, rural area on the outskirts of Whitchurch, this plot is situated approximately 10 miles from Bath and 4 miles from Bristol City Centre. There is easy access to both cities with Bristol and Bath road only being a short distance away. Whitchurch has a number of local amenities such as shops, pubs, a supermarket, Sports Centre and Primary Schools, perfect for a growing family.
A fantastic opportunity to acquire a substantial plot of approximately 950.76m², positioned between two neighbouring plots of equal size. Quietly tucked away from busy roads, this attractive setting offers a wonderful sense of privacy while still being within easy reach of local amenities and nearby towns.
Full planning permission has already been granted for a large five-bedroom detached family home featuring a triple driveway, garage, and a spacious rear garden, allowing a buyer to move straight ahead with an impressive build. The proposed layout offers generous living areas and ample outdoor space, ideal for a growing family or those seeking a bespoke forever home.
Full plans can be found under planning application reference: 25/03390/VAR .
To the rear, the site enjoys a beautiful outlook across an orchard and open fields where horses and donkeys graze, providing a lovely rural backdrop and a genuine sense of countryside living. The peaceful position and natural surroundings create a rare lifestyle opportunity that feels both secluded and scenic.
An exceptional chance to create a substantial property in a quiet, established location with planning already in place, ready for someone’s vision to become reality.
Located in a quiet, rural area on the outskirts of Whitchurch, this plot is situated approximately 10 miles from Bath and 4 miles from Bristol City Centre. There is easy access to both cities with Bristol and Bath road only being a short distance away. Whitchurch has a number of local amenities such as shops, pubs, a supermarket, Sports Centre and Primary Schools, perfect for a growing family.
About this agent

We’re proud to have been serving the BS4 area, offering a wide range of properties for sale and to rent, not only in Brislington but also in St Annes, St Annes Park, Broomhill, Knowle, Stockwood, Totterdown, Arnos Vale, Hengrove, Whitchurch and Whitchurch Village. Director Paul Goverd has more than 25 years of industry experience and is passionate about delivering the very highest standard of service possible. He and his team all live locally, so are best placed to answer your questions on South Bristol and the local communities. Our main areas of business are residential sales, lettings and property management and financial services. The office is located on Sandy Park Road. At CJ Hole we pride ourselves on our high level of customer service, being an independence business who values it position on the local high street. If you have a property to sell or let in South Bristol, are looking for a new home in, or would like us to manage a property on your behalf, please do get in touch.








