Popular
Total views: 2500+
Offers over
£800,0004 bedroom barn conversion for sale
Payhembury, Honiton, Devon
New build
Study
ECO Friendly
Energy-efficient
Environmentally friendly
Barn conversion
4 beds
3 baths
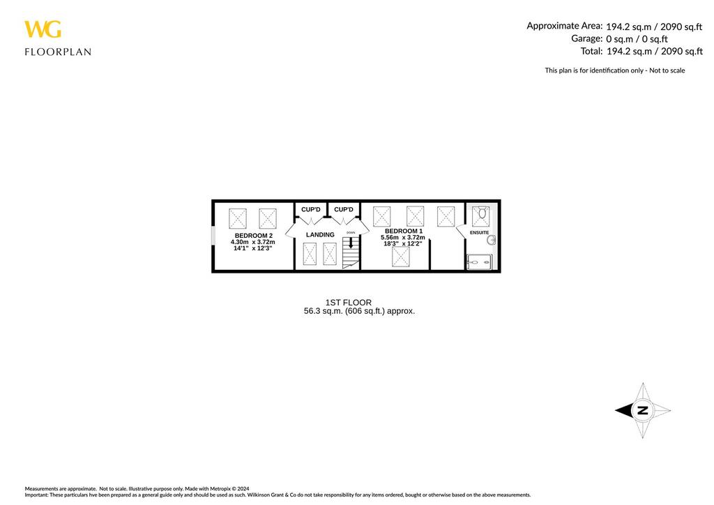
2090
Key information
Tenure: Freehold
Council tax: Ask agent
Features and description
- Versatile Accommodation
- Beautifully Finished
- High Specification
- Fully Fitted Kitchen with Integrated Appliances
- ECO Friendly
- Large Plot
- Double Car Port and Storage Shed
- Edge of Village Location
- New Homes Warranty
Video tours
Description
Representing an outstanding example of modern architectural vision, Braeburn Barn is a newly completed residence situated on the original, coveted footprint of Egremont Farm's agricultural barns.
One of only four unique, high-specification properties, Braeburn Barn has been meticulously completed to surpass the very latest building and energy efficiency regulations, establishing it as an exceptionally energy-efficient and environmentally friendly home.
The accommodation seamlessly blends contemporary living with classic, comfortable country style, incorporating a lavish selection of expensive fittings and high-end finishes throughout to create a deeply attractive and comfortable family home.
Upon approach, you are greeted by an impressive front door which opens into the magnificent reception Hall. This space immediately sets the tone for the home's quality, featuring a spectacular, hand-finished Italian oak cantilever staircase, a testament to the skill of local engineers and craftsmen. The adjacent feature wall is a stunning work of art, hand-finished in Venetian plaster by a nationally renowned local expert.
This impressive staircase ascends to a galleried landing, complete with a stainless steel and glazed balustrade, ensuring the hall remains a light, airy, and spacious entry point. Practicality is not overlooked, with a large fitted storage cupboard conveniently placed for coats and shoes, alongside further useful storage beneath the landing.
The Hall flows naturally into the heart of the home, a generously proportioned open-plan Kitchen, dining and Family Room. This vast space offers ample room for both formal dining and a comfortable sitting or play area.
The bespoke kitchen is beautifully finished in a classic navy blue Shaker style complemented by elegant white Silestone work surfaces. An array of integral Siemens appliances, including a five-ring induction hob, an electric oven, a second combination/microwave oven, and a full-height fridge and sought-after Quooker tap for instant boiling water. The central island suite incorporates a relaxed breakfast bar and a perfectly placed wine cooler.
Bifold doors connect the kitchen to the external patio and garden, which benefits from a desirable sunny, southerly aspect, providing the perfect setting for summer barbecues and al fresco dining.
Ensuring year-round comfort, the entire ground floor is equipped with underfloor heating beneath beautiful floor tiling. For ultimate control, the downstairs bathroom and the principal en-suite shower room benefit from dedicated underfloor heating systems that can be operated in isolation.
The adjoining Utility Room is fitted in the same high-quality style as the kitchen, housing a full-height freezer and featuring a highly useful external access door.
The well-designed, versatile layout incorporates two substantial ground floor bedrooms. The first offers flexibility as an ideal home office or study, while the second boasts an opulent en-suite shower room, perfect for guests or multi-generational living.
Separately, the living room is a generous and peaceful retreat, strategically positioned away from the main kitchen and family area, offering the perfect sanctuary for relaxing at the end of the day.
The light and spacious galleried landing on the first floor provides extensive storage via two built-in double wardrobe cupboards. Bedrooms are positioned to either side of the landing.
The Principal Bedroom is a beautiful retreat, benefiting from excellent natural light via Velux windows and featuring a beautifully tiled, luxurious en-suite shower room. The impressive second bedroom on this floor overlooks the living space below and offers further versatility, potentially serving as a sophisticated second sitting room, a dedicated dressing room, or a spacious study, completing the comprehensive and adaptable suite of accommodation.
The property is accessed via a gravelled entrance drive which leads to the driveway for the property offering parking beneath a substantial oak car port designated exclusively for Braeburn Barn.
This exceptional home combines local craftsmanship, stunning design, and superior energy performance, promising a future of comfortable and stylish country living.
Situation
Within just a few miles, you'll discover the highly sought-after villages of Broadhembury, Payhembury, and Plymtree. These vibrant communities provide a fantastic suite of local amenities, ensuring daily life is convenient and connected. Residents benefit from popular primary schools, handy local stores, active village halls, historic churches, and welcoming local pubs, all essential hubs of village life.
For broader needs, the larger market towns of Honiton and Cullompton are only a short drive away. Here you will find extensive services, including major supermarkets and a wider array of shopping. Crucially, the location offers excellent transport links: quick access to the M5 motorway, direct rail connections, and the A30/A303 corridor provide swift travel to the wider region and the East.
Directions
From Exeter, take the M5 Northbound to Junction 28, take a right onto the A373 and stay on this road for approximately 5.2miles. Take a right where the road is signposted to Broadhembury and follow this road for 0.4miles where you will turn right again. The development can be found on your right hand side.
Representing an outstanding example of modern architectural vision, Braeburn Barn is a newly completed residence situated on the original, coveted footprint of Egremont Farm's agricultural barns.
One of only four unique, high-specification properties, Braeburn Barn has been meticulously completed to surpass the very latest building and energy efficiency regulations, establishing it as an exceptionally energy-efficient and environmentally friendly home.
The accommodation seamlessly blends contemporary living with classic, comfortable country style, incorporating a lavish selection of expensive fittings and high-end finishes throughout to create a deeply attractive and comfortable family home.
Upon approach, you are greeted by an impressive front door which opens into the magnificent reception Hall. This space immediately sets the tone for the home's quality, featuring a spectacular, hand-finished Italian oak cantilever staircase, a testament to the skill of local engineers and craftsmen. The adjacent feature wall is a stunning work of art, hand-finished in Venetian plaster by a nationally renowned local expert.
This impressive staircase ascends to a galleried landing, complete with a stainless steel and glazed balustrade, ensuring the hall remains a light, airy, and spacious entry point. Practicality is not overlooked, with a large fitted storage cupboard conveniently placed for coats and shoes, alongside further useful storage beneath the landing.
The Hall flows naturally into the heart of the home, a generously proportioned open-plan Kitchen, dining and Family Room. This vast space offers ample room for both formal dining and a comfortable sitting or play area.
The bespoke kitchen is beautifully finished in a classic navy blue Shaker style complemented by elegant white Silestone work surfaces. An array of integral Siemens appliances, including a five-ring induction hob, an electric oven, a second combination/microwave oven, and a full-height fridge and sought-after Quooker tap for instant boiling water. The central island suite incorporates a relaxed breakfast bar and a perfectly placed wine cooler.
Bifold doors connect the kitchen to the external patio and garden, which benefits from a desirable sunny, southerly aspect, providing the perfect setting for summer barbecues and al fresco dining.
Ensuring year-round comfort, the entire ground floor is equipped with underfloor heating beneath beautiful floor tiling. For ultimate control, the downstairs bathroom and the principal en-suite shower room benefit from dedicated underfloor heating systems that can be operated in isolation.
The adjoining Utility Room is fitted in the same high-quality style as the kitchen, housing a full-height freezer and featuring a highly useful external access door.
The well-designed, versatile layout incorporates two substantial ground floor bedrooms. The first offers flexibility as an ideal home office or study, while the second boasts an opulent en-suite shower room, perfect for guests or multi-generational living.
Separately, the living room is a generous and peaceful retreat, strategically positioned away from the main kitchen and family area, offering the perfect sanctuary for relaxing at the end of the day.
The light and spacious galleried landing on the first floor provides extensive storage via two built-in double wardrobe cupboards. Bedrooms are positioned to either side of the landing.
The Principal Bedroom is a beautiful retreat, benefiting from excellent natural light via Velux windows and featuring a beautifully tiled, luxurious en-suite shower room. The impressive second bedroom on this floor overlooks the living space below and offers further versatility, potentially serving as a sophisticated second sitting room, a dedicated dressing room, or a spacious study, completing the comprehensive and adaptable suite of accommodation.
The property is accessed via a gravelled entrance drive which leads to the driveway for the property offering parking beneath a substantial oak car port designated exclusively for Braeburn Barn.
This exceptional home combines local craftsmanship, stunning design, and superior energy performance, promising a future of comfortable and stylish country living.
Situation
Within just a few miles, you'll discover the highly sought-after villages of Broadhembury, Payhembury, and Plymtree. These vibrant communities provide a fantastic suite of local amenities, ensuring daily life is convenient and connected. Residents benefit from popular primary schools, handy local stores, active village halls, historic churches, and welcoming local pubs, all essential hubs of village life.
For broader needs, the larger market towns of Honiton and Cullompton are only a short drive away. Here you will find extensive services, including major supermarkets and a wider array of shopping. Crucially, the location offers excellent transport links: quick access to the M5 motorway, direct rail connections, and the A30/A303 corridor provide swift travel to the wider region and the East.
Directions
From Exeter, take the M5 Northbound to Junction 28, take a right onto the A373 and stay on this road for approximately 5.2miles. Take a right where the road is signposted to Broadhembury and follow this road for 0.4miles where you will turn right again. The development can be found on your right hand side.
Property information from this agent
About this agent

Founded in 1995 and built on the practices and principles of traditional Independent Estate Agency, Wilkinson Grant & Co are firmly established as one of the leading Estate Agencies in the South West Property market. We consistently outperform other local agencies for these key reasons: WG is the only agency with a detailed strategy and proven track record for selling houses in 60 days We list and sell more properties in our core market than our nearest top three competitors combined We are the only local agency where each property is individually managed by two dedicated senior team members – ensuring your property sale or lettings is in safe hands WG is the only local agency with a detailed proven successful Open House marketing strategy – which means you get more buyers through your door on shorter period of time We are the only agency in Exeter or Topsham with Park Lane, Mayfair estate agency Showroom offices, directly accessing London buyers 24/7 every day until sold. We also list on all internet property portals.

















Floorplan