Popular
Total views: 2500+
4 bedroom detached house for sale
Ilkeston Road, Stapleford
Detached house
4 beds
2 baths
Matterport 3D tour
Key information
Tenure: Freehold
Council tax: Ask agent
Broadband: Ultra-fast 1000Mbps *
Mobile signal:
EEO2ThreeVodafone
Features and description
- New build detached house
- Peveril homes development
- Popular location
- Easy access to good schools
- 1499 sqft
- Contact robert ellis for more information
FIELD FARM - PHASE 2.
*THE WILLESLEY*
1499 SQFT
Developed by Peveril Homes
Viewings and further information via Robert Ellis Stapleford[use Contact Agent Button].
WELCOME TO FIELD FARM.
*WILLESLEY*
Robert Ellis are delighted to welcome Field Farm, Stapleford developed by Peveril Homes.
This is a four bedroom, two bathroom, three toilet detached family home with single garage.
Measuring approx 1499 sqft.
Situated on the outer rim of Stapleford, bordering Trowell, the site is ideally located close to a range of nearby transport links such as the A52, M1 and Nottingham Tram line as well as good local schooling and nearby shopping and the countryside.
For more information contact Robert Ellis on[use Contact Agent Button].
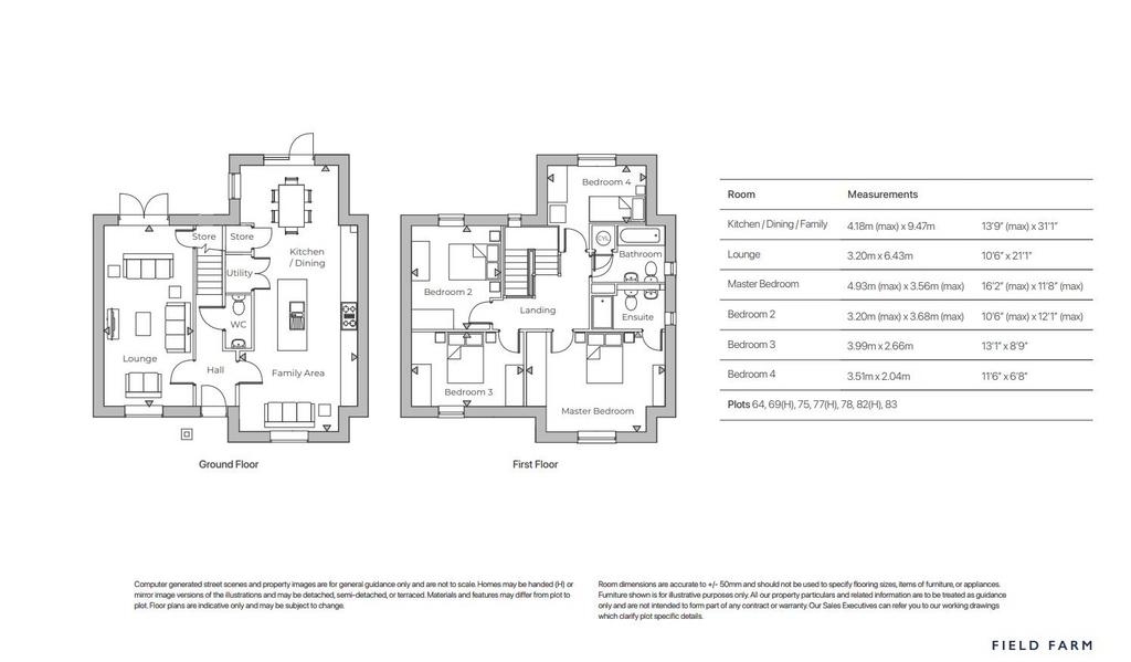
Hall -
Wc -
Kitchen/Dining Family Area - 9.47 x 4.18 (31'0" x 13'8") -
Living Room - 6.43 x 3.20 (21'1" x 10'5") -
Landing -
Master Bedroom - 4.93 x 3.56 (16'2" x 11'8") -
En-Suite -
Bedroom 2 - 3.68 x 3.20 (12'0" x 10'5") -
Bedroom 3 - 3.99 x 2.66 (13'1" x 8'8") -
Bedroom 4 - 3.51 x 2.04 (11'6" x 6'8") -
Bathroom -
Peace Of Mind - Each home will be independently surveyed during construction by LABC, who will issue their 10 year warranty certificate on completion of each homE
A NEW BUILD, FOUR BEDROOM DETACHED HOUSE.
*THE WILLESLEY*
1499 SQFT
Developed by Peveril Homes
Viewings and further information via Robert Ellis Stapleford[use Contact Agent Button].
WELCOME TO FIELD FARM.
*WILLESLEY*
Robert Ellis are delighted to welcome Field Farm, Stapleford developed by Peveril Homes.
This is a four bedroom, two bathroom, three toilet detached family home with single garage.
Measuring approx 1499 sqft.
Situated on the outer rim of Stapleford, bordering Trowell, the site is ideally located close to a range of nearby transport links such as the A52, M1 and Nottingham Tram line as well as good local schooling and nearby shopping and the countryside.
For more information contact Robert Ellis on[use Contact Agent Button].
Hall -
Wc -
Kitchen/Dining Family Area - 9.47 x 4.18 (31'0" x 13'8") -
Living Room - 6.43 x 3.20 (21'1" x 10'5") -
Landing -
Master Bedroom - 4.93 x 3.56 (16'2" x 11'8") -
En-Suite -
Bedroom 2 - 3.68 x 3.20 (12'0" x 10'5") -
Bedroom 3 - 3.99 x 2.66 (13'1" x 8'8") -
Bedroom 4 - 3.51 x 2.04 (11'6" x 6'8") -
Bathroom -
Peace Of Mind - Each home will be independently surveyed during construction by LABC, who will issue their 10 year warranty certificate on completion of each homE
A NEW BUILD, FOUR BEDROOM DETACHED HOUSE.
Property information from this agent
About this agent

Established in 1988, we have facilitated the sale of over 30,000 properties around the West Nottingham and South Derbyshire villages and suburbs. Our team possess a wealth of knowledge about the areas we cover, with many of them being part of the Robert Ellis family for over 10 years, and some over 20, so you can be sure we always uphold our values in quality of service and customer satisfaction. We operate out of three towns, Long Eaton, Beeston and Stapleford with high profile, easily recognisable dedicated sales and lettings branches in each town centre. These branches allow us to reach out to the neighbouring suburbs and villages such as Breaston, Draycott, Castle Donington, Sawley, Borrowash, Sandiacre, Risley, Stanton By Dale, Dale Abbey, Toton, Trowell, Ilkeston, Bramcote, Chilwell and Wollaton.
Similar properties
Discover similar properties nearby in a single step.















Floorplans (







