Featured
Guide price
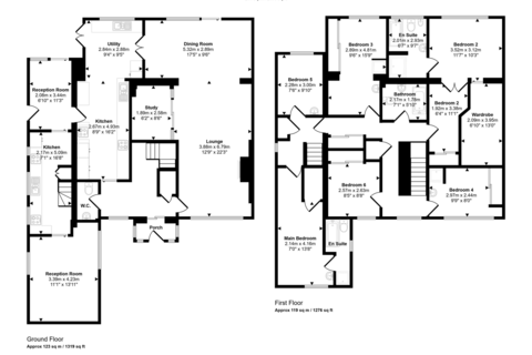
£325,0003 bedroom semi-detached house for sale
31
Tenure: FreeholdBeautifully presented semi-detached houseWell fitted kitchen, packed with appliancesBrick built conservatory overlooking garden

Added > 14 days
Wards - Herne Bay
Added > 14 days01227 319769

























































































































































