Featured
Price on application
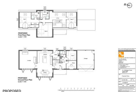
POAUnconditional offers soughtResolution to grant planning permission for 9Apartments, including one duplexIn a central location of a desirable market town

Added today
Carter Jonas - Cambridge Lettings
Added today01223 784769
















































































