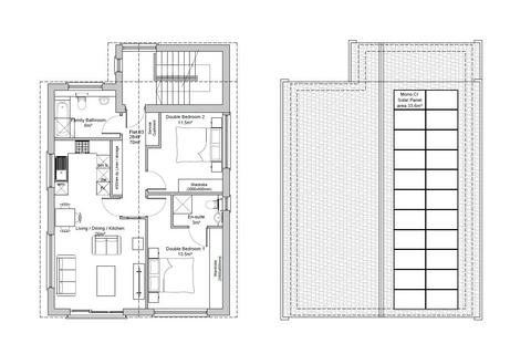
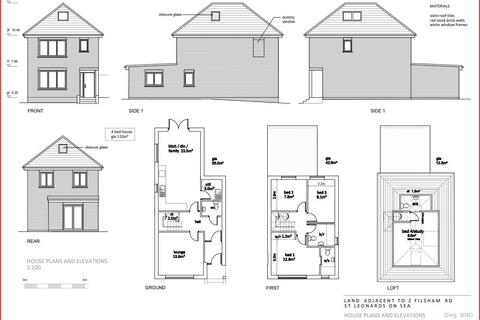
Looking for an affordable way to buy? These Shared Ownership homes could be perfect for you.
2-4 bed homes in Hailsham
Enjoy modern living close to town conveniencesAll-inclusive specification - no extras needed!Great transport links for work and leisure trips














































































