Popular
Total views: 2500+
6 bedroom detached house for sale
St Lawrence
Detached house
6 beds
8 baths
Key information
Tenure: Freehold
Council tax: Ask agent
Features and description
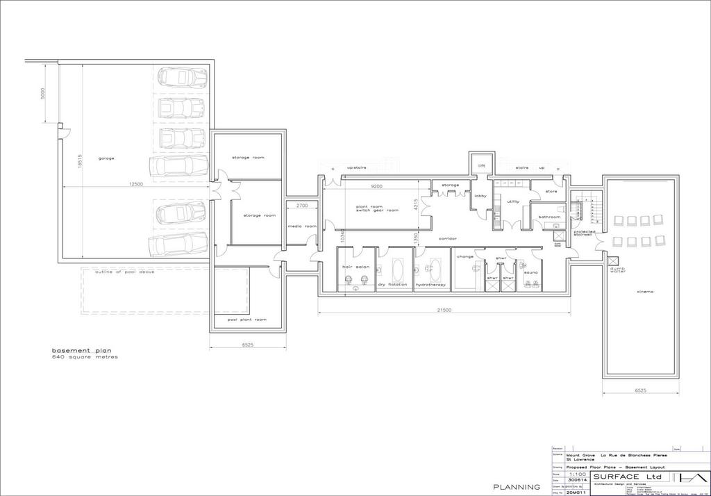
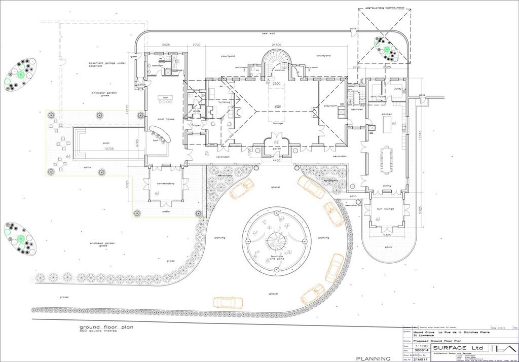
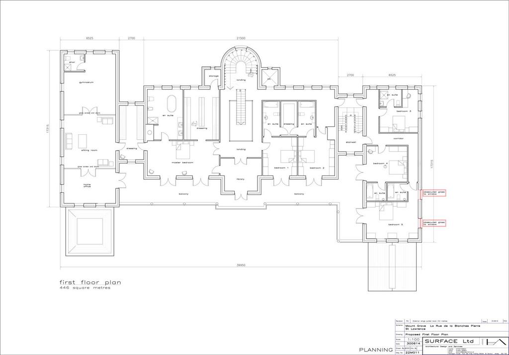
With superb sea views Set on the South of the island, a most exceptional opportunity to acquire this very extensive property (site area 24,305 sq. meters) which enjoys the benefit of a current planning permit, to construct a most outstanding large family residence, providing some 18,000 sq. ft. of accommodation (including integral garaging).
The site is set in one of Jersey's most exclusive locations and extends to several acres with full South facing aspect and fine sea views that extend over St Aubin's Bay. Conveniently located and set approximately equidistant between the island's capital and the airport.
-A VIRTUALLY UNIQUE OPPORTUNITY TO DEVELOP ONE OF JERSEY'S PREMIER HOMES-
Notice
Please note we have not tested any apparatus, fixtures, fittings, or services. Interested parties must undertake their own investigation into the working order of these items. All measurements are approximate and photographs provided for guidance only.
The site is set in one of Jersey's most exclusive locations and extends to several acres with full South facing aspect and fine sea views that extend over St Aubin's Bay. Conveniently located and set approximately equidistant between the island's capital and the airport.
-A VIRTUALLY UNIQUE OPPORTUNITY TO DEVELOP ONE OF JERSEY'S PREMIER HOMES-
Notice
Please note we have not tested any apparatus, fixtures, fittings, or services. Interested parties must undertake their own investigation into the working order of these items. All measurements are approximate and photographs provided for guidance only.
Property information from this agent
About this agent

Wilsons Knight Frank is a conveniently based Jersey residential agency in St Helier, specialising in all aspects of the local property market. Providing our clients with the benefits of our unequalled contacts and experience, as well as giving access to the widest availability of both national and international purchasers via the proven Knight Frank global network. Knight Frank is recognised as a market leader in the international real estate industry.



























