Total views: 340
Guide price
£3,950,000Detached house for sale
Ravenscroft Road, St George's Hill, Weybridge, Surrey, KT13
Featured
Recently added
Detached house
1.48 acre(s)
Key information
Tenure: Freehold
Council tax: Band H
Broadband: Ultra-fast 1800Mbps *
Mobile signal:
EEO2ThreeVodafone
Features and description
- Prime plot of approximately 1.48 acres within the prestigious and internationally renowned St George’s Hill Estate.
- Full planning permission granted for demolition of the existing house and construction of a new residence.
- Elevated position offering far reaching views, superb privacy, and an impressive sense of space.
- Flexible footprint ideal for expansive architecture, landscaped gardens, and luxury outdoor amenities.
- Access to premium estate facilities, including 24hour security, world class tennis club, gym, squash courts, and swimming pools.
An exceptional plot in St George’s Hill with panoramic Surrey views.
Description
We are delighted to present this exceptional plot of approximately 1.48 acres , set within the prestigious and internationally acclaimed St George’s Hill Estate. This rare offering provides an outstanding opportunity to create a truly bespoke residence in one of Surrey’s most exclusive and sought after private communities.
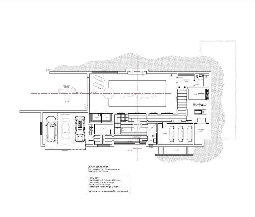
The site currently comprises an existing property, with full planning permission granted for its demolition, and the build of the Andrew Malcolm inspired residence, in keeping with the CGI concept shown opposite; maximizing both the beauty and scale of the surrounding landscape. Planning permission reference: 2025/2864
Positioned on one of the estate’s most desirable roads, the plot enjoys a fabulous elevated outlook across Surrey, offering wonderful privacy and an impressive sense of space. The generous acreage provides flexibility for expansive architecture, landscaped gardens, and luxury outdoor amenities.
St George’s Hill is celebrated for it’s exclusivity and security, offering residents 24 hour gated security, beautifully maintained grounds, and access to a superb range of leisure facilities. The estate is home to the St George’s Hill Lawn Tennis Club, with world class tennis courts, a state of the art gym, squash facilities, swimming pools, and a vibrant social scene.
This is an exceptional chance to secure a premium plot within an elite private estate and create a landmark home tailored entirely to personal taste and lifestyle.
CGI images courtesy of Andrew Malcolm Architecture.
Location
St George’s Hill is one of England’s most prestigious private estates, renowned internationally for its exclusivity, security and beautifully landscaped setting. The gated estate spans around 900 acres, offering 24 hour controlled access, a championship golf course, and an exceptional private tennis and squash club with multiple courts, an indoor pool, gym and restaurant.
The surrounding area offers an abundance of leisure opportunities, with further outstanding golf courses nearby including Wisley, Burhill and Foxhills, as well as world class racing at Ascot, Sandown and Epsom, and polo at Guards Polo Club. The location is ideal for families seeking privacy and excellent education, with leading schools such as Reed’s, St George’s College and ACS Cobham, along with a wide choice of Ofsted rated good and outstanding local schools.
Close by, Weybridge enjoys a rich heritage and a vibrant community. Positioned where the rivers Thames and Wey meet, the town offers historic landmarks, riverside walks and the celebrated Brooklands Museum, home of the UK’s first purpose built motor racing circuit. Today, Weybridge provides an exceptional lifestyle with water sports on the Thames, numerous sports clubs, and a wide selection of restaurants, pubs, cafés and boutiques, alongside theatres, cinemas and cultural attractions.
Excellent transport links include proximity to Junction 11 of the M25 and fast trains to London Waterloo from 31 minutes, making it a superbly connected yet peaceful place to live.
Distances are approximate.
Acreage: 1.48 Acres
Additional Info
EPC Exemption: This building is exempt from EPC requirements as planning permission has been granted for the property to be demolished (Planning Ref 2025/2864).
This property is subject to St Georges Hill Residents Association annual charge.
Description
We are delighted to present this exceptional plot of approximately 1.48 acres , set within the prestigious and internationally acclaimed St George’s Hill Estate. This rare offering provides an outstanding opportunity to create a truly bespoke residence in one of Surrey’s most exclusive and sought after private communities.
The site currently comprises an existing property, with full planning permission granted for its demolition, and the build of the Andrew Malcolm inspired residence, in keeping with the CGI concept shown opposite; maximizing both the beauty and scale of the surrounding landscape. Planning permission reference: 2025/2864
Positioned on one of the estate’s most desirable roads, the plot enjoys a fabulous elevated outlook across Surrey, offering wonderful privacy and an impressive sense of space. The generous acreage provides flexibility for expansive architecture, landscaped gardens, and luxury outdoor amenities.
St George’s Hill is celebrated for it’s exclusivity and security, offering residents 24 hour gated security, beautifully maintained grounds, and access to a superb range of leisure facilities. The estate is home to the St George’s Hill Lawn Tennis Club, with world class tennis courts, a state of the art gym, squash facilities, swimming pools, and a vibrant social scene.
This is an exceptional chance to secure a premium plot within an elite private estate and create a landmark home tailored entirely to personal taste and lifestyle.
CGI images courtesy of Andrew Malcolm Architecture.
Location
St George’s Hill is one of England’s most prestigious private estates, renowned internationally for its exclusivity, security and beautifully landscaped setting. The gated estate spans around 900 acres, offering 24 hour controlled access, a championship golf course, and an exceptional private tennis and squash club with multiple courts, an indoor pool, gym and restaurant.
The surrounding area offers an abundance of leisure opportunities, with further outstanding golf courses nearby including Wisley, Burhill and Foxhills, as well as world class racing at Ascot, Sandown and Epsom, and polo at Guards Polo Club. The location is ideal for families seeking privacy and excellent education, with leading schools such as Reed’s, St George’s College and ACS Cobham, along with a wide choice of Ofsted rated good and outstanding local schools.
Close by, Weybridge enjoys a rich heritage and a vibrant community. Positioned where the rivers Thames and Wey meet, the town offers historic landmarks, riverside walks and the celebrated Brooklands Museum, home of the UK’s first purpose built motor racing circuit. Today, Weybridge provides an exceptional lifestyle with water sports on the Thames, numerous sports clubs, and a wide selection of restaurants, pubs, cafés and boutiques, alongside theatres, cinemas and cultural attractions.
Excellent transport links include proximity to Junction 11 of the M25 and fast trains to London Waterloo from 31 minutes, making it a superbly connected yet peaceful place to live.
Distances are approximate.
Acreage: 1.48 Acres
Additional Info
EPC Exemption: This building is exempt from EPC requirements as planning permission has been granted for the property to be demolished (Planning Ref 2025/2864).
This property is subject to St Georges Hill Residents Association annual charge.
Area statistics
Crime score
Low crime
0/10
About this agent

At Savills Weybridge, our residential experts offer a full residential service including property sales, lettings and management, and corporate relocation, even helping with raising funding and insurance. We predominantly focus on Weybridge and Walton-on-Thames, but also cover the surrounding towns, such as West Byfleet, Byfleet, Pyrford, Chertsey, Ottershaw and Sunbury-on-Thames. We also have a track record of selling and letting the special houses in the Weybridge private estates, including property in St George’s Hill, Burwood Park, Ashley Park and Weybridge Park. Most visited website Savills.co.uk is the most visited UK national estate agency website, averaging over 2.4 million visits a month in 2020, and recording over 3.1 million visits in January 2021. Global exposure Our site is available in 22 languages including English, Chinese, Spanish and Russian. This guarantees your property will have the global exposure it deserves as well as providing access to more buyers via our website. Put simply, because we get more qualified visits, you get more opportunities to sell.













Area stats