1 bedroom flat to rent
Beaufoy Close, Shaftesbury
Added today
Flat
1 bed
1 bath
EPC rating: E
Key information
Council tax: Band A
Letting details
- Deposit: £865
Features and description
- First Floor Apartment
- One Double Bedroom
- Open Plan Living
- Allocated Parking Space
- Recently Renovated
- Close to the Town
- No Onward Chain
- Energy Efficiency Rating E
A newly redecorated first-floor flat offering well-proportioned accommodation, available to let in Shaftesbury. The property comprises a spacious double bedroom featuring laminate flooring, a curtain pole to the window, and ample electrical sockets.
The open-plan kitchen/living area is generously sized and benefits from excellent natural light from windows on either side of the room. The kitchen is fitted with a built-in electric hob, single oven, and a range of modern storage cupboards, with space and plumbing for a washing machine.
The living area overlooks the front of the property and includes laminate flooring, a good-sized radiator, and a curtain pole. The bathroom is fully tiled and fitted with a bath with shower over.
The property is well presented throughout and an internal viewing is highly recommended.
Available January
Sorry No Smokers and No vapers
Not suitable for children or pets
EPC Rating Band 'E'
Council Tax Band 'A'
Deposit Required £865.00 (1 week before the move in date along with the rent)
Subject to Referencing, 1 weeks (£170.00) holding deposit will be required.
Landlord has the right to refuse
Accommodation -
Inside -
Hall - Metal steps rise to the balcony where the apartment will be found to the right hand side. uPVC front door with inset arched glass pane and spyhole opens into a welcoming entrance hall. Panelled ceiling with recessed lights. Access to the loft space. Coved. Power points. Storage cupboard. Tiled floor in a high gloss finish with speckles and matching skirting board. Modern white doors to the bathroom and bedroom plus opening to the:-
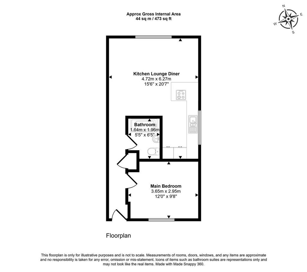
Open Plan Living - 4.04m'' x 4.75m'' (13'3'' x 15'7'') - Window with granite effect sill to the front of the building. Panelled ceiling with recessed lights. Coved. Wall lights. Electric radiator. Power and television points. Wood effect laminate flooring and matching skirting plus partly tiled floor in granite effect tile with matching skirting. Work surface peninsula dividing the areas with store cupboard under. Opens to the:-
Kitchen - 2.18m'' x 1.85m'' (7'2'' x 6'1'') - Window with granite style sill to the side of the building. Panelled ceiling with recessed lights. Plenty of power points. Fitted with a range of modern kitchen units consisting of floor cupboards with drawers and corner carousel, separate drawer unit with soft closing cutlery and deep pan drawers and eye level cupboards. Wood effect work surfaces with matching upstand and part tiled walls in a granite effect finish. Circular sink and drainer with swan neck mixer tap. Built in electric oven and ceramic hob. Space and plumbing for a washing machine. Granite effect tiled floor with matching skirting.
Bedroom - 2.97m'' x 3.61m'' (9'9'' x 11'10'') - Window to the rear of the building with tiled sill. Panelled ceiling with recessed ceiling lights. Coved. Wall lights. Electric radiator. Power, telephone and television points. Low level electrical consumer unit. Wood effect laminate flooring and matching skirting board.
Bathroom - Panelled ceiling with recessed ceiling lights and one combination light/extractor fan. Coved. Fitted with a modern suite consisting of bath with mixer tap and shower attachment, wall hung wash hand basin with mono tap and mirror fronted bathroom cabinet over plus corner low level WC with dual flush facility. Wall mounted fan heater. Tiled walls. Tiled floor in a high gloss finish with speckles.
Outside -
Parking - There is one allocated parking space, which will be found at the end of the carpark closest to the side of the building - adjacent to the striped yellow lines.
Directions -
From Gillingham - Leave Gillingham via Newbury heading towards Shaftesbury. At the first roundabout (Ivy Cross) take the fourth exit onto Christy's Lane. At the roundabout take the first exit into Pound Lane and first turning left into King Alfreds Way. Turn right into Beaufoy Close and bear to the left - into the Coop carpark. The property will be found above the Coop store. The entrance is to the rear. Postcode SP7 8EN
The open-plan kitchen/living area is generously sized and benefits from excellent natural light from windows on either side of the room. The kitchen is fitted with a built-in electric hob, single oven, and a range of modern storage cupboards, with space and plumbing for a washing machine.
The living area overlooks the front of the property and includes laminate flooring, a good-sized radiator, and a curtain pole. The bathroom is fully tiled and fitted with a bath with shower over.
The property is well presented throughout and an internal viewing is highly recommended.
Available January
Sorry No Smokers and No vapers
Not suitable for children or pets
EPC Rating Band 'E'
Council Tax Band 'A'
Deposit Required £865.00 (1 week before the move in date along with the rent)
Subject to Referencing, 1 weeks (£170.00) holding deposit will be required.
Landlord has the right to refuse
Accommodation -
Inside -
Hall - Metal steps rise to the balcony where the apartment will be found to the right hand side. uPVC front door with inset arched glass pane and spyhole opens into a welcoming entrance hall. Panelled ceiling with recessed lights. Access to the loft space. Coved. Power points. Storage cupboard. Tiled floor in a high gloss finish with speckles and matching skirting board. Modern white doors to the bathroom and bedroom plus opening to the:-
Open Plan Living - 4.04m'' x 4.75m'' (13'3'' x 15'7'') - Window with granite effect sill to the front of the building. Panelled ceiling with recessed lights. Coved. Wall lights. Electric radiator. Power and television points. Wood effect laminate flooring and matching skirting plus partly tiled floor in granite effect tile with matching skirting. Work surface peninsula dividing the areas with store cupboard under. Opens to the:-
Kitchen - 2.18m'' x 1.85m'' (7'2'' x 6'1'') - Window with granite style sill to the side of the building. Panelled ceiling with recessed lights. Plenty of power points. Fitted with a range of modern kitchen units consisting of floor cupboards with drawers and corner carousel, separate drawer unit with soft closing cutlery and deep pan drawers and eye level cupboards. Wood effect work surfaces with matching upstand and part tiled walls in a granite effect finish. Circular sink and drainer with swan neck mixer tap. Built in electric oven and ceramic hob. Space and plumbing for a washing machine. Granite effect tiled floor with matching skirting.
Bedroom - 2.97m'' x 3.61m'' (9'9'' x 11'10'') - Window to the rear of the building with tiled sill. Panelled ceiling with recessed ceiling lights. Coved. Wall lights. Electric radiator. Power, telephone and television points. Low level electrical consumer unit. Wood effect laminate flooring and matching skirting board.
Bathroom - Panelled ceiling with recessed ceiling lights and one combination light/extractor fan. Coved. Fitted with a modern suite consisting of bath with mixer tap and shower attachment, wall hung wash hand basin with mono tap and mirror fronted bathroom cabinet over plus corner low level WC with dual flush facility. Wall mounted fan heater. Tiled walls. Tiled floor in a high gloss finish with speckles.
Outside -
Parking - There is one allocated parking space, which will be found at the end of the carpark closest to the side of the building - adjacent to the striped yellow lines.
Directions -
From Gillingham - Leave Gillingham via Newbury heading towards Shaftesbury. At the first roundabout (Ivy Cross) take the fourth exit onto Christy's Lane. At the roundabout take the first exit into Pound Lane and first turning left into King Alfreds Way. Turn right into Beaufoy Close and bear to the left - into the Coop carpark. The property will be found above the Coop store. The entrance is to the rear. Postcode SP7 8EN
Property information from this agent
About this agent

Morton New - Sturminster
1 Market Place, Market Place
Sturminster Newton, Dorset
DT10 1AS
01258 429118At Morton New, all our staff are passionate about property and understand that selling and buying, letting your property or renting a property are particularly stressful times for people. With our expertise, we aim to alleviate the pressure by reducing timescales and achieve the best possible price for you whilst guiding you through to a successful completion. The company is owned and run by the director, Bryony Sandison, who has a hands on approach to the day to day running of all the offices and creates a family atmosphere amongst all that work for Morton New. A certain pride exists at Morton New where each and every member of the team take ownership for their actions to ensure that every client experiences a memorable and pleasurable journey. Every employee has a detailed knowledge of the areas covered and what is happening within the market place as well as having strong selling and powerful negotiation skills all with a ‘can do attitude’. Our desire is to exceed our customers expectations, from the initial enquiry right through to handing over keys on completion day. Our good reputation stems from excellent communication skills and customer service standards, which have lead to the majority of our business coming from client recommendations. Our low staff turnover means that every time you call or visit us, there will be the same person available to update you on any developments on your property. Communication is vital to any relationship and we ensure that you are kept informed through concise and constructive feedback from viewers, honest advice as to marketing your property and constant guidance from accepting or making an offer through to the end of the journey.











Floorplan