Popular
Total views: 2500+
Guide price
£150,000Land for sale
Foxbeare Road, Hele, Ilfracombe, Devon, EX34
Featured
Study
Land
1.54 acre(s)
Key information
Tenure: Freehold
Council tax: Ask agent
Features and description
- Large building plot of approximately 1.54 acres (0.623 hectares)
- Outskirts of the town
- Plans previously approved under application number 56250
- Former approval for 3 high quality detached homes of approx. 186m2 (2000ft2)
- 4-bedroom accommodation arranged over 3 floors
- Double garages
- Approval subject to final 106 Agreement
- Views over the Chambercombe Valley and countryside
- A few hundred metres from Hele Bay Beach
- Option to revise planning permission for alternative residential scheme
Video tours
An opportunity arises to purchase a substantial building plot of approximately 1.54 acre (0.62 hectares) located on the outskirts of the town enjoying a sunny position with south facing views up the Chambercombe Valley and over the countryside.
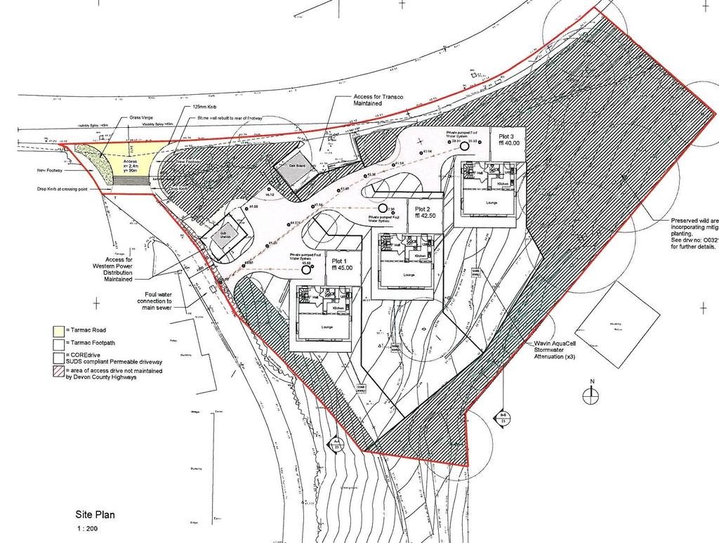
Plans were previously approved under application number 56250 by North Devon District Council for the construction of three high quality and spacious 4 bedroom detached family homes of approximately 186m2 (2000ft2), together with double garages and parking and gardens. (The consent has now lapsed but will be reinstated by the current owner).
As part of the previous planning permission there is a 106 agreement requiring the developer to contribute £16,144.50 towards Public Open Space. There was also the need to enhance the access to the site from the junction of Foxbeare Road and Watermouth Road and the road surface itself down to the site entrance. The land is also subject to an overage clause requiring £25,000 per plot to be paid to the original land owner on completion of the respective houses.
Planning permission would need to be resubmitted again and a decision determined by the local authority. There may be different planning conditions or s106 agreement imposed for any new application that is submitted.
The development will be accessed from Foxbeare Road onto a new, private section of road which will lead to each of the three properties. Each of the previously proposed houses will be split level in design and typically comprise a large open living room and kitchen area with bi-fold glass doors opening onto a south facing balcony enjoying the countryside views. There will be a kitchen, utility room and cloakroom/wc completing the ground floor accommodation. On the first floor there is a master bedroom with dressing area and access into an en suite bathroom which is also shared with Bedroom 2. The lower ground floor accommodation comprises two further double bedrooms, both with en suite facilities and a study/fifth bedroom. Each house will have a double garage and additional parking and a sloping garden.
The original idea from the current owner was to build the properties as 'passive houses' and further details would be available from the architects. However, it is considered that the planning permission could be varied upon being resubmitted and other options could include reducing the number of houses built on the site, having it for one large family home, for example.
The land is made up of three separate areas (a plan is available upon request) and those three area amount to 1.54 acres in total. Part of the land (0.18 acres), is ground that does not have full registered title to the current owner but which has been tended and maintained by the current owner for many years. This is a small area of the overall site, is mainly scrub land, and is not an area on where any new buildings would be erected.
Services to the site are all nearby (Watermouth or Foxbeare Road) and the drainage will be part of the mains system with each house having a pump pushing waste up to the main sewer in Foxbeare Road. We understand that there is a gas main that runs under the site which Wales & West Utilities (local gas company) will need to be consulted over and should be liable to move.
Applicants are advised to proceed from our offices in an easterly direction along the High Street heading out of town sign posted Combe Martin. Continue in into Portland Street and up the hill pass through the temporary traffic lights at the McCarthy and Stone building site. Pass through further traffic lights and continue along the road passing the Thatched Inn and shortly after the brow of the hill and the entrance to the swimming pool upon reaching Foxbeare road the site will be found on the right hand side.
Plans were previously approved under application number 56250 by North Devon District Council for the construction of three high quality and spacious 4 bedroom detached family homes of approximately 186m2 (2000ft2), together with double garages and parking and gardens. (The consent has now lapsed but will be reinstated by the current owner).
As part of the previous planning permission there is a 106 agreement requiring the developer to contribute £16,144.50 towards Public Open Space. There was also the need to enhance the access to the site from the junction of Foxbeare Road and Watermouth Road and the road surface itself down to the site entrance. The land is also subject to an overage clause requiring £25,000 per plot to be paid to the original land owner on completion of the respective houses.
Planning permission would need to be resubmitted again and a decision determined by the local authority. There may be different planning conditions or s106 agreement imposed for any new application that is submitted.
The development will be accessed from Foxbeare Road onto a new, private section of road which will lead to each of the three properties. Each of the previously proposed houses will be split level in design and typically comprise a large open living room and kitchen area with bi-fold glass doors opening onto a south facing balcony enjoying the countryside views. There will be a kitchen, utility room and cloakroom/wc completing the ground floor accommodation. On the first floor there is a master bedroom with dressing area and access into an en suite bathroom which is also shared with Bedroom 2. The lower ground floor accommodation comprises two further double bedrooms, both with en suite facilities and a study/fifth bedroom. Each house will have a double garage and additional parking and a sloping garden.
The original idea from the current owner was to build the properties as 'passive houses' and further details would be available from the architects. However, it is considered that the planning permission could be varied upon being resubmitted and other options could include reducing the number of houses built on the site, having it for one large family home, for example.
The land is made up of three separate areas (a plan is available upon request) and those three area amount to 1.54 acres in total. Part of the land (0.18 acres), is ground that does not have full registered title to the current owner but which has been tended and maintained by the current owner for many years. This is a small area of the overall site, is mainly scrub land, and is not an area on where any new buildings would be erected.
Services to the site are all nearby (Watermouth or Foxbeare Road) and the drainage will be part of the mains system with each house having a pump pushing waste up to the main sewer in Foxbeare Road. We understand that there is a gas main that runs under the site which Wales & West Utilities (local gas company) will need to be consulted over and should be liable to move.
Applicants are advised to proceed from our offices in an easterly direction along the High Street heading out of town sign posted Combe Martin. Continue in into Portland Street and up the hill pass through the temporary traffic lights at the McCarthy and Stone building site. Pass through further traffic lights and continue along the road passing the Thatched Inn and shortly after the brow of the hill and the entrance to the swimming pool upon reaching Foxbeare road the site will be found on the right hand side.
Property information from this agent
About this agent

Established in 1924, Webbers estate agents are a national award-winning, independent estate agency, voted in the Top 3 estate agents in the UK for customer service in 2014. We have 16 West Country offices for residential sales & lettings in North Devon, West Somerset, Exmoor and Cornwall. Our exclusive Fine & Country marketing enables us to put our property in Park Lane, right in the heart of London, offering fabulous market exposure. In addition, with specialist departments for Commercial Property, Survey & Professional and New Homes, we deliver a comprehensive property service, with an enviable reputation as professionals in property. Ilfracombe is a bustling seaside town with curious coastal charm located on the rugged North Devon coastline. The town boasts a population of around 12,500 inhabitants and has predominantly Victorian and Edwardian architecture although there are a lot more post-war and modern properties towards the edge of the town. Facilities within the area include a variety of small shops with larger supermarkets including Tesco, Co-op and Lidl along with a good selection of restaurants and bars. There are infant, primary and secondary schools, the 'Landmark' theatre and cinema and a picturesque seafront with its working harbour and various beaches including the famous hand-carved 'Tunnels' beach.








