Total views: 156
Guide price
£600,000Land for sale
Awsworth Lane, Cossall, Nottingham
Added yesterday
Land
10107
Key information
Tenure: Freehold
Council tax: Ask agent
Features and description
- Fantastic development opportunity
- 0.42 acre plot
- Full planning permission for five, four/five bedroom detached houses
- PROJECTED GDV CIRCA £2.5m
- Former public house will require demolition
- For sale by private treaty
A development opportunity to build five, three storey detached family houses on a plot of 0.42 of an acre, following the demolition of a former public house. Full Planning Permission granted on the 3/12/25. Corner plot in the heart of a small Nottinghamshire village with great transport links.
A bespoke development opportunity has arisen to purchase a former public house situated on a plot size of 0.42 of an acre, with full Planning Permission passed to demolish and develop five detached houses.
The former public house sits on a corner plot within the Nottinghamshire village of Cossall, with the large market town of Ilkeston approximately two miles to the west and the town of Kimberley approximately two miles to the north-east. The A610 is approximately one mile away, as well as the Giltbrook Retail Park. Junction 26 of the M1 motorway is approximately three miles away. Cossall village is semi-rural with a population currently around 562 and the site itself is close to a nearby development by Avant Homes in the neighbouring village of Awsworth.
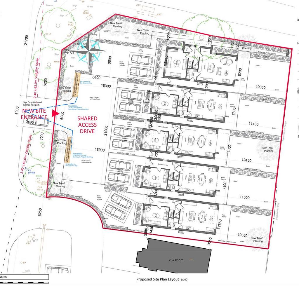
The full Planning Permission was granted on the 3rd December 2025 by the Local Authority, Broxtowe Borough Council, file reference 26/00179/FUL. The development comprises five, four/five bedroom contemporary family homes, four of which each offer approximately 186sqm of space and a slightly larger one of 195sqm.
The proposed dwellings will provide a generous and flexible flow of space for growing families with accommodation arranged over three floors, with features including an open plan family dining kitchen with bi-fold doors opening to the rear gardens, principal bedroom with dressing area and en-suite, with two further bathroom facilities.
We anticipate the GDV to be circa £2.5m and offers a great development opportunity.
The former public house has been closed since 2022 and has fallen into disrepair. The site is available immediately and for sale by private treaty.
Planning Permission - Full Planning Permission was passed on the 3rd December 2025 and all the relevant documentation can be viewed by visiting the Planning Section of Broxtowe Borough Council website and searching the file reference 25/00179/FUL.
A bespoke development opportunity has arisen to purchase a former public house situated on a plot size of 0.42 of an acre, with full Planning Permission passed to demolish and develop five detached houses.
The former public house sits on a corner plot within the Nottinghamshire village of Cossall, with the large market town of Ilkeston approximately two miles to the west and the town of Kimberley approximately two miles to the north-east. The A610 is approximately one mile away, as well as the Giltbrook Retail Park. Junction 26 of the M1 motorway is approximately three miles away. Cossall village is semi-rural with a population currently around 562 and the site itself is close to a nearby development by Avant Homes in the neighbouring village of Awsworth.
The full Planning Permission was granted on the 3rd December 2025 by the Local Authority, Broxtowe Borough Council, file reference 26/00179/FUL. The development comprises five, four/five bedroom contemporary family homes, four of which each offer approximately 186sqm of space and a slightly larger one of 195sqm.
The proposed dwellings will provide a generous and flexible flow of space for growing families with accommodation arranged over three floors, with features including an open plan family dining kitchen with bi-fold doors opening to the rear gardens, principal bedroom with dressing area and en-suite, with two further bathroom facilities.
We anticipate the GDV to be circa £2.5m and offers a great development opportunity.
The former public house has been closed since 2022 and has fallen into disrepair. The site is available immediately and for sale by private treaty.
Planning Permission - Full Planning Permission was passed on the 3rd December 2025 and all the relevant documentation can be viewed by visiting the Planning Section of Broxtowe Borough Council website and searching the file reference 25/00179/FUL.
Property information from this agent
About this agent

Established in 1988, we have facilitated the sale of over 30,000 properties around the West Nottingham and South Derbyshire villages and suburbs. Our team possess a wealth of knowledge about the areas we cover, with many of them being part of the Robert Ellis family for over 10 years, and some over 20, so you can be sure we always uphold our values in quality of service and customer satisfaction. We operate out of three towns, Long Eaton, Beeston and Stapleford with high profile, easily recognisable dedicated sales and lettings branches in each town centre. These branches allow us to reach out to the neighbouring suburbs and villages such as Breaston, Draycott, Castle Donington, Sawley, Borrowash, Sandiacre, Risley, Stanton By Dale, Dale Abbey, Toton, Trowell, Ilkeston, Bramcote, Chilwell and Wollaton.









Floorplans (