Total views: 175
3 bedroom detached bungalow to rent
Baydon, Marlborough, Wiltshire, SN8
Added yesterday
Detached bungalow
3 beds
1 bath
949
Key information
Council tax: Band E
Letting details
- Available now
- Unfurnished
- Deposit: £1788
- Long term let
- Contract length: 12 months
- Min. term: 12 months
Features and description
- Three bedrooms
- Fitted kitchen
- Spacious living room
- Private driveway
- Large garden
- Available Now
- Unfurnished
Video tours
* Virtual tour available * Deposit Alternative*
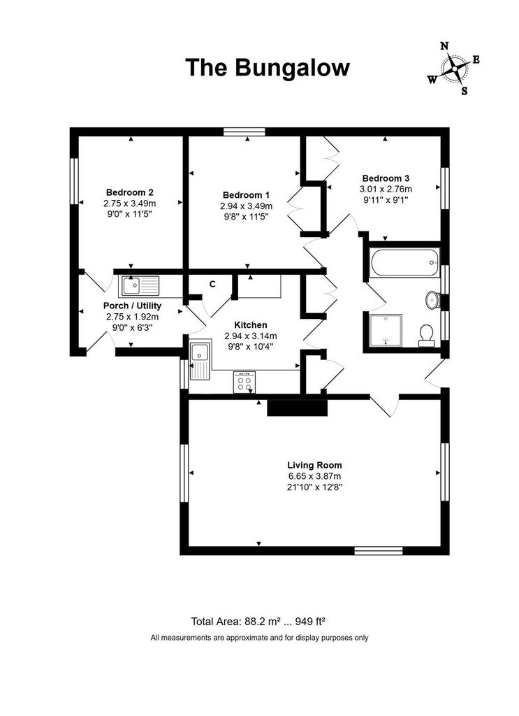
A quaint, recently refurbished, three-bedroom detached bungalow located in Baydon, surrounded by countryside views.
DESCRIPTION
A well-presented detached bungalow set in a peaceful rural location just outside Newbury. The accommodation includes an entrance hallway, a spacious lounge, a fitted kitchen, three double bedrooms, and a family bathroom featuring both a bathtub and a separate shower. The property will also benefit from newly fitted carpets throughout.
OUTSIDE
The property benefits from a private driveway with ample parking for multiple vehicles. It also boasts a generous garden, beautifully framed by countryside views.
SERVICES & MATERIAL INFORMATION
Mains services connected except gas. The property runs on oil heating.
Deposit amount: £1788.46
Council tax band: E
EPC Rating: TBC
Length of tenancy: 12 months
Available Now
* The bungalow is subject to an Agricultural Occupancy Condition. *
Baydon is a delightful and sought after village found on the old Roman Road in Ermin Street. Younger children are well served by Baydon's village school within a short walking distance. It is also catchment for the prestigious Ofsted 'Outstanding' St John's Academy. St Nicholas Church is located in the centre of the village, with a village shop and post office nearby. Baydon provides easy access to the M4, approximately 6 miles to junction 14 and 7 miles to junction 15. Railway access is 9 miles away in Hungerford.
A quaint, recently refurbished, three-bedroom detached bungalow located in Baydon, surrounded by countryside views.
DESCRIPTION
A well-presented detached bungalow set in a peaceful rural location just outside Newbury. The accommodation includes an entrance hallway, a spacious lounge, a fitted kitchen, three double bedrooms, and a family bathroom featuring both a bathtub and a separate shower. The property will also benefit from newly fitted carpets throughout.
OUTSIDE
The property benefits from a private driveway with ample parking for multiple vehicles. It also boasts a generous garden, beautifully framed by countryside views.
SERVICES & MATERIAL INFORMATION
Mains services connected except gas. The property runs on oil heating.
Deposit amount: £1788.46
Council tax band: E
EPC Rating: TBC
Length of tenancy: 12 months
Available Now
* The bungalow is subject to an Agricultural Occupancy Condition. *
Baydon is a delightful and sought after village found on the old Roman Road in Ermin Street. Younger children are well served by Baydon's village school within a short walking distance. It is also catchment for the prestigious Ofsted 'Outstanding' St John's Academy. St Nicholas Church is located in the centre of the village, with a village shop and post office nearby. Baydon provides easy access to the M4, approximately 6 miles to junction 14 and 7 miles to junction 15. Railway access is 9 miles away in Hungerford.
Property information from this agent
About this agent

Jones Robinson Estate Agents - Newbury
118 Bartholomew Street
Newbury, Berkshire
RG14 5DT
01635 246268Located in the heart of Newbury, David Jones and Charles Robinson joined forces in 1998 and opened our Newbury estate agents branch with just 7 staff and a handful of properties. Since then the company has expanded to almost 90 dedicated members of staff across 6 offices - Didcot, Devizes, Lambourn (near Hungerford), Marlborough and Pewsey, as well as the flagship office at Newbury. Our expert and friendly team are ready to help, whether you're looking to buy, sell, rent or let your property. If you're selling, our sales force have almost 500 years' experience between them, with the aim of achieving the best price for your home and guiding you through every step of the process until we hand over the keys to the new owners. If you're a landlord, our lettings and property management team look after around 1,300 properties, with the aim of achieving the best rental price for your asset and keeping you compliant in the ever-changing world of tenancy and landlord legislation.






















