5 bedroom property with land for sale
Key information
Features and description
- Detailed information pack available
- Planning for three luxury detached homes
- Full & valid planning permission
- High end development opportunity est £1.8 m gdv
- Large plot of approx 0.49 acres in a premium semi rural location
- Expected end values of est. 600 k per unit
- Ideal for developers, self builders or investors
- Comprehensive architectural drawings included for all three dwellings
- Temporary residential caravan permission also approved
- Access is via a secure gated community
This is an exceptional opportunity to acquire a 0.49-acre residential development site with full planning permission for three luxury detached homes, positioned in the highly desirable semi-rural village of Weir, Rossendale. This is a rare chance for developers, self-builders or investors to deliver a premium scheme in a peaceful countryside setting with outstanding end-value potential.
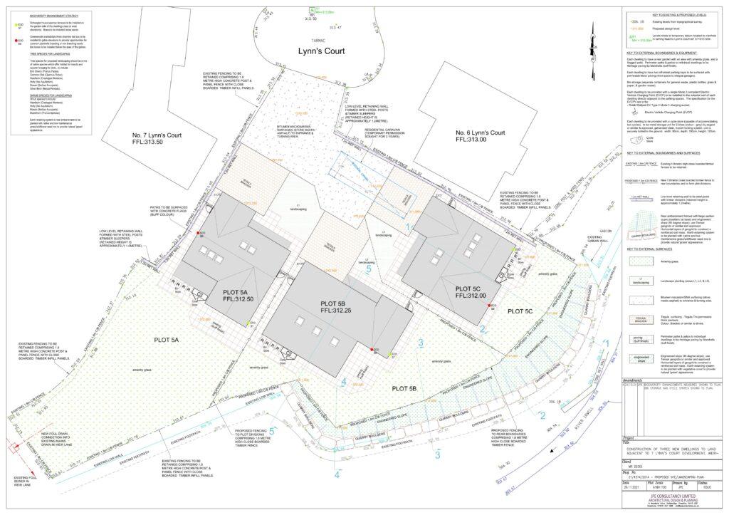
* SITE OVERVIEW *
The plot sits between 6 & 7 Lynns Court and benefits from a private setting surrounded by established homes in a secure gated community of other families, open green space and woodland. The location plan clearly outlines the full extent and potential of the site and its context within Lynns Court.
The approved layout provides excellent spacing between plots, landscaped gardens and private parking areas. Attractive boundary treatments—including 1.8m close-boarded timber fencing and engineered retaining structures—are clearly detailed in the plans.
* DEVELOPMENT INFORMATION *
The planning consent includes three individually designed, large detached houses arranged over three floors, each benefiting from substantial internal accommodation, landscaped gardens and private parking.
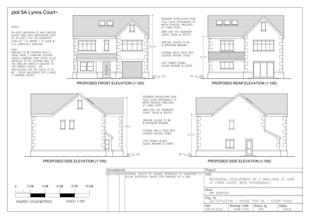
Plot 5A - Internal Area: 214m² (2,305 sq. ft.)
Second-Largest plot for a spacious 5-bedroom detached home with a large kitchen/diner, living space, integral garage, multiple en-suites, and a second-floor master suite with a dressing room.
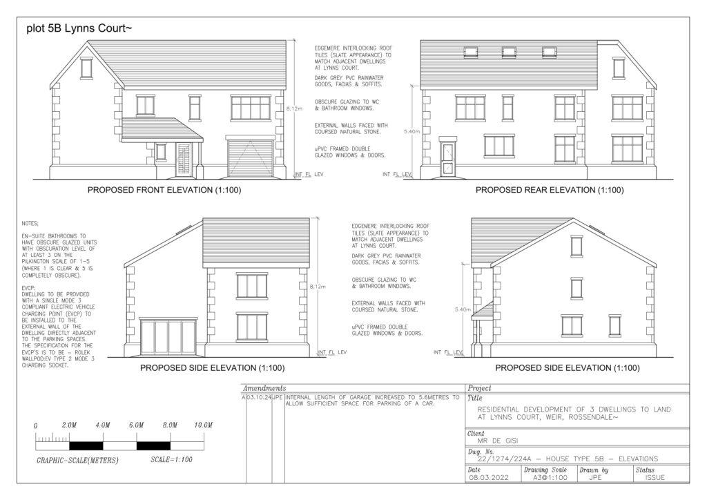
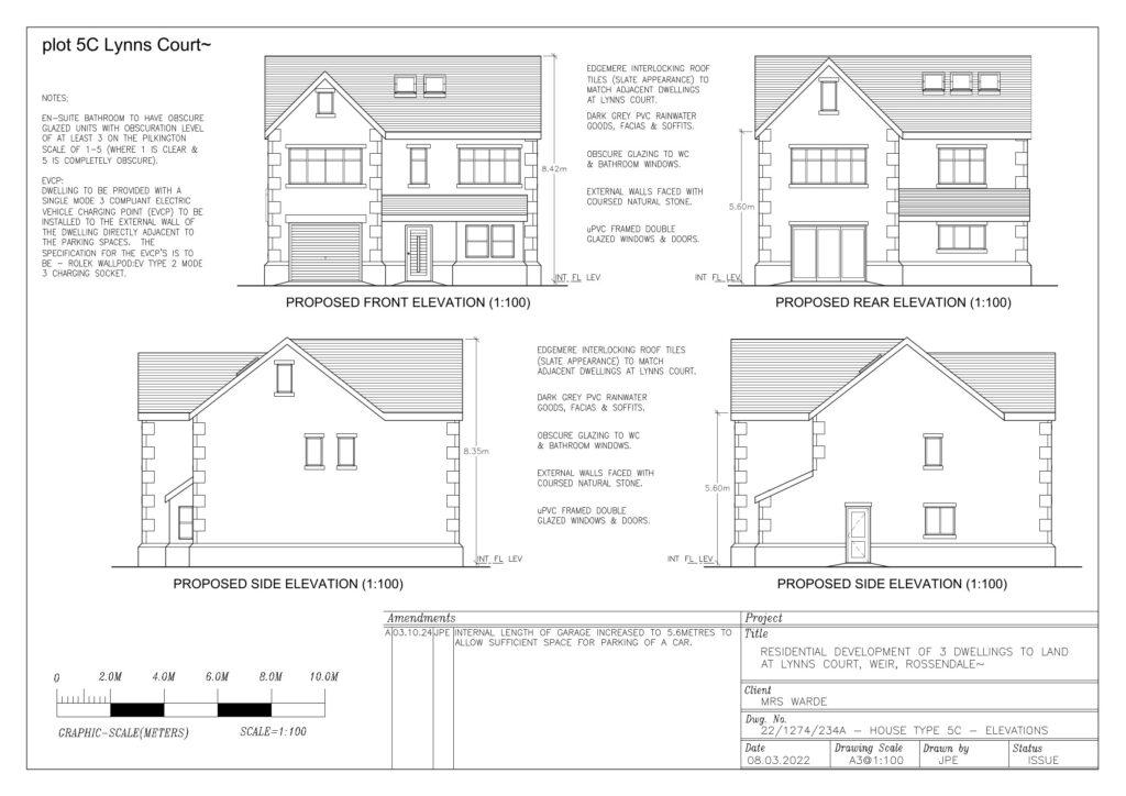
Elevations show a modern design with natural stone cladding and slate-style roof tiles.
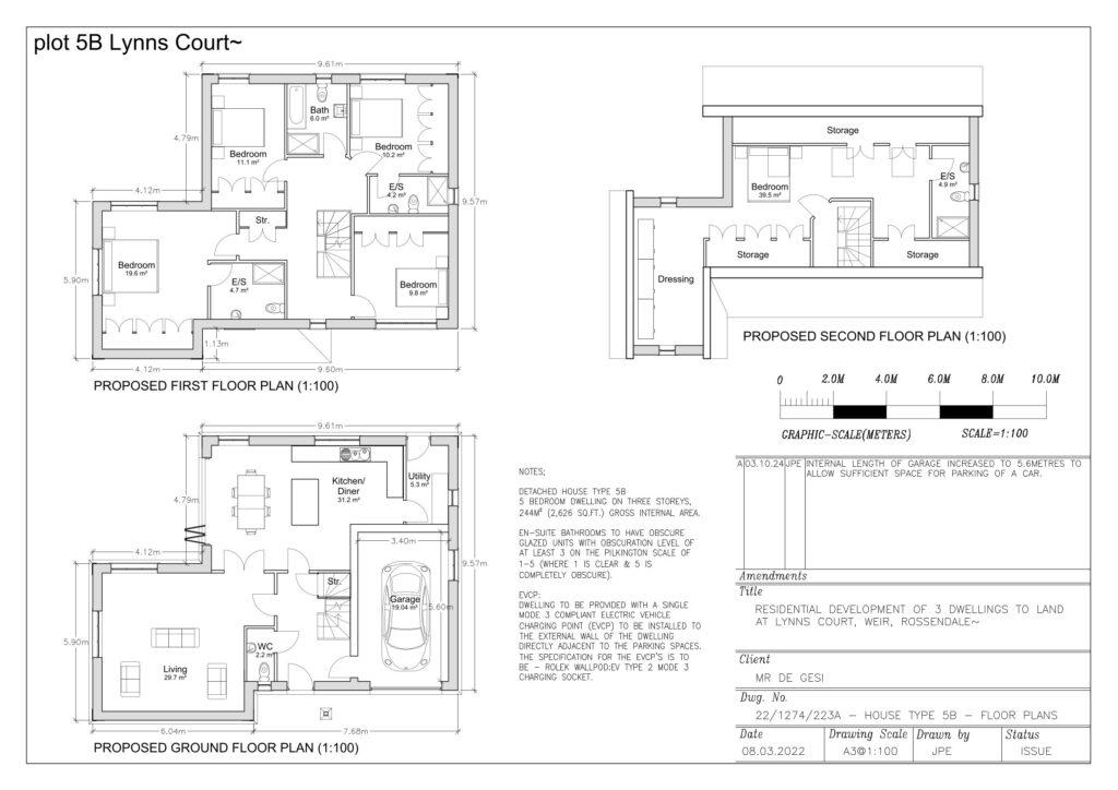
Plot 5B - Internal Area: 244m² (2,626 sq. ft.)
The largest of the three, offering an impressive kitchen/diner, five double bedrooms, multiple storage areas, and a three-storey layout featuring a master suite with a dedicated dressing area
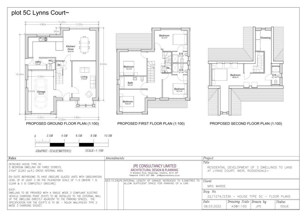
Plot 5C - 210m² (2,263 sq. ft.)
Another premium 5-bedroom detached home offering open-plan living spaces, a beautiful layout across three levels, en-suites, and a master dressing room.
* LANDSCAPING & ENGINEERING DETAILS *
The site includes detailed engineering designs with professionally constructed rear embankments featuring reinforced soil systems, quarry boulders, 45-degree slopes, and new 1.8m boundary fencing. Retaining walls are specified throughout, including timber sleeper walls with steel posts and close-boarded fencing between plots. High-quality external finishes are also planned, such as permeable block-paved driveways, heritage paving, landscaped gardens, low-maintenance planting, cycle storage, and electric vehicle charging points—all shown within the approved site plan.
* SERVICES & INFRASTRUCTURE *
The plans confirm connection to the existing foul drainage system via Weir Lane, a private drive surfaced in stone mastic asphalt, EV charging points for each dwelling, and permission for a temporary caravan during construction, with full elevations and floorplans provided.
* DEVELOPMENT POTENTIAL *
The completed homes are expected to achieve £600,000 each, giving the site an estimated Gross Development Value (GDV) of £1.8 million.
With full planning already secured, and detailed drawings provided, the site offers immediate development potential with strong financial returns.
Area statistics
About this agent

















Floorplan
Area stats