Popular
Total views: 2500+
Land for sale
North End, Calne SN11
EV charger
Solar panels
Land
957
EPC rating: E
Key information
Features and description
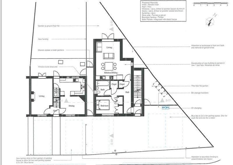
- Approved Planning With Conditions
- Two One Bedroom Apartments
- Open Plan Living
- Bedroom With Fitted Wardrobes
- Private Gardens
- Allocated Parking
- EV Charging Points
- Walking Distance To The Town And Surrounding Amenities.
A building plot with approved planning permission with conditions for two new one bedroom apartments. These properties will offer open plan living dining kitchen, one double bedroom, allocated parking and a private garden for each property. There will be a double bedroom with two double built in wardrobes, a bathroom and ample storage. In the ground floor apartment the open plan living dining kitchen has patio doors out to the rear garden, the first floor apartment having it own garden to the side of the properties. The plot also includes allocated parking for both the properties, EV Charging points and solar panels. Application number PL/2025/04025
LOCATION The plot is placed within level walking distance of the town centre and local surrounding amenities.
AREAS CLOSE BY The town of Calne is surrounded by some of the most beautiful countryside Wiltshire has to offer. There are also local historic sites Avebury, Bowood House and the surrounding towns include Marlborough, Devizes with the Caen Hill Locks and canal, Chippenham and Royal Wootten Bassett both providing easy access to the M4.
ADJACENT HOME The plot was formally part of the neighbouring semi detached property.
If you have any questions or require further information do please get in touch.
LOCATION The plot is placed within level walking distance of the town centre and local surrounding amenities.
AREAS CLOSE BY The town of Calne is surrounded by some of the most beautiful countryside Wiltshire has to offer. There are also local historic sites Avebury, Bowood House and the surrounding towns include Marlborough, Devizes with the Caen Hill Locks and canal, Chippenham and Royal Wootten Bassett both providing easy access to the M4.
ADJACENT HOME The plot was formally part of the neighbouring semi detached property.
If you have any questions or require further information do please get in touch.
About this agent

At Charles Faye, as a local independent estate agent, we couple local knowledge with a team of highly experienced individuals armed with the latest industry technology to ensure we maximise the selling opportunities for your property. With many years of experience, Louise has built some strong & loyal relationships, developing a reputation as one of the most respected agents in town, something her and her team continually strive towards with real enthusiasm and vigour. As soon as you officially instruct Charles Faye Estate Agents to sell you property, our aim is to start proactively marketing your property within 48 hours. Our technology enables us to produce high quality digitally printed colour property brochures swiftly, and your property will appear online nationally as soon as you approve your property’s details. We have just as much exposure as any other national estate agent to promote your home. Trust and Experience At Charles Faye Estate Agents we have over 65 years’ experience between us of selling houses locally. No one knows the area better than we do! At Charles Faye our culture is based on honesty and transparency, and this has helped us become one of the most proactive & successful agencies in the town. We are proud about what we have achieved, but still think our industry has a long way to go to truly meet ours and your expectations. We are constantly looking at ways of improving the way we work and would be happy to hear any suggestions that you may have. We love to try and find new and exciting innovations that enable us to continue at the top of our profession and stand out from the crowd. At the end of the day we are tasked to sell your home for a fair price and as quickly as possible. It's all about trust, experience and your confidence in us.


