5 bedroom detached house for sale
Key information
Features and description
- Conversion of 2 Flats back into original Single House
- Local Authority Approvals Granted
- Building Work Started
- Ideally suited for Property Developers
- Rarely Available Sought After Location
- 5 Double Bedrooms
- 2 Bathrooms and additional Toilet
- Double Garage with Room above
- Excellent Investment Potential
- Significant Plot with Development Potential to Rear
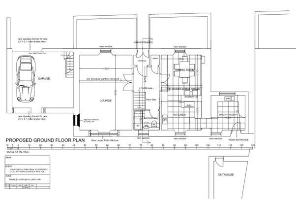
53 Ayr Road is a partially converted two storey detached villa, on the southern side of Ayr Road (A70) in Cumnock. The property was formally two separate flats but Local Authority permission has been granted, and work started, to return the property to it's original use as a single house. Ideal opportunity for Property Developers and Investors to progress with the conversion, minus the hassle and delays of Planning and Building Warrant Approvals.
On the Ground Floor the finished property will boast a Double Garage with Study Area above, Lounge, Bathroom, open plan Kitchen / Dining Area and adjacent Utility Room. The First Floor hosts 3 of the 5 Double Bedrooms, the Master Bedroom opens up into a walk-in wardrobe, where access to the Family Bathroom will be achieved through a convenient sliding door. The Bathroom is also accessed from the Hall and is sized to host a bath, shower cubicle, wc and sink. On the Second Floor Double Bedrooms 4 and 5 are planned, with another Toilet sized to take a wc and sink.
Externally there is an enclosed front garden, adjacent driveway and substantial rear garden area. Potential to further develop within the rear garden, subject to relevant consents. Discussions have already taken place to construct an additional house within the garden space.
Cumnock is a historic market town nestled in the heart of East Ayrshire, situated at the confluence of the Glaisnock Water and the Lugar Water. With a population of approximately 13,000 in the immediate locale the town offers an appealing blend of rural charm and practical amenities, making it an attractive location for both residents and visitors.
The town centre features a diverse range of independent shops and high street retailers, local schools, and comprehensive services, complemented by excellent transport links including bus services and free parking. The town is the second-largest in East Ayrshire and benefits from good public transport connections East Ayrshire Council, with convenient access via the A76 and A70 roads.
The coastal market town of Ayr lies approximately 16 miles to the west, offering extensive shopping facilities, supermarkets, leisure amenities, and transport hubs for those seeking a wider range of services.
Located around two miles west of Cumnock, lies Dumfries House. The 2,000-acre estate operates as a premier visitor attraction offering guided tours of the meticulously restored house and its magnificent interiors. The estate includes adventure playgrounds, an arboretum, maze, walled garden, café, and a working educational farm, providing both educational and recreational opportunities. Frequently visited by King Charles III, Dumfries House has established itself as an exceptional venue for hospitality events and weddings, with luxury accommodation available at the five-star Dumfries House Lodge, making it a destination of national significance and a major asset to the local area.
Sale is subject to Auction Terms & Conditions.
About this agent



































