4 bedroom detached house for sale
Key information
Features and description
- Unique, fully renovated self-build home
- Renovated to a high standard in 2019
- Spacious and versatile layout
- High-quality fixtures, fittings & finishes across all levels
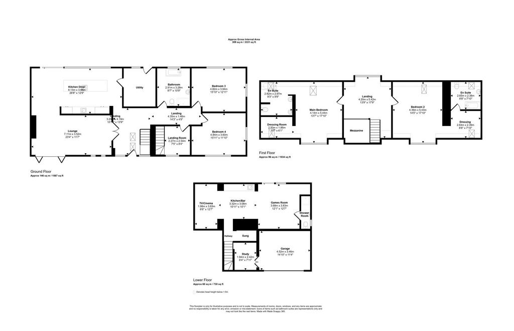
- Total floor area of approx.3,013 sqft
- Contemporary kitchen & stylish bathrooms
- Private outdoor spaces
- A rare opportunity to purchase a truly one-of-a-kind property
Video tours
Delighted to present this unique and exclusive self-build, fully renovated three-floor detached home, beautifully positioned on a generous corner plot within the highly sought-after Elsdon Close in Peterlee.
Offering an impressive total floor area of approximately 3,013 sq ft, this remarkable residence provides exceptional space rarely found on the market.
Renovated in 2019, extended and finished to the very highest standard throughout, this impressive residence offers outstanding quality, luxury and versatility over three floors — ideal for families or professionals seeking a premium and truly one-of-a-kind home in a prestigious location.
The property benefits from full gas central heating, newly installed double glazing, and solar panels with a high buy-back tariff (approx. £3,000 per annum), providing both comfort and excellent efficiency.
Inside, the home features a grand open-plan entrance hall with a stunning semi-floating staircase, a spacious lounge with full-height windows and bi-fold doors, an exceptional open-plan kitchen/diner, a well-equipped utility room, and a sleek ground-floor bathroom. Across its three floors, the property boasts four extremely spacious double bedrooms, with the two on the upper floor enjoying private en-suites and dressing rooms.
One of the standout features is the fully converted basement, transformed into a luxurious entertainment level complete with a cinema/TV room, kitchen/bar, pool/games room and an additional shower room — the perfect setting for family enjoyment or hosting guests.
Externally, the property enjoys a block-paved driveway leading to the garage, landscaped lawned and paved areas, and a generous wraparound garden, making the most of the corner plot position.
A rare, unique and exclusive opportunity to purchase a high-end self-build home of this calibre — early viewing is strongly recommended.
Council Tax Band: E
Tenure: Freehold
Rooms
External Front
GROUND FLOOR LEVEL:
Main Entrance Hall 3.23m x 4.15m (10ft 7in x 13ft 7in)
Including a Double glazed entrance door with glazed, side glass panels, tiled floor, wooden stairs leading to ground floor rooms, partially tiled walls and a feature light hanging down the full height of both floors.
Lounge 7.02m x 3.61m (23ft x 11ft 10in)
With two full height windows, Bi-fold doors, feature fire breast with inset gas fire, tiled floor, modern designed radiator and spotlights.
Kitchen Dining 6.30m x 4.18m (20ft 8in x 13ft 8in)
6 meter double-glazed sliding doors, full rang of Base and Wall units, oven and combination oven, intergrated full height fridge and freezer, single bowl sink. Island Including induction hob, 4 sets of pan drawers, breakfast bar sitting area, two designer radiators, spotlights.
Utility Room 3.80m x 2.72m (12ft 5in x 8ft 11in)
Double-glazed window and door to rear garden, full range of wall and base units, bank of tall larder units, space for washing machine and dryer, intergrated dishwasher, 1 1/2 bowl sink, designer radiator and spotlights.
Bedroom Three 4.82m x 3.99m (15ft 9in x 13ft 1in)
With two double-glazed windows, carpet, designer radiator and spotlights.
Bedroom Four 4.82m x 3.67m (15ft 9in x 12ft)
Including two double-glazed windows, carpet, desginer radiator and spotlights.
Family Bathroom 2.89m x 3.42m (9ft 5in x 11ft 2in)
Doulbe-glazed window, Drop down 2 person Bath , Shower cubicle with Bar shower, w/c, hand basin, chrome towel warmer, fully tiled walls and floor, spotlights.
Office/Landing Room
With double-glazed window, design radiator and stairs to basement floor, tiled floor, spotlights.
BASEMENT LEVEL:
Stairwell/Snug Rooms
Cinema/TV Area
With laimate flooring and designer radiator.
Kitchen/Bar Area 2.71m x 2.50m (8ft 10in x 8ft 2in)
With wall and base units, single bowl sink with Brass tap, 4 sets of drawers and laminate flooring.
Games Area 4.65m x 3.83m (15ft 3in x 12ft 6in)
With laminate flooring, design radiator, patio doors to rear garden.
Shower Room 1m x 2.80m (3ft 3in x 9ft 2in)
Including dougle-glazed window, shower cubicle, laminate flooring, low level w.c, sink unit and towel radiator.
UPPER FLOOR LEVEL:
Landing
Large open plan landing with two double-glazed Velux style windows, double glazed window, modern design radiator, carpet and spotlights.
Principal Bedrooms 4.05m x 4.93m (13ft 3in x 16ft 2in)
With a double-glazed window and Velux style double glazed window, modern designer radiator, carpet and spotlights. Room also boasts a seperate dressing room and en-suite.
Principal En-suite 2.93m x 2.80m (9ft 7in x 9ft 2in)
Velux window, fully tiled walls and floor, built in vanity with his and hers sinks, graphite towel warmer, desginer bath, low level W.C and spotlights.
Principal Dressing Area
With built in wardrobes, velux window, carpet and spotlights.
Bedroom Two 4.42m x 4.93m (14ft 6in x 16ft 2in)
With carpet, spotlights and double-glazed window, leading to dressing room and en-suite.
Bedroom Two Dressing Area
Bedroom Two En-suite
External Rear
External Side
Garage & Driveway
Mutiple car driveway leading to the integral garage with elecrtic main door.
About this agent






















































Floorplan