Popular
Total views: 2500+
Guide price
£190,000Land for sale
Land, Haslingden Road, Guide, Blackburn
Auction
Land
Key information
Tenure: Freehold
Council tax: Ask agent
Features and description
- Freehold plot
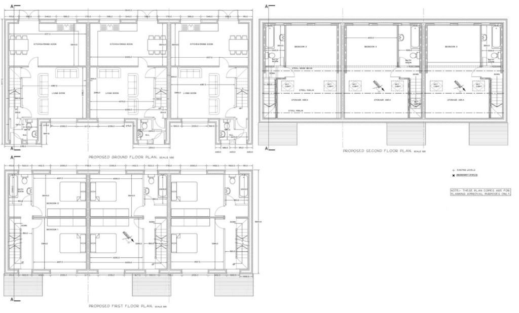
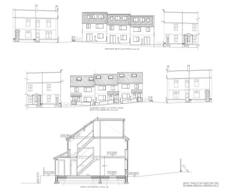
- Planning permission for three terraced houses
- Great motorways links to darwen and blackburn
- Located closeby to the royal blackburn hospital
- Closeby to excellent amenities
Video tours
A fantastic opportunity, to acquire a freehold plot with planning permission, for three, residential dwellings.
Property Overview
A rare opportunity to acquire a centrally located parcel of land positioned directly on Haslingden Road in the sought-after Guide area of Blackburn. The site sits between established residential housing and benefits from excellent road access, strong visibility and close proximity to major local amenities.
This is an ideal opportunity for investors, developers seeking a versatile piece of land in a highly accessible location.
Land Size and Dimensions
Frontage to Haslingden Road approximately 79.56 ft
Right side boundary approximately 64.04 ft
Rear boundary approximately 83.18 ft
Left side boundary approximately 61.79 ft
Key Features
Highly visible roadside location on the busy Haslingden Road.
Situated between numbers 355 and 361
Mostly level ground with clear boundary outline
Positioned within a residential zone with strong footfall and vehicle activity
Freehold Attractive investment opportunity.
Location
Guide is a well-connected village positioned on the edge of Blackburn. The land benefits from excellent proximity to key local amenities including Newfield School, Guide Recreation Ground and various shops and services along Haslingden Road.
The plot enjoys exceptional transport advantages with Junction 5 of the M65 motorway located immediately nearby, providing direct links to Blackburn, Darwen, Accrington, Burnley and Preston. Bus routes frequently run along Haslingden Road, offering convenient public transport access.
Royal Blackburn Hospital is also situated very close to the site, further enhancing the practicality and appeal of this location.
Summary
A well-located freehold parcel of land in the heart of Guide, Blackburn. Offering excellent road frontage, strong surrounding amenities and outstanding motorway access, this plot presents a valuable opportunity for development or investment.
FOR SALE BY AUCTION: Starting Bids £190,000. Terms and conditions apply.
Being Sold via Secure online bidding.
All descriptions in this brochure are the opinions of Crown Estate and Letting Agents and their employees, with any additional information advised by the seller. Properties must be viewed in order to come to your own conclusions and decisions. Although every effort is made to ensure measurements are correct, please check all dimensions and shapes before making any purchases or decisions reliant upon them. Please note that any services, appliances or heating systems have not been tested by Crown Estate and Letting Agents and no warranty can be given or implied as to their working order.
Property Overview
A rare opportunity to acquire a centrally located parcel of land positioned directly on Haslingden Road in the sought-after Guide area of Blackburn. The site sits between established residential housing and benefits from excellent road access, strong visibility and close proximity to major local amenities.
This is an ideal opportunity for investors, developers seeking a versatile piece of land in a highly accessible location.
Land Size and Dimensions
Frontage to Haslingden Road approximately 79.56 ft
Right side boundary approximately 64.04 ft
Rear boundary approximately 83.18 ft
Left side boundary approximately 61.79 ft
Key Features
Highly visible roadside location on the busy Haslingden Road.
Situated between numbers 355 and 361
Mostly level ground with clear boundary outline
Positioned within a residential zone with strong footfall and vehicle activity
Freehold Attractive investment opportunity.
Location
Guide is a well-connected village positioned on the edge of Blackburn. The land benefits from excellent proximity to key local amenities including Newfield School, Guide Recreation Ground and various shops and services along Haslingden Road.
The plot enjoys exceptional transport advantages with Junction 5 of the M65 motorway located immediately nearby, providing direct links to Blackburn, Darwen, Accrington, Burnley and Preston. Bus routes frequently run along Haslingden Road, offering convenient public transport access.
Royal Blackburn Hospital is also situated very close to the site, further enhancing the practicality and appeal of this location.
Summary
A well-located freehold parcel of land in the heart of Guide, Blackburn. Offering excellent road frontage, strong surrounding amenities and outstanding motorway access, this plot presents a valuable opportunity for development or investment.
FOR SALE BY AUCTION: Starting Bids £190,000. Terms and conditions apply.
Being Sold via Secure online bidding.
All descriptions in this brochure are the opinions of Crown Estate and Letting Agents and their employees, with any additional information advised by the seller. Properties must be viewed in order to come to your own conclusions and decisions. Although every effort is made to ensure measurements are correct, please check all dimensions and shapes before making any purchases or decisions reliant upon them. Please note that any services, appliances or heating systems have not been tested by Crown Estate and Letting Agents and no warranty can be given or implied as to their working order.
About this agent

Welcome to Crown Estate Agents in Blackburn where you will be sure of a warm welcome. The team are experienced in all areas of the property industry for both residential sales and lettings. On the property sales side we have many properties for sale throughout Blackburn and Darwen. Thinking of Selling? If you have a property to sell then look no further than Crown Estates, we offer a free market appraisal and once listed with us we have an automated marketing system that will upload the property details within minutes and then email them out to the registered buyers on our mailing list immediately. This means that we can get your property information out to those who are looking as quickly as possible - with no waiting around! Landlords We have many properties to let but we have constantly a large supply of people looking to rent so properties are always in demand. Have a look at our Lettings properties to see the ways in which Crown Letting Agents can help you. Contact Call us now on the number displayed or press the Contact Agent button. We look forward to hearing from you.










Floorplan