Total views: 628
House for sale
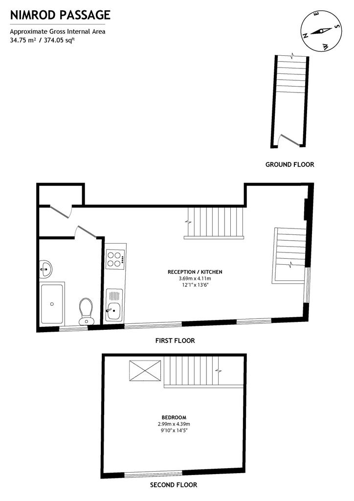
Nimrod Passage, London, N1
Featured
Reduced today
House
3382
Key information
Tenure: Freehold
Council tax: Ask agent
Broadband: Ultra-fast 1000Mbps *
Mobile signal:
EEO2ThreeVodafone
Features and description
- 3382 Square Feet
- Former Textile Factory
- Freehold
- Rustic Beams
- Private Gated Mews
- Mixed Use Space
- Investment Opportunity
Situated within a private gated mews is this huge mixed used freehold building. Built in the late 1800's and a textile factory in the 20th century the property is now used to different purposes and spans 3382 square feet making this a significant investment opportunity. located within the Kingsland Conservation area, a prime location in East London.
About this agent

Founded by a small group of agents in 1998, Keatons currently has over 80 property experts working across East and North West London. It has modern and stylish offices on the high streets of: Bow, Hackney, Kentish Town, Stratford, Shoreditch and, most recently, Wanstead. At Keatons, we specialise in: properties for sale, properties to rent, short lets, long lets, corporate relocation, and property management services. We value the importance of local knowledge, customer service, integrity and ethical practice. Our main aim is to always exceed our clients’ expectations.






















Floorplans (