Popular
Total views: 2500+
2 bedroom apartment to rent
Laburnum Terrace, Ashington
Apartment
2 beds
893
EPC rating: C
Key information
Features and description
- Two bedrooms
- Upper flat
- Central location
- Double glazing
- EPC RATING C70
- Gas central heating
An upper floor flat, conveniently located close to Ashington town centre and all amenities. The accommodation comprises: Two bedrooms, bathroom with over bath shower, separate WC, lounge and kitchen.
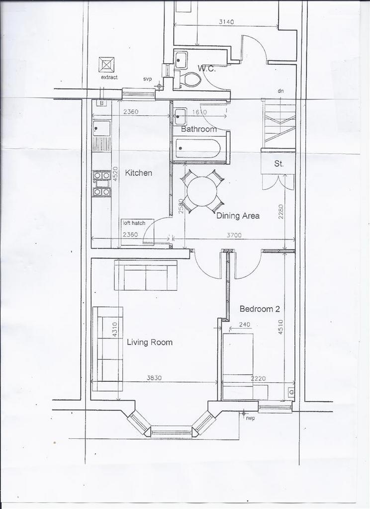
Lobby - Entered via a double glazed door.
Landing -
Lounge - 5.26m x 4.09m into the bay (17'3 x 13'5 into the b - Double glazed bay window, radiator.
Kitchen - 2.36m x 4.65m (7'9 x 15'3) - Double glazed window, radiator, range of units with work tops.
Bathroom - Bath with shower over and shower screen, heated towel rail.
Seperate Wc - Low level wc, wash hand basin.
Bedroom One - 4.04m x 3.68m (13'3 x 12'1) - Double glazed window, radiator.
Bedroom Two - 4.67m x 1.96m (15'4 x 6'5) - Double glazed window, radiator.
Viiewing - Strictly by appointment through our Morpeth Office[use Contact Agent Button] - Option 2
Rent And Terms - £500.00 per calendar month exclusive.
Please note that the Tenant(s) is/are to responsible for all utilities and services including Council Tax.
Minimum period of six months Assured Shorthold Tenancy.
The Tenant will be required to pay the following sum of money PRIOR TO THE COMMENCEMENT OF THE TENANCY:
£500.00 Security Deposit
£500.00 One months rent due in advance
Deposit Information - In accordance with the Housing Act 2004 Tenancy Deposit Protection Law (implemented 6 April 2007), security deposits paid by Tenants must be protected by a Tenancy Deposit Protection Scheme.
As such, we advise that Rickard Chartered Surveyors are a member of the Tenancy Deposit Scheme administered by The Deposit Protection Service.
Further details regarding their code of practice, terms and conditions can be obtained by telephoning The Deposit Protection Service on[use Contact Agent Button] or accessing their web site at
References - All tenancies are subject to the receipt of satisfactory references. In addition to the necessary references, we will also carry out Money Laundering Checks and a credit check. This is included in our referencing process.
We are also required to carry out Right to Rent checks on all Tenants. We will require sight of a UK passport or, alternatively, a valid UK drivers licence along with secondary supporting documentation (a full list of acceptable documents can be provided) per applicant.
This information will be required upon payment of the holding deposit and prior to the reference checks being carried out.
Floorplans -
Lobby - Entered via a double glazed door.
Landing -
Lounge - 5.26m x 4.09m into the bay (17'3 x 13'5 into the b - Double glazed bay window, radiator.
Kitchen - 2.36m x 4.65m (7'9 x 15'3) - Double glazed window, radiator, range of units with work tops.
Bathroom - Bath with shower over and shower screen, heated towel rail.
Seperate Wc - Low level wc, wash hand basin.
Bedroom One - 4.04m x 3.68m (13'3 x 12'1) - Double glazed window, radiator.
Bedroom Two - 4.67m x 1.96m (15'4 x 6'5) - Double glazed window, radiator.
Viiewing - Strictly by appointment through our Morpeth Office[use Contact Agent Button] - Option 2
Rent And Terms - £500.00 per calendar month exclusive.
Please note that the Tenant(s) is/are to responsible for all utilities and services including Council Tax.
Minimum period of six months Assured Shorthold Tenancy.
The Tenant will be required to pay the following sum of money PRIOR TO THE COMMENCEMENT OF THE TENANCY:
£500.00 Security Deposit
£500.00 One months rent due in advance
Deposit Information - In accordance with the Housing Act 2004 Tenancy Deposit Protection Law (implemented 6 April 2007), security deposits paid by Tenants must be protected by a Tenancy Deposit Protection Scheme.
As such, we advise that Rickard Chartered Surveyors are a member of the Tenancy Deposit Scheme administered by The Deposit Protection Service.
Further details regarding their code of practice, terms and conditions can be obtained by telephoning The Deposit Protection Service on[use Contact Agent Button] or accessing their web site at
References - All tenancies are subject to the receipt of satisfactory references. In addition to the necessary references, we will also carry out Money Laundering Checks and a credit check. This is included in our referencing process.
We are also required to carry out Right to Rent checks on all Tenants. We will require sight of a UK passport or, alternatively, a valid UK drivers licence along with secondary supporting documentation (a full list of acceptable documents can be provided) per applicant.
This information will be required upon payment of the holding deposit and prior to the reference checks being carried out.
Floorplans -
Property information from this agent
About this agent

Welcome to Rickard Chartered Surveyors When you're looking to buy, sell or let property, Rickard can help. Whether you need a survey, valuation, mortgage or property management service, we have the people, the experience and the local knowledge to give you the best advice and service. We've been in the property business since 1936, so well understand the needs of our customers, and we work hard to meet those needs quickly, efficiently and cost effectively.














Floorplan