Popular
Total views: 2500+
Land for sale
Stocking Drove, Chatteris PE16
Land
46758
Key information
Tenure: Freehold
Council tax: Ask agent
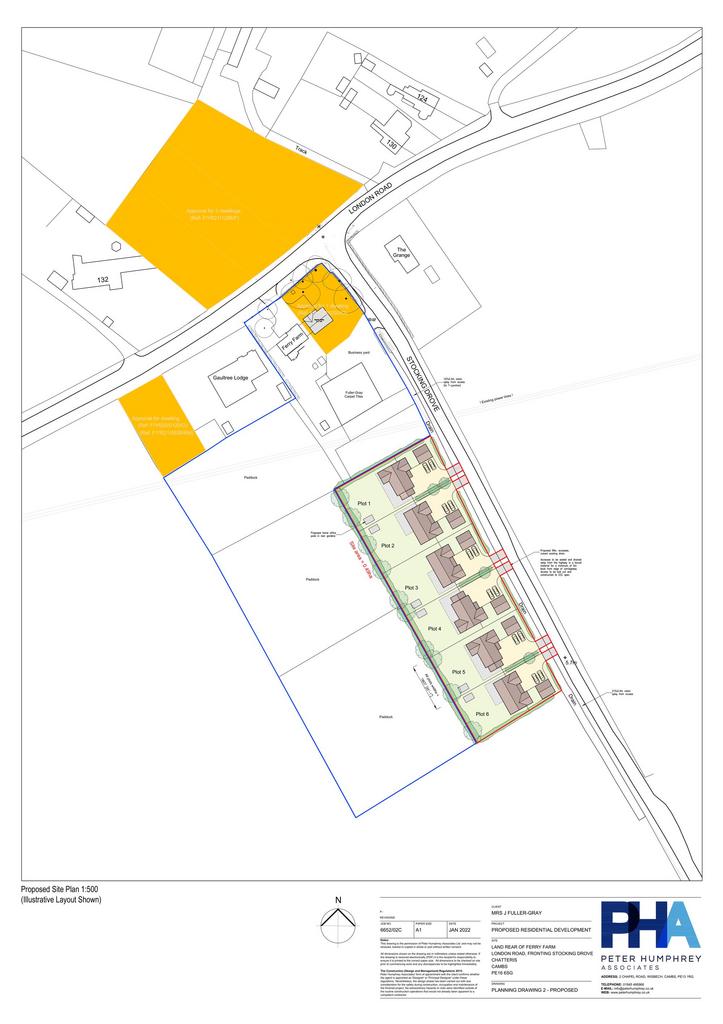
Features and description
- Residential Development Site
- 1 of 5 Plots
- Planning Consent for Five Bed Detached House
- 3,000 Sq Ft House & Double Garage
- GDV Approx: £800 K
- Stunning Rural Location
An attractive opportunity to purchase a residential development site with planning consent for the construction of a five bedroom, 3,000 sq ft detached house with double garage located off London Road just outside Chatteris.
Planning - The original outline planning consent was granted by Fenland District Council on the 7th July 2023 for the erection of up to six detached dwellings with garages and new vehicular accesses (reference F/YR23/0077/O)
A Reserved Matters Consent was granted on the 3rd June 2025 for the appearance and landscaping of five properties (reference F/YR25/0185/RM)
Plot 2 is approximately 869 square metres / 9,354 square feet
Viewings by appointment with the agent only.
Area statistics
Crime score
Low crime
0/10
About this agent

For over 135 years, Hockeys has served the towns and villages of Cambridgeshire. Our Ely branch serves the city and surrounding towns and villages including Littleport, Little Downham, Little Thetford and Witchford. If you have a property to sell or your are looking to buy in the Ely area, then get in touch for a no obligation chat.
Similar properties
Discover similar properties nearby in a single step.
















Floorplan
Area stats