Popular
Total views: 2500+
Guide price
£59,9953 bedroom maisonette for sale
13/6, Trinity StreetHawick, TD9 9NR
Maisonette
3 beds
Key information
Tenure: Freehold
Council tax: Ask agent
Features and description
- None
- Garden
- Parking Nearby
- Living Level Toilet
Built around 130 years ago, this purpose built second and attic floor maisonette forms part of a four storey block containing six residential properties.
The property is situated in a quiet residential area, not far from the town centre and within a short walk to Trinity Primary school.
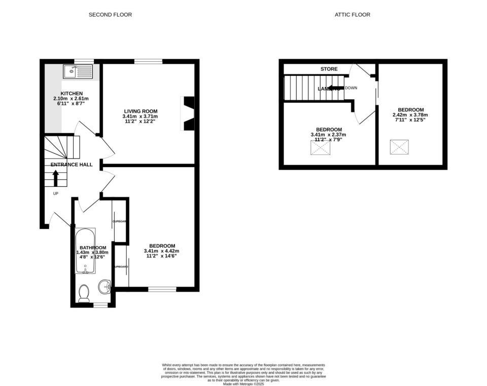
The accommodation comprises; Entrance Hallway, living Room, bathroom, kitchen and bedroom on the ground floor, with 2 further bedrooms on the upper floor. In total around 64 SQM of living space.
There is gas in the building but it has been disconnected, as has the electric.
The property requires a fair degree of cosmetic updating, which has been reflected in the asking price.
Outside there is ample on-street parking to the front and a shared drying green to the rear.
A real renovation property with great potential.
MORE INTERNAL IMAGES TO FOLLOW.
The property is situated in a quiet residential area, not far from the town centre and within a short walk to Trinity Primary school.
The accommodation comprises; Entrance Hallway, living Room, bathroom, kitchen and bedroom on the ground floor, with 2 further bedrooms on the upper floor. In total around 64 SQM of living space.
There is gas in the building but it has been disconnected, as has the electric.
The property requires a fair degree of cosmetic updating, which has been reflected in the asking price.
Outside there is ample on-street parking to the front and a shared drying green to the rear.
A real renovation property with great potential.
MORE INTERNAL IMAGES TO FOLLOW.
Property information from this agent
About this agent

Jim Hay Estate Agents is a young vibrant business totally "focussed on property", situated on Hawick's main street our property shop is modern and inviting. Selling or buying your house will be the largest transaction many will make and our aim is to take the strain and stress away that is normally associated with it, let us handle the entire process from start to finish. We also offer full conveyancing services, mortgage, insurance and financial advice, legal estate planning and very importantly will writing. In short a one stop shop offering a quality personal service.





Floorplan