Total views: 2063
5 bedroom house to rent
Regency Place, Canterbury
Student
House
5 beds
5 baths
1216
EPC rating: C
Key information
Letting details
- Availability date: 1 Jul 2026
- Furnished
- Deposit: £925
- Student property
Features and description
- Military Road
- House
- Furnished Property
- Gas C/H
- Small Garden
- Street parking Available
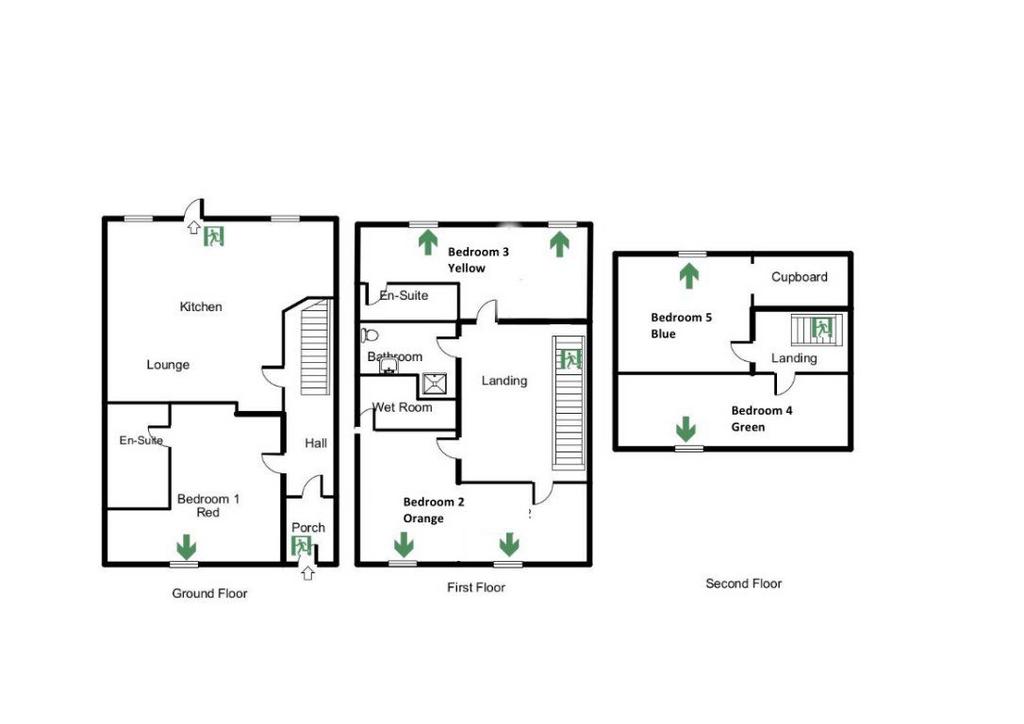
- 5 Bedrooms
- 3 En suites
- 5 Bathrooms
- 1 Reception
STUDENT PROPERTY
ACADEMIC YEAR 2026-2027
RENT+BILLS INCLUSIVE: Gas, Electricity, Water, TV License and Broadband.
Newly refurbished in 2021, this lovely five bedroom student house conveniently situated near CCCU, UCA and town centre, is also popular with UKC students. Painted white throughout, this property has one ground floor, two first floor and two second floor bedrooms (three with en suites and a further bathroom.. All bedrooms have double beds and white Ikea cube furniture with contemporary day and night blinds. The living space comprises a modern fitted double kitchen diner with two hobs, two hoods, two fridge freezers, double oven, two sinks, washer-dryer and dining table and chairs) in an open plan spacious living room with a feature wall and new sofas with a flat screen TV. There is a pleasant courtyard garden to the rear that is not overlooked.
The property benefits from its proximity to several local supermarkets and the town centre, foot and cycle paths to CCCU, parking at rear, gas central heating and double glazing.
Holding Deposit: Equivalent to 1 Week's Rent.
DEPOSIT £185.00 pp
Room 1 - £129.00 pw (full ensuite)
Room 2 - £132.00 pw (full ensuite)
Room 3 - £129.00 pw (full ensuite)
Room 4 - £119.00 pw
Room 5 - £119.00 pw
HALF rent July and August- access 01st September 2026
Photographs taken September 2021
Energy Efficiency Rating-75 Environment Impact (CO2) Rating- 73
N.B. Please note that photographs are taken using a wide angle lens which means that rooms may appear larger.
ACADEMIC YEAR 2026-2027
RENT+BILLS INCLUSIVE: Gas, Electricity, Water, TV License and Broadband.
Newly refurbished in 2021, this lovely five bedroom student house conveniently situated near CCCU, UCA and town centre, is also popular with UKC students. Painted white throughout, this property has one ground floor, two first floor and two second floor bedrooms (three with en suites and a further bathroom.. All bedrooms have double beds and white Ikea cube furniture with contemporary day and night blinds. The living space comprises a modern fitted double kitchen diner with two hobs, two hoods, two fridge freezers, double oven, two sinks, washer-dryer and dining table and chairs) in an open plan spacious living room with a feature wall and new sofas with a flat screen TV. There is a pleasant courtyard garden to the rear that is not overlooked.
The property benefits from its proximity to several local supermarkets and the town centre, foot and cycle paths to CCCU, parking at rear, gas central heating and double glazing.
Holding Deposit: Equivalent to 1 Week's Rent.
DEPOSIT £185.00 pp
Room 1 - £129.00 pw (full ensuite)
Room 2 - £132.00 pw (full ensuite)
Room 3 - £129.00 pw (full ensuite)
Room 4 - £119.00 pw
Room 5 - £119.00 pw
HALF rent July and August- access 01st September 2026
Photographs taken September 2021
Energy Efficiency Rating-75 Environment Impact (CO2) Rating- 73
N.B. Please note that photographs are taken using a wide angle lens which means that rooms may appear larger.
About this agent

Leydon Lettings is the home of renting student accommodation and professional houses for those who need a place to stay in Canterbury. Our aim is to to provide quality homes with particular emphasis on safety providing more than the law requires. Housing is also available in affordable budget student accommodation as advertised in our two branches located in east and west Canterbury, without compromising safety.
Similar properties
Discover similar properties nearby in a single step.













































Floorplan
