Total views: 2467
3 bedroom flat to rent
Grove Hall, West Grove, London, SE10
Flat
3 beds
3 baths
Key information
Letting details
- Availability date: 2 Jan 2026
- Deposit: £5800
Features and description
- Three double bedrooms and three bathrooms
- Two impressive reception rooms with high ceilings
- Elegant period detailing and contemporary finishes
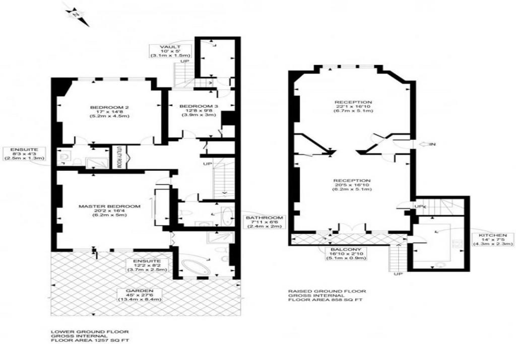
- Approx. 2,115 sq ft (196 sqm)
Set within the distinguished Grove Hall, a handsome period conversion on one of Greenwich’s most sought-after roads, this beautifully presented three-bedroom, three-bathroom duplex apartment offers exceptional proportions, elegant interiors, and direct access to a private garden with views over mature greenery.
The raised ground floor features a magnificent double reception room with high ceilings, tall sash windows, and French doors opening onto a balcony overlooking the garden. The space is perfect for both entertaining and family living, with oak floors, a decorative period fireplace, and abundant natural light throughout. The adjoining kitchen is fully fitted with shaker-style cabinetry, black granite worktops, and integrated appliances. On the lower ground floor are three generous bedrooms, each with access to or outlooks over the garden. The principal bedroom suite includes a luxurious ensuite bathroom with a freestanding tub and separate shower, while the second bedroom also benefits from an ensuite. A third family bathroom serves the remaining bedroom. A practical utility room and vault storage complete this floor.
The apartment enjoys a generous private south-facing garden (approx. 44’ x 27’) mainly laid to lawn and bordered by mature planting, offering a peaceful outdoor space ideal for relaxing or dining in warmer months. A raised balcony from the reception room provides an additional seating area with pleasant green views.
*ENQUIRIES*
For all enquiries, viewing requests or to create your own listing please visit the Emoov website.
If calling, please quote reference: L1994
The raised ground floor features a magnificent double reception room with high ceilings, tall sash windows, and French doors opening onto a balcony overlooking the garden. The space is perfect for both entertaining and family living, with oak floors, a decorative period fireplace, and abundant natural light throughout. The adjoining kitchen is fully fitted with shaker-style cabinetry, black granite worktops, and integrated appliances. On the lower ground floor are three generous bedrooms, each with access to or outlooks over the garden. The principal bedroom suite includes a luxurious ensuite bathroom with a freestanding tub and separate shower, while the second bedroom also benefits from an ensuite. A third family bathroom serves the remaining bedroom. A practical utility room and vault storage complete this floor.
The apartment enjoys a generous private south-facing garden (approx. 44’ x 27’) mainly laid to lawn and bordered by mature planting, offering a peaceful outdoor space ideal for relaxing or dining in warmer months. A raised balcony from the reception room provides an additional seating area with pleasant green views.
*ENQUIRIES*
For all enquiries, viewing requests or to create your own listing please visit the Emoov website.
If calling, please quote reference: L1994
About this agent

Emoov - Chelmsford
Marsh House Farm, Lower Burnham Road
Latchingdon, Chelmsford, Essex
CM3 6HQ
020 8033 1542Emoov is a trusted name in the property market with decades of experience in online sales and lettings. As one of the UK’s leading online estate agents, we combine expertise with modern technology to make selling or letting your home simpler, faster, and more cost-effective. Our family-run business is built on a commitment to friendly, reliable customer service, giving vendors and landlords complete peace of mind when navigating the property market. Our easy-to-use online platform allows clients to take full control of their property listings. You can upload high-quality photographs, add detailed property descriptions, and update your listing at any time to attract the right buyers or tenants. Emoov’s service is designed to remove the stress and hassle from selling or renting, while still giving you the flexibility to manage your property in a way that suits your needs. We also provide a wide range of optional features to support every stage of the journey, from professional photography and floorplans to marketing extras that help your property stand out on leading property portals. Whether you’re a homeowner selling your property or a landlord letting a rental, Emoov offers everything you need to achieve the best results. Our dedicated team of property experts is always just a phone call or email away. With professional guidance, transparent communication, and proven experience, Emoov ensures you feel confident and supported throughout the entire process. Discover how Emoov’s innovative online estate agency can help you sell your home or let your property with ease today.











