5 bedroom house for sale
Key information
Features and description
Video tours
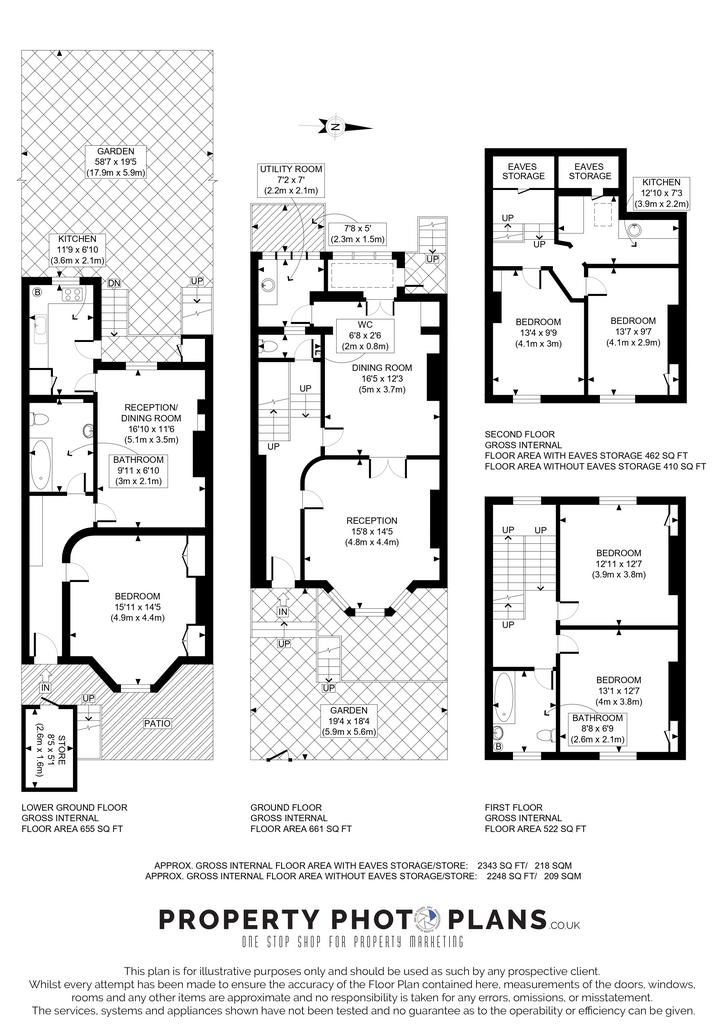
A rare opportunity to modernise a fine period house which backs onto Ravenscourt Park, and possibly the last of its type in this historic W6 street - with expansive views to the west across the bowling green and park.The house is currently arranged in two units - lower ground floor flat and three storey upper maisonette. In total offering over 2,300 sq ft and, subject to planning consent, could potentially be extended significantly to provide 5/6 bedrooms comfortably and extensions to the lower floors which could open onto the garden. With more bedroom space at loft level and given the extraordinary aspect, this could truly become a dream home. An architectural appraisal has been supplied by the vendor and can be provided to interested parties.Ravenscourt Road runs along the east side of Ravenscourt Park and the house is just south of the park's eastern entrance gate. Ravenscourt Park tube station is within a few minutes walk and buses also connect straight to the transport and shopping hub at Hammersmith Broadway, including Hammersmith tubes which are also only a 10 minute walk away.
2,300+ sq ft family house - modernisation project
Prime Brackenbury address
Expansive westerly views across Ravenscourt Park
Architect's assessment available on request
Scope for 5/6 bedrooms
Currently arranged as two flats
EPCs: basement flat C; upper maisonette E
Joint sole agent - Phillip Wooller
Area statistics
About this agent

















Area stats