Total views: 1932
From
£500,0004 bedroom detached house for sale
Kilnwood Lane, South Chailey, East Sussex, BN8
New build
EV charger
Eco credentials
Detached house
4 beds
2 baths
1454
Key information
Tenure: Freehold
Council tax: Ask agent
Features and description
GUIDE PRICE: £500,000 - 525,000
• New build detached 4 bedroom house just being completed
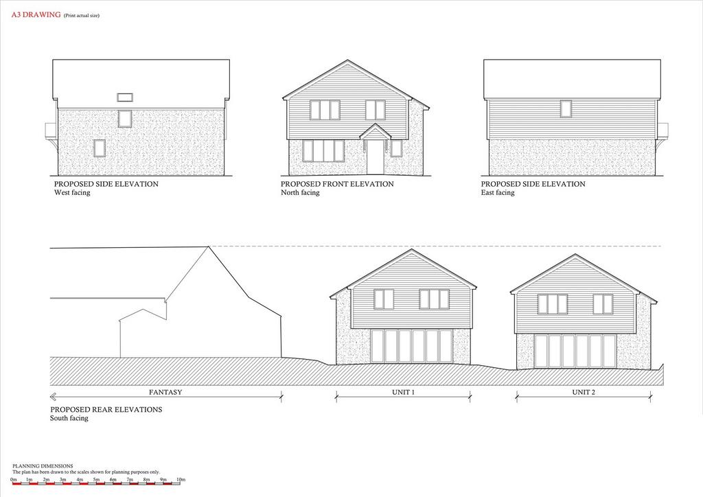
• Generous internal accommodation extends to 1, 454 square feet (135.26 square meters)
• South facing gardens
• Located in a quiet location away from main roads
• Being just 1 of 2 bespoke detached luxury new builds with 10 year build guarantees
• Excellent modern eco credentials incorporated to include air source heat pumps, underfloor heating to the lower floors and traditional heating to the first floors
• Electric car charging point
• Private allocated parking
• Entrance hall
• Cloakroom
• Utility room
• Living room
• Open plan kitchen / breakfast room / dining room complimented by rear bi folding doors with views over the rear south facing garden
• First floor landing
• Four double bedrooms
• Main bedroom with ensuite shower room
• Family bathroom
• Double glazed windows throughout
• Located in South Chailey between Lewes and Haywards Heath, both with mainline train stations for London
• Ready for occupation very soon
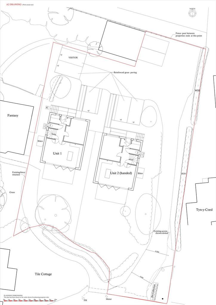
DESCRIPTION: Plot 1 on Kilnwood Lane, South Chailey, is a bespoke new build detached house with 4 double bedrooms and a south facing rear garden, private parking for two cars, as well as coming with a brand new 10 year build guarantee and being just one of two new builds located off this quiet lane away from main roads.
This very attractive and traditionally built property has luxury internal accommodation that extends to 1, 454 square feet (135.26 square meters) with the accommodation including an entrance hall, a cloakroom, a utility room, a fabulous open plan kitchen / breakfast room / dining room, as well as a separate living room reception room.
To the first floor there is a landing, four double bedrooms, one of the bedrooms has an ensuite and a further additional family bathroom that serves bedrooms three and four.
Outside there are generous sized rear south facing gardens with sun terraces.
LOCATION: Situated down Kilnwood Lane, South Chailey away from busy main roads and benefitting from south facing garden. Chailey village has a primary school, pub restraunts, garage with shop and a main bus route leading to either Lewes or Haywards Heath towns, both with mainline train stations.
There south downs are only a short drive away, as are the comprehensive shopping and leisured facilities also located in both Lewes and Haywards Heath.
Schooling in the area is well catered for, with a number of state schools and excellent private education facilities.
ACCOMMODATION:
ENTRANCE HALL: With under floor heating.
CLOAKROOM: Comprising of a W/C, a wash basin, underfloor heating, double glazed window with aspect outside.
UTILITY ROOM: Comprising of underfloor heating, modern cupboard and base units with work surfaces over, spaces for appliances double glazed window with aspect to front.
LIVING ROOM: A generous sized reception room with underfloor heating and double glazed window with aspect to front garden.
OPEN PLAN LUXURY KITCHEN / BREAKFAST ROOM / DINING ROOM: Comprising of underfloor heating, an extensive range of luxury kitchen cupboard and base units with work surfaces over, sink unit, large central breakfast bar / central island with seating area. Open plan dining area with underfloor heating, as well as feature double glazed bi folding doors with aspect over the rear garden.
FIRST FLOOR ACCOMMODATION: Approached by stairs from the main entrance hall that lead to the first-floor landing with a door to the airing cupboard. Further doors leading off to the double bedrooms, 1,2,3 and 4, as well as the luxury family bathroom.
BEDROOM ONE WITH ENSUITE SHOWER ROOM: Comprising of a double bedroom, with radiators, double glazed windows, door to ensuite shower room.
ENSUITE LUXURY SHOWER ROOM: Comprising of a shower, W/C, wash basin, and double glazed window.
BEDROOM TWO: Comprising of a radiator, and double glazed window.
BEDROOM THREE: A double sized bedroom with a radiator, and double glazed window with a view.
BEDROOM FOUR: A double sized room with a radiator, and double glazed window with a view.
FAMILY BATHROOM / SHOWER ROOM: Comprising of a bath, shower, W/C, wash basin, and towel rail.
OUTSIDE: The property benefits from rear south facing gardens, with rear sun terraces.
PARKING: There are two car parking spaces for this new build property.
AGENTS NOTE: Please note that these details have been prepared as a general guide and do not form part of a contract. We have not carried out a detailed survey, nor tested the services, appliances and specific fittings. Room sizes are approximate and should not be relied upon. Any verbal statements or information given about this property, again, should not be relied on and should not form part of a contract or agreement to purchase.
• New build detached 4 bedroom house just being completed
• Generous internal accommodation extends to 1, 454 square feet (135.26 square meters)
• South facing gardens
• Located in a quiet location away from main roads
• Being just 1 of 2 bespoke detached luxury new builds with 10 year build guarantees
• Excellent modern eco credentials incorporated to include air source heat pumps, underfloor heating to the lower floors and traditional heating to the first floors
• Electric car charging point
• Private allocated parking
• Entrance hall
• Cloakroom
• Utility room
• Living room
• Open plan kitchen / breakfast room / dining room complimented by rear bi folding doors with views over the rear south facing garden
• First floor landing
• Four double bedrooms
• Main bedroom with ensuite shower room
• Family bathroom
• Double glazed windows throughout
• Located in South Chailey between Lewes and Haywards Heath, both with mainline train stations for London
• Ready for occupation very soon
DESCRIPTION: Plot 1 on Kilnwood Lane, South Chailey, is a bespoke new build detached house with 4 double bedrooms and a south facing rear garden, private parking for two cars, as well as coming with a brand new 10 year build guarantee and being just one of two new builds located off this quiet lane away from main roads.
This very attractive and traditionally built property has luxury internal accommodation that extends to 1, 454 square feet (135.26 square meters) with the accommodation including an entrance hall, a cloakroom, a utility room, a fabulous open plan kitchen / breakfast room / dining room, as well as a separate living room reception room.
To the first floor there is a landing, four double bedrooms, one of the bedrooms has an ensuite and a further additional family bathroom that serves bedrooms three and four.
Outside there are generous sized rear south facing gardens with sun terraces.
LOCATION: Situated down Kilnwood Lane, South Chailey away from busy main roads and benefitting from south facing garden. Chailey village has a primary school, pub restraunts, garage with shop and a main bus route leading to either Lewes or Haywards Heath towns, both with mainline train stations.
There south downs are only a short drive away, as are the comprehensive shopping and leisured facilities also located in both Lewes and Haywards Heath.
Schooling in the area is well catered for, with a number of state schools and excellent private education facilities.
ACCOMMODATION:
ENTRANCE HALL: With under floor heating.
CLOAKROOM: Comprising of a W/C, a wash basin, underfloor heating, double glazed window with aspect outside.
UTILITY ROOM: Comprising of underfloor heating, modern cupboard and base units with work surfaces over, spaces for appliances double glazed window with aspect to front.
LIVING ROOM: A generous sized reception room with underfloor heating and double glazed window with aspect to front garden.
OPEN PLAN LUXURY KITCHEN / BREAKFAST ROOM / DINING ROOM: Comprising of underfloor heating, an extensive range of luxury kitchen cupboard and base units with work surfaces over, sink unit, large central breakfast bar / central island with seating area. Open plan dining area with underfloor heating, as well as feature double glazed bi folding doors with aspect over the rear garden.
FIRST FLOOR ACCOMMODATION: Approached by stairs from the main entrance hall that lead to the first-floor landing with a door to the airing cupboard. Further doors leading off to the double bedrooms, 1,2,3 and 4, as well as the luxury family bathroom.
BEDROOM ONE WITH ENSUITE SHOWER ROOM: Comprising of a double bedroom, with radiators, double glazed windows, door to ensuite shower room.
ENSUITE LUXURY SHOWER ROOM: Comprising of a shower, W/C, wash basin, and double glazed window.
BEDROOM TWO: Comprising of a radiator, and double glazed window.
BEDROOM THREE: A double sized bedroom with a radiator, and double glazed window with a view.
BEDROOM FOUR: A double sized room with a radiator, and double glazed window with a view.
FAMILY BATHROOM / SHOWER ROOM: Comprising of a bath, shower, W/C, wash basin, and towel rail.
OUTSIDE: The property benefits from rear south facing gardens, with rear sun terraces.
PARKING: There are two car parking spaces for this new build property.
AGENTS NOTE: Please note that these details have been prepared as a general guide and do not form part of a contract. We have not carried out a detailed survey, nor tested the services, appliances and specific fittings. Room sizes are approximate and should not be relied upon. Any verbal statements or information given about this property, again, should not be relied on and should not form part of a contract or agreement to purchase.
About this agent

Neville & Neville Estate Agents - East Sussex
Forge Meadow Cowbeech
Hailsham, East Sussex
BN27 4JL
01323 916154WELCOME TO NEVILLE AND NEVILLE ESTATE AGENTS, SPECIALISTS IN SELLING COUNTRY & TOWN PROPERTY AND ALL TYPES OF DEVELOPMENT LAND FOLEY AND NEVILLE ESTATE AGENTS ARE A DYNAMIC AND ENTHUSIASTIC TEAM OF PROPERTY EXPERTS, EACH WITH OVER 20 YEARS' EXPERIENCE IN PROVIDING A BESPOKE SERVICE AND ACHIEVING THE HIGHEST POSSIBLE PRICE FOR THEIR CLIENTS' HOMES, PROPERTY INVESTMENTS AND DEVELOPMENT LAND. OFFICES IN CENTRAL LONDON AND EAST SUSSEX









Floorplans (