Popular
Total views: 2500+
Guide price
£150,000House for sale
Mepal Road, Sutton CB6
House
Key information
Features and description
- Excellent Self-Build Plot Opportunity On New Development
- Design your Dream Home!
- Ideal chance to fully Spec your Own Property
- Well connected to the Village with easy access to services and local facilities
- Principle of development already secured under 106 agreement pursuant to the wider development Outline Planning Permission.
- Each plot is marked with a no build zone to allow for the provision of services and utilities and any required easements.
- Enjoy a comprehensive range of local services such as a Pre-School, Primary School, GP Surgery, High Street, Co-op, Post Office, Pharmacy, Library, numerous food and drink establishments as well as sp
- Nearby sports ground / play areas.
- Access to A142 / A10 / A14. Local bus service runs between Chatteris & Ely
- Rail connections via Ely (onward to Cambridge & London)
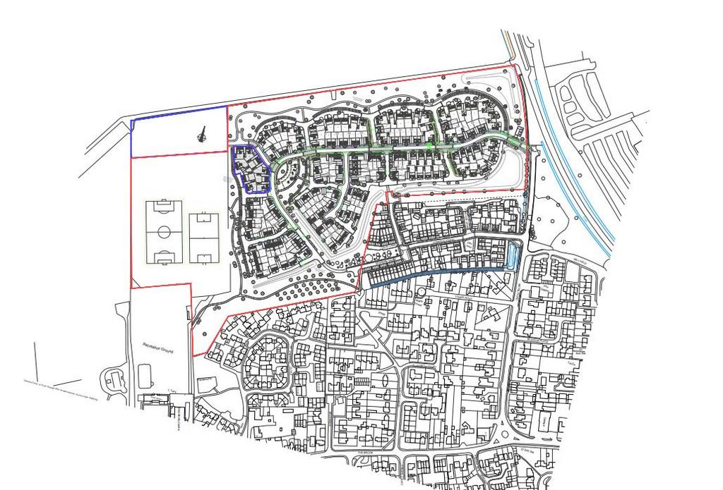
Fantastic opportunity to own one of just 9 Self-Build Plots ranging in size from 276 square meters to 407 square meters situated on the north western edge of the new development off Mepal Road, Sutton.
The Self-Build Plots are suitable for the construction of two storey detached houses ranging in size from 108.97 square meters (1,172 square feet) to 137.61 square meters (1,481 square feet)
The Self-Build Plot Purchaser will be responsible for obtaining Planning Permission for their proposed dwelling and may vary the size of the proposed dwelling with the Vendor's approval.
Location - The site is located on the northern edge of Sutton approximately 6 miles (9.5 kilometres) west of Ely and 5 miles (8.5 kilometres) south east of Chatteris. The site is well connected to the village centre with easy access to services and local facilities.
Sutton is a large village in the East Cambridgeshire District and benefits from a range of services including a Pre School, Primary School, GP Surgery, Pharmacy, Library and Post Office. The village also has a range of shops, food and drink establishments as well as recreational facilities.
Vehicular access to the A142 is provided via Ely Road thus enabling easy access to the strategic highway network, the A10 and A14. A local bus service runs between Ely and Chatteris providing a regular bus services.
The nearest railway station to the site is the station in Ely which provides rail connections to Cambridge and London.
Description - Nine Self-Build Plots ranging in size from 276 square metres to 407 square metres situated on the western edge of the new development off Mepal Road, Sutton.
The Self-Build Plots are suitable for the construction of two storey detached houses ranging in size from 108.97 square metres (1,172 square feet) to 137.61 square metres (1,481 square feet) although the Self-Build Plot Purchaser will be responsible for obtaining Planning Permission for their proposed dwelling and may vary the size of the proposed dwelling with the Vendor's approval.
Planning - The Purchaser of the Self-Build Plot will be responsible for obtaining Planning Permission for the Self-Build Unit. The principle of development of the Self-Build Unit on the Self-Build Plot is secured under the Section 106 Agreement pursuant to the wider development Outline Planning Permission ref: 24/00747/VARM.
The Purchaser will be required to prepare and submit a draft Planning Application for the proposed Self-Build dwelling house to the Vendor for their approval, such approval not to be unreasonably withheld.
The Purchaser will submit the Planning Application to the Local Planning Authority within 14 working days of receiving the Vendor's approval to the draft Planning Application. The Purchaser will use reasonable endeavours to secure a satisfactory Planning Permission as soon as reasonable possible. The Purchaser shall keep the Vendor regularly informed as to the progress of the Planning Application.
Design Brief And Specifications - The Plot Passport Plan shows the plot areas and approximate developable footprints and includes details on:
Building Zone - The house must be contained and should not exceed the 'building zone' marked on the plan, unless otherwise agreed. The footprint of the house does not need to fill the entire building zone.
Services/utility easements - a no building zone is shown to allow for provision of services and utility connection points and any required easements.
Set back distances required between the building elevations and the adoptable highway.
Access points with parking to conform with East Cambridgeshire District Council Parking Standards.
Details of the scale, external appearance and landscaping proposals are subject to approval by the Vendor and the Local Planning Authority. The Vendor does not wish to restrict innovation and individuality of design, but proposals will need to have due regard to the wider development.
Timescales - Construction of the Self-Build Unit is to be completed within 12 months of the start on site in order to minimise disruption to other neighbours, unless otherwise agreed by the Vendor. This will be secured contractually and is over and above any relevant timescales detailed in the Planning Permission.
Access - The Vendor will provide vehicular access and pedestrian access points in accordance with the road layout approved under Reserved Matters Approval ref: 24/00340/RMM. Each plot has a designated vehicular access point as shown on the Plot Passport Plan.
Services - Each plot will be provided with access to foul and surface water drainage and connections to potable water and telecommunications. Each plot will be provided with capacity and point of connection for electricity. Driveways to be constructed with permeable block paving to align with site-wide surface water strategy.
Management Company - There is no Management Company anticipated for the development. Public open space is proposed to be adopted by the local Council.
Community Infrastructure Levy - The Purchaser will be responsible for obtaining Self-Build Housing Relief from the Collecting Authority (East Cambridgeshire District Council). Parties are advised to seek their own advice on all matters relating to Community Infrastructure Levy (CIL).
The regulations state that the property must remain the self-builders principle residence for a minimum of 3 years following completion, otherwise the CIL may be reclaimed by the Collecting Authority.
Health And Safety Requirements - Each Plot Purchaser will be their own principal contractor and will be responsible for their own health and safety procedures. Should the Purchaser cause any damage to Estate Roads and Service Media the Purchaser will be responsible for repairing the damage. In addition, the Plot Purchaser and their contractors will need to abide by the Vendor's Construction and Environmental Management Plan.
Value Added Tax - No VAT will be chargeable on the sale price.
Tenure - The freehold of the site is offered for sale with vacant possession on completion.
Method Of Sale - The site is offered for sale by private treaty.
Viewings - Viewings are strictly by appointment with the Agents:
Cheffins, 25 Market Place, Ely, Cambridgeshire, CB7 4NP.
[use Contact Agent Button]
[use Contact Agent Button]
[use Contact Agent Button]
[use Contact Agent Button]
The Self-Build Plots are suitable for the construction of two storey detached houses ranging in size from 108.97 square meters (1,172 square feet) to 137.61 square meters (1,481 square feet)
The Self-Build Plot Purchaser will be responsible for obtaining Planning Permission for their proposed dwelling and may vary the size of the proposed dwelling with the Vendor's approval.
Location - The site is located on the northern edge of Sutton approximately 6 miles (9.5 kilometres) west of Ely and 5 miles (8.5 kilometres) south east of Chatteris. The site is well connected to the village centre with easy access to services and local facilities.
Sutton is a large village in the East Cambridgeshire District and benefits from a range of services including a Pre School, Primary School, GP Surgery, Pharmacy, Library and Post Office. The village also has a range of shops, food and drink establishments as well as recreational facilities.
Vehicular access to the A142 is provided via Ely Road thus enabling easy access to the strategic highway network, the A10 and A14. A local bus service runs between Ely and Chatteris providing a regular bus services.
The nearest railway station to the site is the station in Ely which provides rail connections to Cambridge and London.
Description - Nine Self-Build Plots ranging in size from 276 square metres to 407 square metres situated on the western edge of the new development off Mepal Road, Sutton.
The Self-Build Plots are suitable for the construction of two storey detached houses ranging in size from 108.97 square metres (1,172 square feet) to 137.61 square metres (1,481 square feet) although the Self-Build Plot Purchaser will be responsible for obtaining Planning Permission for their proposed dwelling and may vary the size of the proposed dwelling with the Vendor's approval.
Planning - The Purchaser of the Self-Build Plot will be responsible for obtaining Planning Permission for the Self-Build Unit. The principle of development of the Self-Build Unit on the Self-Build Plot is secured under the Section 106 Agreement pursuant to the wider development Outline Planning Permission ref: 24/00747/VARM.
The Purchaser will be required to prepare and submit a draft Planning Application for the proposed Self-Build dwelling house to the Vendor for their approval, such approval not to be unreasonably withheld.
The Purchaser will submit the Planning Application to the Local Planning Authority within 14 working days of receiving the Vendor's approval to the draft Planning Application. The Purchaser will use reasonable endeavours to secure a satisfactory Planning Permission as soon as reasonable possible. The Purchaser shall keep the Vendor regularly informed as to the progress of the Planning Application.
Design Brief And Specifications - The Plot Passport Plan shows the plot areas and approximate developable footprints and includes details on:
Building Zone - The house must be contained and should not exceed the 'building zone' marked on the plan, unless otherwise agreed. The footprint of the house does not need to fill the entire building zone.
Services/utility easements - a no building zone is shown to allow for provision of services and utility connection points and any required easements.
Set back distances required between the building elevations and the adoptable highway.
Access points with parking to conform with East Cambridgeshire District Council Parking Standards.
Details of the scale, external appearance and landscaping proposals are subject to approval by the Vendor and the Local Planning Authority. The Vendor does not wish to restrict innovation and individuality of design, but proposals will need to have due regard to the wider development.
Timescales - Construction of the Self-Build Unit is to be completed within 12 months of the start on site in order to minimise disruption to other neighbours, unless otherwise agreed by the Vendor. This will be secured contractually and is over and above any relevant timescales detailed in the Planning Permission.
Access - The Vendor will provide vehicular access and pedestrian access points in accordance with the road layout approved under Reserved Matters Approval ref: 24/00340/RMM. Each plot has a designated vehicular access point as shown on the Plot Passport Plan.
Services - Each plot will be provided with access to foul and surface water drainage and connections to potable water and telecommunications. Each plot will be provided with capacity and point of connection for electricity. Driveways to be constructed with permeable block paving to align with site-wide surface water strategy.
Management Company - There is no Management Company anticipated for the development. Public open space is proposed to be adopted by the local Council.
Community Infrastructure Levy - The Purchaser will be responsible for obtaining Self-Build Housing Relief from the Collecting Authority (East Cambridgeshire District Council). Parties are advised to seek their own advice on all matters relating to Community Infrastructure Levy (CIL).
The regulations state that the property must remain the self-builders principle residence for a minimum of 3 years following completion, otherwise the CIL may be reclaimed by the Collecting Authority.
Health And Safety Requirements - Each Plot Purchaser will be their own principal contractor and will be responsible for their own health and safety procedures. Should the Purchaser cause any damage to Estate Roads and Service Media the Purchaser will be responsible for repairing the damage. In addition, the Plot Purchaser and their contractors will need to abide by the Vendor's Construction and Environmental Management Plan.
Value Added Tax - No VAT will be chargeable on the sale price.
Tenure - The freehold of the site is offered for sale with vacant possession on completion.
Method Of Sale - The site is offered for sale by private treaty.
Viewings - Viewings are strictly by appointment with the Agents:
Cheffins, 25 Market Place, Ely, Cambridgeshire, CB7 4NP.
[use Contact Agent Button]
[use Contact Agent Button]
[use Contact Agent Button]
[use Contact Agent Button]
Property information from this agent
Area statistics
Crime score
Low crime
1/10
Home prices (average)
Houses
£235,000
£235,000
About this agent

Established in 1825, Cheffins estate agency business operates from five offices across the Anglia region including Cambridge, Saffron Walden, Newmarket, Ely and Haverhill; we also have an office in London. We understand that moving house is a major event and we do everything we can to make it as smooth as possible. Cheffins has a proven track record in buying, selling and letting residential property. The team at Cheffins has significant market experience and buyers, sellers, landlords and tenants are accustomed to a dedicated personal and professional service delivered with integrity. Our London office team complement our regional expertise by getting exposure for your house to buyers and sellers in the capital providing an extra dimension to our regional service and making sure your house is seen by as many prospective buyers as possible. Call us today for a free, no obligation sales valuation on your property or to find out how much your property could be worth should you choose to rent it out.
Similar properties
Discover similar properties nearby in a single step.






Area stats

