Popular
Total views: 2500+
Land for sale
Building Plot 2, Coxmoor Road, Sutton-in-Ashfield
Study
Land
0.44 acre(s)
Key information
Features and description
- Building Plot (0.44 Acres)
- Detailed Planning Consent Approved
- Striking Contemporary Detached House
- Over Three Floors: 4,036 Sq Ft (375m2)
- 4 Bedroom Suites & 5 Bath/Shower Rooms
- Huge Open Plan Living/Dining/Kitchen
- Substantial Ground Floor Balcony (344 Sq Ft)
- Separate Detached Double Garage
- South Facing Open Rear Views
- Rare Self Build Opportunity!
We have pleasure in offering to the market a building plot (0.44 acres) with detailed planning consent approved for the construction of a substantial detached family home (4,036 sq ft) with four double bedrooms and five bath/shower rooms arranged over three floors, together with a separate detached double garage in an elevated position with wonderful, south facing, open rear views.
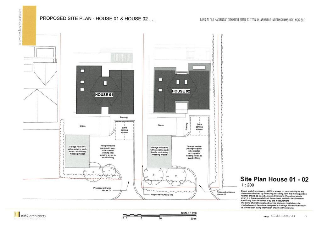
An exciting opportunity to acquire a building plot extending to circa 0.44 of an acre or thereabouts with detailed planning consent approved for a substantial detached family house of striking contemporary and gabled design.
Detailed planning consent was approved by Ashfield District Council on 19th September 2025 under planning reference number V/2025/0370.
The plot is positioned in a desirable location on Coxmoor Road in a commanding and elevated position with wonderful south facing rear views.
House 2 boasts 4,036 sq ft (375m2) arranged over three floors with a separate detached double garage with an adjoining store which provides a further 527 sq ft (49m2). The ground floor living accommodation comprises a stunning vaulted entrance hallway with double doors opening to a huge open plan living/dining/kitchen. There is a plant room, cloaks, WC, boot room, utility room, home office and a separate living room. There is a substantial 344 sq ft (32m2) balcony at ground floor level extending across the full width of the property overlooking the lower level terrace, rear garden and south facing open countryside beyond. The lower level ground floor provides a hallway, gym, home cinema/games room, bike store, plant room and a shower room. The lower ground floor configuration could be changed for alternative use such as additional bedroom or granny annex. The vaulted first floor galleried landing enjoys the best of the south facing views, together with lovely views over Coxmoor golf club to the north. There are four large bedroom suites each with vaulted ceilings and an en suite. The master bedroom has an en suite bathroom, a walk-in wardrobe and a 7m2 balcony.
The plot stands in a prime location on Coxmoor Road alongside a variety of individual and high value homes all occupying large plots. The approved plans show house 2 has its own private driveway entrance providing ample off road parking with turning space and a separate detached double garage with an adjoining store. The rear garden features a substantial, south facing terrace garden with steps leading to a large garden bordering to open countryside.
This is a rare opportunity for developers and self builders who are looking to build their own dream home! Our client is prepared to offer a design and build option if required and begin construction immediately.
An exciting opportunity to acquire a building plot extending to circa 0.44 of an acre or thereabouts with detailed planning consent approved for a substantial detached family house of striking contemporary and gabled design.
Detailed planning consent was approved by Ashfield District Council on 19th September 2025 under planning reference number V/2025/0370.
The plot is positioned in a desirable location on Coxmoor Road in a commanding and elevated position with wonderful south facing rear views.
House 2 boasts 4,036 sq ft (375m2) arranged over three floors with a separate detached double garage with an adjoining store which provides a further 527 sq ft (49m2). The ground floor living accommodation comprises a stunning vaulted entrance hallway with double doors opening to a huge open plan living/dining/kitchen. There is a plant room, cloaks, WC, boot room, utility room, home office and a separate living room. There is a substantial 344 sq ft (32m2) balcony at ground floor level extending across the full width of the property overlooking the lower level terrace, rear garden and south facing open countryside beyond. The lower level ground floor provides a hallway, gym, home cinema/games room, bike store, plant room and a shower room. The lower ground floor configuration could be changed for alternative use such as additional bedroom or granny annex. The vaulted first floor galleried landing enjoys the best of the south facing views, together with lovely views over Coxmoor golf club to the north. There are four large bedroom suites each with vaulted ceilings and an en suite. The master bedroom has an en suite bathroom, a walk-in wardrobe and a 7m2 balcony.
The plot stands in a prime location on Coxmoor Road alongside a variety of individual and high value homes all occupying large plots. The approved plans show house 2 has its own private driveway entrance providing ample off road parking with turning space and a separate detached double garage with an adjoining store. The rear garden features a substantial, south facing terrace garden with steps leading to a large garden bordering to open countryside.
This is a rare opportunity for developers and self builders who are looking to build their own dream home! Our client is prepared to offer a design and build option if required and begin construction immediately.
Property information from this agent
Area statistics
Crime score
Low crime
0/10
About this agent

Richard Watkinson & Partners is one of the East Midlands most established estate agencies having had a presence in the area for more than 30 years. Our experienced and trusted agency has offices across the region specialising in residential and commercial sales as well as lettings. With friendly, approachable and knowledgeable staff, Richard Watkinson & Partners is known for its expertise in all areas of property. "I set up Richard Watkinson & Partners is 1988 with just three staff in a small office in North Gate, Newark. "A lot has changed since then - we now have more than 30 members of staff, six offices across the East Midlands as well as dedicated lettings, new homes and commercial agents - but the core values I set out when I started the business have remained. "High levels of customer service, a friendly, personable approach to estate agency and excellent local knowledge are all paramount in delivering a professional and effective service. These are the values upon which I built Richard Watkinson & Partners and I'm proud that these are always at the forefront of our agents' minds when dealing with customers. "Estate agency itself hasn't changed, it's still a business which orientates around people and that is something we instil in all of our staff. People still like to walk into their local estate agency, browse properties and talk to an agent who knows the area and can provide useful advice on how to buy or sell a home. All of our staff live locally and are able to provide the best possible local knowledge, providing customers with a personal service on which they can rely. "I'm proud that we remain a local, family-run business - always putting the customer first - and that our strong roots in the East Midlands continue to enable us to act as one of the region's leading agents across residential and commercial lettings and sales." - Founder, Richard Watkinson















Floorplans (
Area stats