Land for sale
Features and description
- Land on the North West Side Of 2 The Terrace
- Current Planning For 3 Bed Single Storey Property
- Plot size circa 0.22 acres
- Popular Village Location with Country Pub
- Close Proximity to Alnwick Town
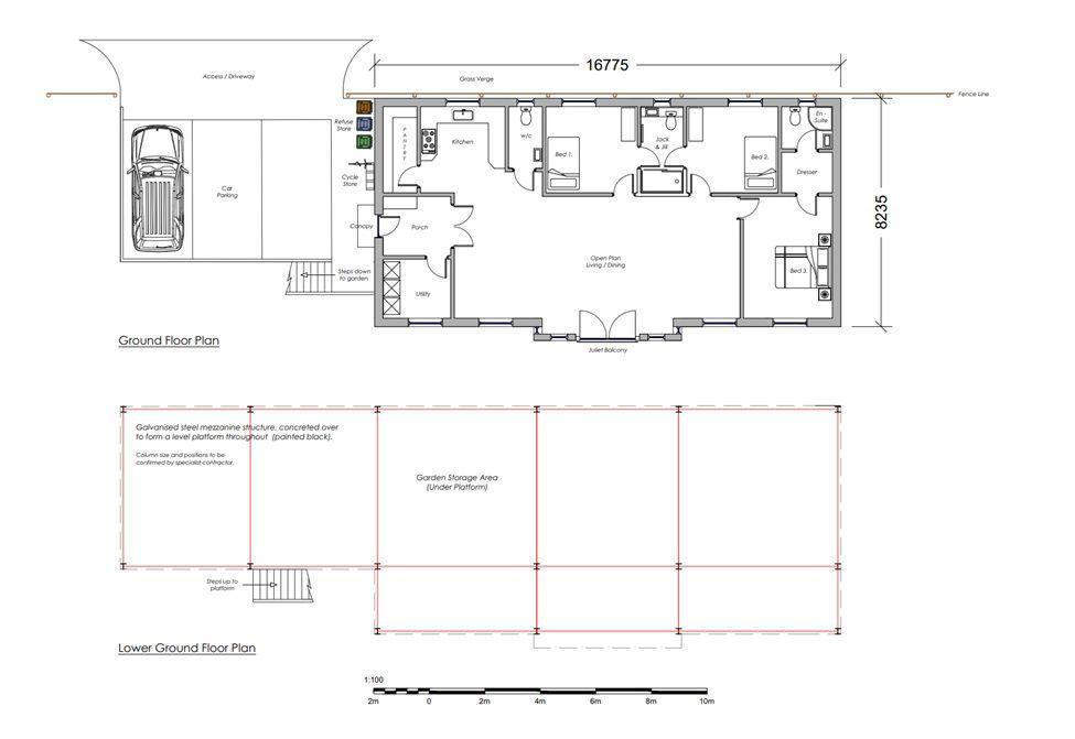
A superb opportunity to acquire a newly proposed three-bedroom detached home in the heart of the picturesque Northumbrian village of Eglingham. Designed to blend seamlessly with its surroundings, the property will feature natural stone elevations, traditional slate roofing, and thoughtfully designed accommodation throughout.
The ground floor offers an impressive open-plan living and dining area (approximately 7.2m x 4.5m) with double doors leading to a Juliet balcony that enjoys views across the countryside. The kitchen (approximately 3.2m x 3.0m) is positioned to the front of the property and connects conveniently to a utility room (approximately 2.5m x 1.9m) and a welcoming entrance porch.
The principal bedroom (approximately 4.1m x 3.2m) benefits from an en-suite shower room, while Bedrooms Two and Three (approximately 3.6m x 3.2m and 3.0m x 2.8m) share a Jack and Jill shower room. The layout offers flexibility and flow, ideal for modern family living or those seeking a peaceful countryside retreat.
Externally, the property includes a driveway and parking area, with potential for a garage (subject to planning). The unique design sits on a galvanised steel mezzanine platform, allowing for a substantial lower ground level—currently designated as garden storage but offering excellent potential to extend beneath the property. This space could, subject to the necessary consents, be developed into further accommodation, a garden room, or leisure area, effectively doubling the overall footprint of the home.
The gardens surrounding the property provide ample space for landscaping and outdoor enjoyment.
Location
Eglingham is a charming and tranquil village set amidst the rolling hills of the Northumbrian countryside. The village is well known for its welcoming community and amenities, including the popular Tankerville Arms country pub and an active village hall, both of which host a variety of local events and activities.
The nearby historic market town of Alnwick lies approximately 8 miles to the east, offering an excellent range of facilities including supermarkets, independent shops, cafés, restaurants, and schools for all ages. Alnwick is also home to the famous Alnwick Castle and Gardens, a major regional attraction.
For those wishing to commute or travel further afield, the mainline railway station at Alnmouth is approximately 12 miles away, providing direct rail services to Newcastle, Edinburgh, and London King’s Cross. The A1 is also easily accessible, offering convenient road links throughout the region.
Rooms
Planning Permission
Planning Permission
Planning permission (Ref: 22/01310/VARYCO) was granted by Northumberland County Council on 11th July 2022 for a revised scheme improving the original design while maintaining a two-storey height. The approved plans include the use of natural stone and slate finishes and a landscaping scheme, ensuring the development complements its surroundings.
Services
Mains connections adjoin the site
Tenure
The property is Freehold title reference is ND164185
Accommodation
The property comprises a spacious open-plan living and dining area (7.2m x 4.5m) with Juliet balcony and countryside views, a kitchen (3.2m x 3.0m) with walk in larder and adjoining utility room (2.5m x 1.9m), and an entrance porch. There are three bedrooms, including a principal bedroom (4.1m x 3.2m) with en-suite shower room, and two further bedrooms (3.6m x 3.2m and 3.0m x 2.8m) sharing a Jack and Jill shower room.
Externally, the home offers a driveway and parking area, with potential for a garage (subject to planning). Built on a galvanised steel mezzanine platform, the design provides a lower ground level currently used as garden storage, with scope to create additional living or leisure space (subject to consents). Generous gardens surround the property, offering excellent scope for landscaping and outdoor enjoyment.
Location
Location
Eglingham is a charming and tranquil village set amidst the rolling hills of the Northumbrian countryside. The village is well known for its welcoming community and amenities, including the popular Tankerville Arms country pub and an active village hall, both of which host a variety of local events and activities.
The nearby historic market town of Alnwick lies approximately 8 miles to the east. Alnwick is also home to the famous Alnwick Castle and Gardens, a major regional attraction.
For those wishing to commute or travel further afield, the mainline railway station at Alnmouth is approximately 12 miles away, providing direct rail services to Newcastle, Edinburgh, and London King’s Cross. The A1 is also easily accessible, offering convenient road links throughout the region.
Auctioneers Additional Comments
Pattinson Auction are referred to below as The Auctioneer. This auction lot is being sold under either conditional (Modern) or unconditional (Traditional) auction terms and overseen by the auctioneer. The property is available to view strictly by appointment only via any Marketing Agent or The Auctioneer. Please be aware that any enquiry, bid or viewing of the subject property will require your details being shared between any marketing agent and The Auctioneer so that all matters can be dealt with effectively. The property is being sold via a transparent online auction. To submit a bid on any property marketed by The Auctioneer, all bidders buyers must adhere to a verification of identity process in line with Anti Money Laundering procedures. Bids can be submitted at any time and from anywhere. Our verification process is in place to ensure AML procedures are carried out in accordance with the law
Auctioneers Additional Comments
The advertised price is commonly referred to as a Starting Bid or Guide Price and is accompanied by a Reserve Price. The Reserve Price is confidential to the seller and the auctioneer and will typically be within a range above or below 10% of the Guide Price , Starting Bid. These prices are subject to change. An auction can be closed at any time with the auctioneer permitting for the property (the lot) to be sold prior to the end of the auction. A Legal Pack associated with this particular property is available to view upon request and contains details relevant to the legal documentation enabling all interested parties to make an informed decision prior to bidding. The Legal Pack will also outline the buyers obligations and sellers commitments. It is strongly advised that you seek the counsel of a solicitor prior to proceeding with any property and/or Land Title purchase.
Auctioneers Additional Comments
In order to secure the property and ensure commitment from the seller, upon exchange of contracts, the successful bidder will be expected to pay a non-refundable deposit equivalent to 5% of the purchase price. The deposit will form part of the purchase price. A non-refundable reservation fee of up to 6% inc VAT (Subject to a minimum fee which could be up to 7,200 inc VAT) is also payable upon agreement of sale. The Reservation Fee is in addition to the agreed purchase price, and consideration should be given by the purchaser to any Stamp Duty Land Tax liability associated with the overall purchase costs. Both the Marketing Agent and the Auctioneer may consider it necessary or beneficial to pass customer details to third-party service suppliers, from whom a referral fee may be received. There is no requirement or obligation to use any recommended suppliers or services.
Area statistics
About this agent










Area stats