Popular
Total views: 2500+
Guide price
£235,0002 bedroom terraced house for sale
High Street, Wickham Market, Woodbridge, Suffolk, IP13
Study
Terraced house
2 beds
1 bath
656
EPC rating: D
Key information
Tenure: Freehold
Council tax: Ask agent
Features and description
- Charming cottage
- Two bedrooms
- Close to the market square
- Beautiful rear garden
- Easy reach of Woodbridge
A charming cottage, located a stone's throw from the market square and local amenities, with a delightful rear garden.
This two bedroom cottage offers well presented accommodation that blends modern day living with charming character.
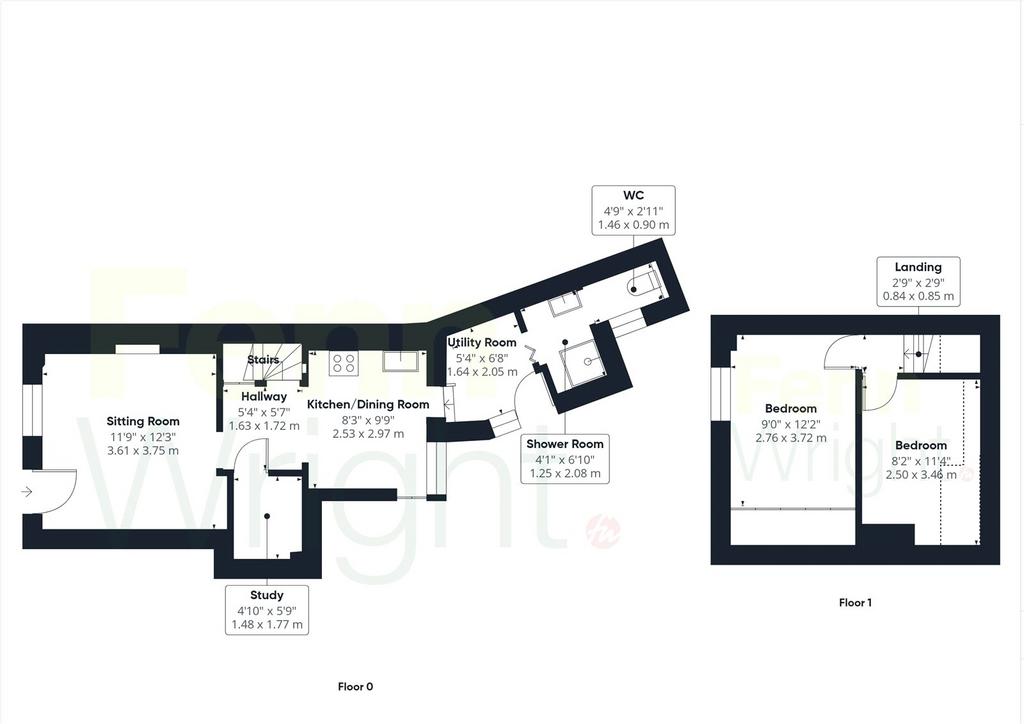
The front door opens into the sitting room which has a UPVC double glazed sash window to the front aspect and a feature fireplace with space for an electric wood burning stove.
A door leads into an inner lobby, where there are stairs to the first floor, with a storage cupboard and study.
The lobby opens up into a kitchen/dining room, with a window to the rear aspect. The kitchen has been fitted with a number of eye level and base units with worktops over and an inset sink and drainer, and there is space for a cooker, with an extractor fan over. There is a storage cupboard which also houses the boiler.
Steps lead down into a utility area, where there is space for a fridge freezer and plumbing for a washing machine. A door leads out to the rear garden.
Finally the ground floor accommodation is completed by the shower room, which has a shower cubicle, WC and basin.
The first floor comprises two double bedrooms, one with an aspect to the front and the other to the rear. Bedroom one benefits from floor to ceiling built in wardrobes.
Outside
The rear garden is securely fenced and laid to patio and shingle. There is an outside storage cupboard, a garden shed and a summer house which offers a great space to sit and enjoy the garden. There is an abundance of mature planting and flower beds, and a gate at the rear of the garden provides a shared external access onto George Lane, which leads to the High Street.
Important Information
Council tax band - A
Tenure - Freehold
Services - We undersatnd that mains water, drainage, gas and electricty have been connected to the property.
EPC - D
Our ref - JED
This two bedroom cottage offers well presented accommodation that blends modern day living with charming character.
The front door opens into the sitting room which has a UPVC double glazed sash window to the front aspect and a feature fireplace with space for an electric wood burning stove.
A door leads into an inner lobby, where there are stairs to the first floor, with a storage cupboard and study.
The lobby opens up into a kitchen/dining room, with a window to the rear aspect. The kitchen has been fitted with a number of eye level and base units with worktops over and an inset sink and drainer, and there is space for a cooker, with an extractor fan over. There is a storage cupboard which also houses the boiler.
Steps lead down into a utility area, where there is space for a fridge freezer and plumbing for a washing machine. A door leads out to the rear garden.
Finally the ground floor accommodation is completed by the shower room, which has a shower cubicle, WC and basin.
The first floor comprises two double bedrooms, one with an aspect to the front and the other to the rear. Bedroom one benefits from floor to ceiling built in wardrobes.
Outside
The rear garden is securely fenced and laid to patio and shingle. There is an outside storage cupboard, a garden shed and a summer house which offers a great space to sit and enjoy the garden. There is an abundance of mature planting and flower beds, and a gate at the rear of the garden provides a shared external access onto George Lane, which leads to the High Street.
Important Information
Council tax band - A
Tenure - Freehold
Services - We undersatnd that mains water, drainage, gas and electricty have been connected to the property.
EPC - D
Our ref - JED
Property information from this agent
About this agent

Estate Agents, Letting Agents and Commercial Agency Our Woodbridge branch is one of eleven in Essex and Suffolk and headed up by Callum Jacobs, who previously worked in our Kesgrave and Ipswich branches. Callum's team of estate agents in Woodbridge are experts at selling homes within Woodbridge and Melton, as well as all nearby villages including Waldringfield and Grundisburgh. The residential lettings department look after hundreds of properties for local and national landlords. Woodbridge was named one of the happiest places to live in the UK – and we couldn’t agree more! The Signature team are dedicated to finding buyers for the most desirable town houses, country homes and properties with character for sale in Woodbridge. From detached bungalows in rural areas to stunning properties in Woodbridge town centre, there’s something for everyone. Our Commercial agency team in Suffolk is headed up by Alistair Mitchell MRICS, a Partner at Fenn Wright. The team are specialists at selling and letting commercial property. Over the years, they have won industry awards for being the most active commercial agents in this region. If you’re looking for an estate agent in Woodbridge, why not pop in for a chat about your next move? You’ll find us at Nunn’s Mill, between The Anchor and the Turban Centre. Call us today for a free, no obligation, market appraisal of your property or to find houses for sale in Woodbridge on 01394 807906.
















Floorplan