Popular
Total views: 2500+
3 bedroom flat for sale
Santa Cruz Drive, Eastbourne
Chain-free
Flat
3 beds
2 baths
EPC rating: C
Key information
Tenure: Leasehold | 95 yrs left
Service charge: £2,220.61 per annum
Council tax: Band D
Broadband: Ultra-fast 1000Mbps *
Mobile signal:
EEO2ThreeVodafone
Features and description
- Spacious Harbour Apartment
- 3 Bedrooms
- First Floor
- Spacious Lounge/Dining Room
- Sun Balcony
- Fitted Kitchen
- En-Suite Shower Room/WC
- Bathroom/WC
- Car Port
- Chain free
Video tours
A spacious three bedroom, two bathroom apartment situated on the first floor of a purpose built block in the heart of the harbour. The property offers generous living accommodation, a private balcony and a private car port. While the flat would benefit from some updating, it presents an excellent opportunity to modernise to your own taste. Ideally located close to the waterfront, residents can enjoy the vibrant harbour lifestyle with an array of shops, restaurants and cafes just moments away, as well as easy access to local bus routes and coastal walks. Offered CHAIN FREE, this property is perfect for buyers looking for a well positioned home with great potential.
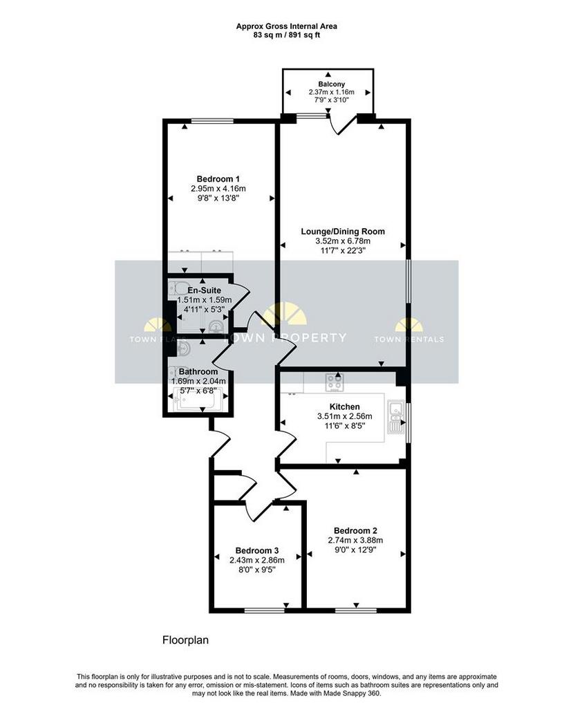
Entrance - Communal entrance with security entry phone system. Stairs to first floor private entrance door to -
Hallway - Radiator. Entryphone handset. Airing cupboard.
Lounge/Dining Room - 6.78m x 3.53m (22'3 x 11'7 ) - Radiator. Double glazed window to rear aspect. Double glazed patio doors to -
Sun Balcony - 2.36m x 1.17m (7'9 x 3'10 ) - To side aspect.
Fitted Kitchen - 3.51m x 2.57m (11'6 x 8'5 ) - Range of fitted wall and base units. Worktop with inset one & a half bowl single drainer sink unit and mixer tap. Inset gas hob and electric oven under. Extractor cooker hood. Integrated fridge/freezer. Plumbing and space for washing machine and dishwasher. Boiler. Radiator. Double glazed window to rear aspect.
Bedroom 1 - 4.17m x 2.95m (13'8 x 9'8 ) - Radiator. Fitted wardrobe. Double glazed window to side aspect. Door to -
En-Suite Shower Room/Wc - Suite comprising panelled shower cubicle. Low level WC. Wash hand basin. Extractor fan. Heated towel rail.
Bedroom 2 - 3.89m x 2.74m (12'9 x 9'0 ) - Radiator. Double glazed window to side aspect.
Bedroom 3 - 2.87m x 2.44m (9'5 x 8'0 ) - Radiator. Double glazed window to side aspect.
Bathroom/Wc - Suite comprising panelled bath with chrome mixer tap. Wash hand basin. Low level WC. Extractor fan. Shaver point. Heated towel rail.
Parking - There is a car port for 1 vehicle.
Epc = C -
Council Tax Band = D -
Entrance - Communal entrance with security entry phone system. Stairs to first floor private entrance door to -
Hallway - Radiator. Entryphone handset. Airing cupboard.
Lounge/Dining Room - 6.78m x 3.53m (22'3 x 11'7 ) - Radiator. Double glazed window to rear aspect. Double glazed patio doors to -
Sun Balcony - 2.36m x 1.17m (7'9 x 3'10 ) - To side aspect.
Fitted Kitchen - 3.51m x 2.57m (11'6 x 8'5 ) - Range of fitted wall and base units. Worktop with inset one & a half bowl single drainer sink unit and mixer tap. Inset gas hob and electric oven under. Extractor cooker hood. Integrated fridge/freezer. Plumbing and space for washing machine and dishwasher. Boiler. Radiator. Double glazed window to rear aspect.
Bedroom 1 - 4.17m x 2.95m (13'8 x 9'8 ) - Radiator. Fitted wardrobe. Double glazed window to side aspect. Door to -
En-Suite Shower Room/Wc - Suite comprising panelled shower cubicle. Low level WC. Wash hand basin. Extractor fan. Heated towel rail.
Bedroom 2 - 3.89m x 2.74m (12'9 x 9'0 ) - Radiator. Double glazed window to side aspect.
Bedroom 3 - 2.87m x 2.44m (9'5 x 8'0 ) - Radiator. Double glazed window to side aspect.
Bathroom/Wc - Suite comprising panelled bath with chrome mixer tap. Wash hand basin. Low level WC. Extractor fan. Shaver point. Heated towel rail.
Parking - There is a car port for 1 vehicle.
Epc = C -
Council Tax Band = D -
Property information from this agent
About this agent

Town Property are one of the largest and most successful estate agents in Eastbourne. Our company consists of Town Property, Town Flats, Town Rentals and Town Financial. We are a family run business and were established in 1989. We are consistently Eastbourne's top selling estate agents. We occupy arguably the most prominent position for exposure of homes in Eastbourne, being located in Cornfield Road. Our state of the art premises, with unrivalled technology, have been designed to offer a very friendly and inviting environment for our clients. Our sales department is on the ground floor and our rentals department on the first floor.
Similar properties
Discover similar properties nearby in a single step.




















Floorplan