6 bedroom detached house for sale
Key information
Features and description
- This listing is provided in association with Foxtons, London's leading estate agent.
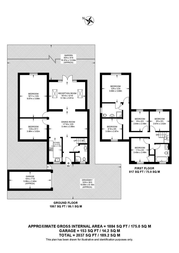
- Large six-bedroom detached house with flexible living over two floors
- Open plan kitchen/living space opening to the garden
- Main bedroom on first floor with ensuite shower
- Two additional bathrooms
- Large sunny garden with side access
- Driveway parking for three vehicles and a garage
- Gross internal floor area is approximately 2,037 Sq Ft (189.24 Sq M)
- Online Auction on Wednesday, 17 December 2025
This bright and spacious six bedroom house offers a stunning open plan kitchen and double reception, a large sunny garden, plus six double bedrooms, one ensuite and two additional bathrooms.
Additional Comments
BidX1 and Foxtons are working in Partnership as Joint Agents for the online auction and due to this any enquiries, viewings, bids or offers on the property will require your details to be shared between both Bidx1 & Foxtons.
Viewings are by appointment only unless open house times are displayed, please contact us to book your appointment with our Auction teams.
Subject to confirmation
This means the buyer is invited to place a bid at or above the opening bid price of the listed property. Once bidding is closed, the vendor has 48 hours to decide if they want to accept the highest bid or not. If you are not the highest bidder your participation fee will be refunded in full within a maximum of 5 business days (unless delayed by the card provider) post the bidding closing time. If you are successful following vendor acceptance, in accordance with the authority you provided on registration, BidX1 will sign legally binding contracts relating to the sale of the property on behalf of you and the vendor.
Location:
Morland Close is a quiet cul-de-sac located in the heart of Hampton, situated a short distance from Hampton high street and station. There is also easy access to Bushy Park and the A316 for motorists.
Accomodation:
Ground floor: kitchen, dining/reception room, two bedrooms and shower room.
First floor: main bedroom en suite, four bedrooms and bathroom.
Garage.
Online Auction on Wednesday, 17 December 2025. For further information, such as legal documents and property information, please visit bidx1.com.
About this agent

















