Popular
Total views: 2500+
Guide price
£490,000Mixed use for sale
Post Office House and Supply Stores, Badsell Road, Five Oak Green, Tonbridge, Kent
Auction
Mixed use
7 beds
Key information
Features and description
- For Sale by Online Auction
- Auction Date : 30 October 2025
- Lot Number : 98
- Freehold Convenience Store Investment And Vacant Seven-bedroom House For Refurbishment
- Mixed Commercial/Residential
- Freehold
- Current Rental : £22,230 Per Annum
- *Guide Price : £490,000 Plus Fees
Substantial two and three storey buildings overlooking the green, located in the very heart of the popular village of Five Oak Green, conveniently located within easy reach of Tonbridge.
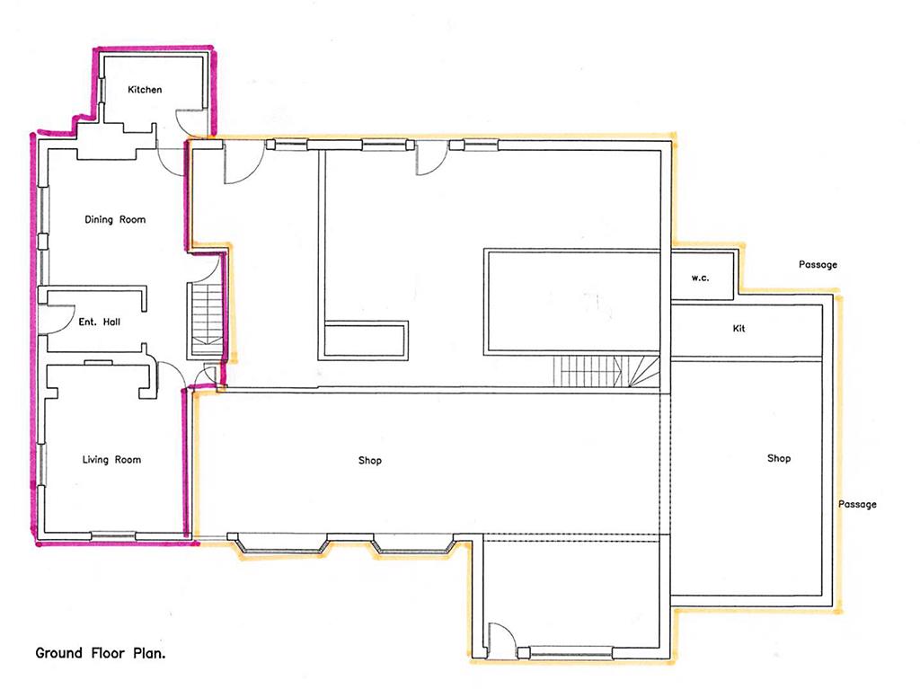
Comprising a One Stop convenience store and Post Office at ground floor level and a vacant 6/7 bedroom house on the ground and first floors, together with a maisonette sold on a long lease.
OneStop Convenience Store and Post Office
Retail area, storeroom, kitchen and W.C.
EPC Rating
D (84). Total Floor Area 150 sq.m.
Tenancy
Let on a Commercial Lease, from 1st September 2025 to and including 1st September 2044, at a current rental of £22,230 per annum with rent reviews in September 2029 and every five yearly thereafter. There are no breaks and at review the rent increases to the higher of open market value, or in line with RPI (Retail Price Index).
Post Office House - Vacant
Ground Floor
Entrance hall, dining room, living room and kitchen.
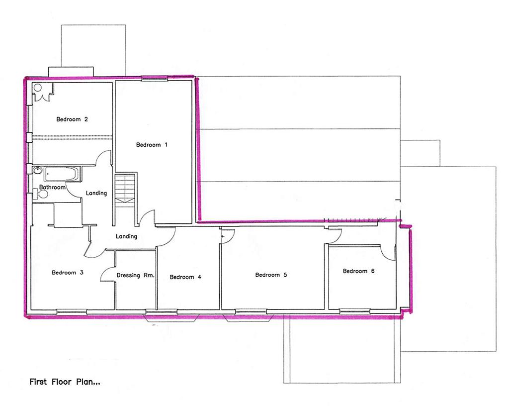
First Floor
Landing, six bedrooms, plus dressing room/seventh bedroom and bathroom with W.C.
Outside
Gardens to rear.
EPC Rating E
Council Tax Band D
Orchard Flat
Tenure
Sold on a 170-year lease from 1974 at a peppercorn ground rental.
Site Measurements
The site extends to 0.06 hectares (0.14 acres).
Freehold with Part Vacant Possession
Residential EPC: E
Commercial EPC: D
Important:
All lots are sold subject to the Common Auction Conditions and Special Conditions of Sale (unless varied by the Sellers Solicitors), together with the Addendum, which will be available on the Auction Day.
Price Information
*Guides are provided as an indication of each Seller's minimum expectation. They are not necessarily figures at which a property will sell for and may change at any time prior to Auction. Unless stated otherwise, each Lot will be offered subject to a reserve (a figure below which the Auctioneer cannot sell the Lot during the Auction). We expect the reserve will be set within the guide range or no more than 10% above a single figure guide. Please check our website regularly at , or contact us on[use Contact Agent Button], in order to stay fully informed with the up-to-date information.
*An Administration fee and Other non-optional fees may also be payable in addition to the bid price. All lots are offered subject to the Common Auction Conditions and Special Conditions of Sale or Revised Special Conditions of Sale (as applicable) and may include the repayment of search and other fees and or costs payable by the buyer. All buyers are advised to inspect all available legal documentation prior to bidding and will be deemed to fully understand what they may be liable for if they are successful in purchasing. This should also include Stamp Duty, Land Registry fees and VAT which may become payable on completion in line with any property transaction, whether it is by auction or private treaty. If, as a buyer, you are in doubt you should seek advice from your own professional advisors. For more information on fees please go to
Comprising a One Stop convenience store and Post Office at ground floor level and a vacant 6/7 bedroom house on the ground and first floors, together with a maisonette sold on a long lease.
OneStop Convenience Store and Post Office
Retail area, storeroom, kitchen and W.C.
EPC Rating
D (84). Total Floor Area 150 sq.m.
Tenancy
Let on a Commercial Lease, from 1st September 2025 to and including 1st September 2044, at a current rental of £22,230 per annum with rent reviews in September 2029 and every five yearly thereafter. There are no breaks and at review the rent increases to the higher of open market value, or in line with RPI (Retail Price Index).
Post Office House - Vacant
Ground Floor
Entrance hall, dining room, living room and kitchen.
First Floor
Landing, six bedrooms, plus dressing room/seventh bedroom and bathroom with W.C.
Outside
Gardens to rear.
EPC Rating E
Council Tax Band D
Orchard Flat
Tenure
Sold on a 170-year lease from 1974 at a peppercorn ground rental.
Site Measurements
The site extends to 0.06 hectares (0.14 acres).
Freehold with Part Vacant Possession
Residential EPC: E
Commercial EPC: D
Important:
All lots are sold subject to the Common Auction Conditions and Special Conditions of Sale (unless varied by the Sellers Solicitors), together with the Addendum, which will be available on the Auction Day.
Price Information
*Guides are provided as an indication of each Seller's minimum expectation. They are not necessarily figures at which a property will sell for and may change at any time prior to Auction. Unless stated otherwise, each Lot will be offered subject to a reserve (a figure below which the Auctioneer cannot sell the Lot during the Auction). We expect the reserve will be set within the guide range or no more than 10% above a single figure guide. Please check our website regularly at , or contact us on[use Contact Agent Button], in order to stay fully informed with the up-to-date information.
*An Administration fee and Other non-optional fees may also be payable in addition to the bid price. All lots are offered subject to the Common Auction Conditions and Special Conditions of Sale or Revised Special Conditions of Sale (as applicable) and may include the repayment of search and other fees and or costs payable by the buyer. All buyers are advised to inspect all available legal documentation prior to bidding and will be deemed to fully understand what they may be liable for if they are successful in purchasing. This should also include Stamp Duty, Land Registry fees and VAT which may become payable on completion in line with any property transaction, whether it is by auction or private treaty. If, as a buyer, you are in doubt you should seek advice from your own professional advisors. For more information on fees please go to
About this agent

Clive Emson Land & Property Auctioneers - Maidstone
Rocky Hill, London Road
Maidstone, Kent
ME16 8PY
01622 279788Clive Emson Auctioneers was founded in 1989 to supply a high profile auctioneering facility to corporate and independent estate agents, private clients and statutory bodies. Our success is due to, and remains, attributable to a firm commitment to quality and service distinguished by both our Investors in People and ISO accreditations. The concept of the Company is to provide a specialist land and property auctioneering service and, therefore, does not compete with the traditional estate agency, mortgage broking, insurance or any other aspect of the property world. All properties upon which we are instructed are offered for sale in the auction catalogue. The 20-25,000 full colour catalogues produced for each of our auctions are available either by post or through a network of over 850 estate agency outlets throughout Southern England. Our marketing is supported by more estate agency offices than any other auctioneers practice. In addition lot details, catalogue downloads, viewings and legal documentation are available through this website.













