Popular
Total views: 2500+
5 bedroom detached house for sale
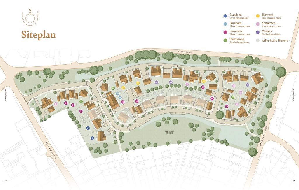
Plot 36 The Wolsey, Fitzroy Place, Blackmore, Essex, CM4
New build
Study
EV charger
Air Source Heat Pump
Energy efficient appliances
Solar panels
Detached house
5 beds
3 baths
Key information
Tenure: Freehold
Council tax: Ask agent
Features and description
- Exclusive 2,3,4 & 5 bedroom homes
- Traditional architecturally styled homes
- Picturesque village location
- Convenient access to local amenities & primary school
- Superior luxury specification
- Air Source Heat Pumps
- Underfloor heating to ground floor
- Solar panels & EV charging points
- Strong transport connections to London via road & rail
- 2 year Anderson after care 10 year NHBC Warranty
Video tours
Plot 36 The Wolsey is an outstanding five bedroom home at Fitzroy Place complete with triple cartlodge and south facing garden. This exceptional development is within the picturesque village of Blackmore and built to the very highest standard by Anderson, a local and multi-award-winning development business.
*Just 5 homes remaining*
The Wolsey is a superior family home, part of the Majestic Collection at Fitzroy Place boasting luxury specification, special finishing touches and energy efficient appliances.
The welcoming porch entrance allows private access to the dual aspect dedicated study before entering the hallway, which itself provides a convenient cloakroom on entry, handy storage cupboard and stair flight to the first floor landing. The substantial double aspect kitchen/dining room placed at the rear of the home, has fully integrated Siemens appliances, expansive bi-fold doors to the rear garden, flooding the room with light. A utility room leads from the kitchen and provides a washing machine and tumble dryer, as well as convenient side access door. Double doors lead into the sizeable double aspect living room with feature mantle and hearth as an impressive focal point. A private bay windowed family room sits to the front of the home and completes the stylish ground floor accommodation.
Upstairs, the principal bedroom enjoys its own en suite and double fitted wardrobes whilst bedroom two also benefits from en suite facilities. The third fourth and fifth bedrooms are all well-proportioned doubles and served by the four piece family bathroom boasting Laufen sanitaryware, Vado shower and full size mirror. Externally there is a triple cartlodge with useable space above, plus additional parking for up 3 cars.
The Majestic Collection specification offered (but not limited to) : A full array of Siemens integrated appliances and Silestone worktops, premium range tiling & accessories to bathrooms and ensuites, Amtico flooring plus carpets, underfloor heating to ground floor, Air Source Heat Pumps, solid internal doors, solar panels, EV car chargers, CCTV & burglar alarm provision, 2 year Anderson warranty & aftercare, 10 year NHBC build warranty.
Please refer to the brochure for full specification and room sizes. Some floorplans may be handed to those shown.
Anderson won the ‘Medium Housing Scheme’ award at the Essex Housebuilder Awards 2025 for the Fitzroy Place, Blackmore development.
Location
Fitzroy Place sits around a new and spacious village green in historic Blackmore village, known for its peaceful scenic surroundings and strong travel connections to nearby villages, towns and cities. Blackmore is a thriving community and is well served with amenities such as pubs, a local store, post office, tea room, village hall and sports/social club. This medieval village is steeped in history and has an abundance of character including a Grade I listed church and many meandering lanes and footpaths. It is has a designated Conservation Area and offers spectacular unspoilt views.
Directions
Use sat nav postcode CM4 0QS
Important Information
Council Tax Band - TBC
Services - We understand that mains water, drainage and electricity are connected to the property. Heating is via Air Source Heat Pump.
Solar panels are installed.
Tenure - Freehold
EPC rating - TBC
Management charge - There is an estate charge payable of £535.00 per annum for occupants on this development for maintenance of communal parts. The upkeep of the estate remains the responsibility of Anderson's site team until the development is complete at which time the Residents Management Company will be transferred to the those living at Fitzroy Place.
Agents note - Any CGI images are indicative only of the finished product. Choices are subject to build stage and availability. Brick colours may vary.
*Just 5 homes remaining*
The Wolsey is a superior family home, part of the Majestic Collection at Fitzroy Place boasting luxury specification, special finishing touches and energy efficient appliances.
The welcoming porch entrance allows private access to the dual aspect dedicated study before entering the hallway, which itself provides a convenient cloakroom on entry, handy storage cupboard and stair flight to the first floor landing. The substantial double aspect kitchen/dining room placed at the rear of the home, has fully integrated Siemens appliances, expansive bi-fold doors to the rear garden, flooding the room with light. A utility room leads from the kitchen and provides a washing machine and tumble dryer, as well as convenient side access door. Double doors lead into the sizeable double aspect living room with feature mantle and hearth as an impressive focal point. A private bay windowed family room sits to the front of the home and completes the stylish ground floor accommodation.
Upstairs, the principal bedroom enjoys its own en suite and double fitted wardrobes whilst bedroom two also benefits from en suite facilities. The third fourth and fifth bedrooms are all well-proportioned doubles and served by the four piece family bathroom boasting Laufen sanitaryware, Vado shower and full size mirror. Externally there is a triple cartlodge with useable space above, plus additional parking for up 3 cars.
The Majestic Collection specification offered (but not limited to) : A full array of Siemens integrated appliances and Silestone worktops, premium range tiling & accessories to bathrooms and ensuites, Amtico flooring plus carpets, underfloor heating to ground floor, Air Source Heat Pumps, solid internal doors, solar panels, EV car chargers, CCTV & burglar alarm provision, 2 year Anderson warranty & aftercare, 10 year NHBC build warranty.
Please refer to the brochure for full specification and room sizes. Some floorplans may be handed to those shown.
Anderson won the ‘Medium Housing Scheme’ award at the Essex Housebuilder Awards 2025 for the Fitzroy Place, Blackmore development.
Location
Fitzroy Place sits around a new and spacious village green in historic Blackmore village, known for its peaceful scenic surroundings and strong travel connections to nearby villages, towns and cities. Blackmore is a thriving community and is well served with amenities such as pubs, a local store, post office, tea room, village hall and sports/social club. This medieval village is steeped in history and has an abundance of character including a Grade I listed church and many meandering lanes and footpaths. It is has a designated Conservation Area and offers spectacular unspoilt views.
Directions
Use sat nav postcode CM4 0QS
Important Information
Council Tax Band - TBC
Services - We understand that mains water, drainage and electricity are connected to the property. Heating is via Air Source Heat Pump.
Solar panels are installed.
Tenure - Freehold
EPC rating - TBC
Management charge - There is an estate charge payable of £535.00 per annum for occupants on this development for maintenance of communal parts. The upkeep of the estate remains the responsibility of Anderson's site team until the development is complete at which time the Residents Management Company will be transferred to the those living at Fitzroy Place.
Agents note - Any CGI images are indicative only of the finished product. Choices are subject to build stage and availability. Brick colours may vary.
Property information from this agent
About this agent

Estate Agents, Letting Agents and Commercial Agency This branch - the most southerly of our eleven locations in Essex and Suffolk - is headed up by Scott Cracknell, Associate Partner at Fenn Wright. Scott's team in Duke Street, Chelmsford are experts at selling homes in Chelmsford and all nearby villages. Our lettings department look after hundreds of properties for both local and national landlords. A specialist team at this branch handles the sale of new homes on local developments. Our Signature team are dedicated to finding buyers for the most desirable town houses, country homes and properties with character for sale in Chelmsford, the surrounding villages and in rural Essex. Why not pop in for a chat about your next move? You'll find us at 20 Duke Street, just a short walk away from the Cathedral, on the road to the station.











Floorplans (