Popular
Total views: 2500+
3 bedroom barn conversion for sale
Belbroughton, Stourbridge, Worcestershire
Air source heat pump
Barn conversion
3 beds
1 bath
1663
EPC rating: F
Key information
Tenure: Freehold
Council tax: Band F
Broadband: Super-fast 49Mbps *
Mobile signal:
EEO2ThreeVodafone
Features and description
- Character property
- Sitting room with contemporary log burner
- Kitchen with part glazed door to rear terrace
- Ground floor cloakroom
- 3 double bedrooms
- Family bathroom
- Pretty part walled garden
- Gravelled driveway
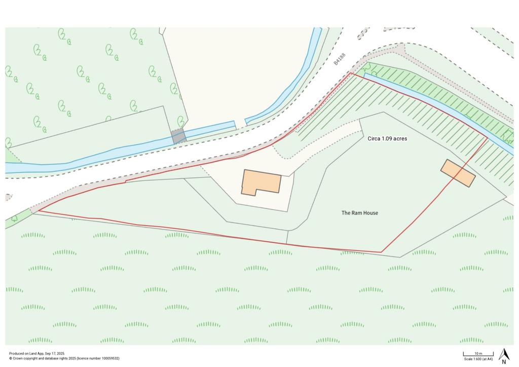
- Paddock, in all approx. 1.09 Acres
- Timber stable block comprising of three stables
A delightful three bedroom detached character property, set in around 1.09 acres of land with stables, offering the perfect blend of rural charm and convenient location.
Ground floor
• The ground floor is open plan and full of character features including wall and ceiling timbers, solid oak latch doors, exposed brick walls and natural slate and solid oak flooring with underfloor heating.
• The kitchen is thoughtfully designed featuring cream cabinetry with wooden worktop over and tiled splashbacks, Belfast sink, integrated dishwasher and Rangemaster cooker with extractor over. There is space for an American style fridge freezer and space and plumbing for a washing machine and tumble dryer. A part glazed oak stable door leads out to the rear terrace.
• The sitting room is a bright and welcoming space, featuring beautiful solid oak flooring and a contemporary wood burner as its focal point. A Velux window set into the pitched roof, together with a stable door opening onto the rear terrace, create a charming blend of character and practicality. To the front, a traditional window adds balance, while a striking wall of full-height glazing frames views of the garden and floods the room with natural light, bringing the outdoors in.
• Ground floor cloakroom.
• Solid oak staircase with under stairs storage.
First floor
• Spacious landing with oak beams and Velux light.
• The property offers three generous double bedrooms, each beautifully light-filled thanks to a combination of Velux roof windows and traditional casement windows. Pitched ceilings enhance the sense of space while adding character and charm, creating inviting rooms that are both stylish and comfortable.
• The stylish family bathroom is part-tiled and features a generous shower cubicle with a modern rainhead fitting, a freestanding bath, WC, and a basin set on a vanity unit. Additional storage is provided by a tall vanity cupboard, while a contemporary illuminated mirror and wood-effect tiled flooring complete the space.
Gardens and grounds
• A picturesque garden set into the hillside.
• A large slate terrace, perfect for alfresco dining and entertaining.
• Well-stocked flower beds bordered by oak sleepers and iron railings.
• A wooden gate and pergola arch lead to the side of the property where there is an additional paved terrace and a lawned area, attractively enclosed by a curved brick wall to one side and bank of railway sleepers to the other.
• A gravelled driveway offers ample parking for several vehicles.
• A paddock with a timber stable block, comprising three stables, ideal for equestrian use.
• In all the plot extends to circa 1.09 acres.
Situation
Nestled in the picturesque and highly sought-after village of Belbroughton, The Ram House enjoys a prime semi-rural position that offers the perfect balance between countryside charm and everyday convenience. Surrounded by rolling Worcestershire countryside, this characterful home is ideally situated for those seeking a tranquil lifestyle, while still benefiting from excellent local amenities and strong transport links.
Belbroughton itself is a quintessential English village, known for its vibrant community, traditional pubs, independent shops, and excellent schooling options — all within easy reach. The nearby towns of Bromsgrove, Stourbridge, and Hagley provide a wider range of facilities, with Birmingham city centre accessible in under 30 minutes by road or rail, making it ideal for commuters.
Whether you're enjoying the peace of the surrounding green spaces or connecting easily to the region's key destinations, The Ram House offers an enviable location that combines rural beauty with practical accessibility.
Fixtures and fittings
All fixtures, fittings and furniture such as curtains, light fittings, garden ornaments and statuary are excluded from the sale. Some may be available by separate negotiation.
Services
Air source heat pump. Mains water. Water treatment plant. Underfloor heating throughout. None of the services or appliances, heating installations, plumbing or electrical systems have been tested by the selling agents.
If the private drainage system requires updating/replacement, it is assumed that prior to offers being made, associated costs have been considered and are the responsibility of the purchaser. Interested parties are advised to make their own investigations, no further information will be provided by the selling agents.
The estimated fastest download speed currently achievable for the property postcode area is around 49 Mbps (data taken from checker.ofcom.org.uk on 15/09/2025). Actual service availability at the property or speeds received may be different.
We understand that the property is likely to have current mobile coverage (data taken from checker.ofcom.org.uk on 15/09/2025). Please note that actual services available may be different depending on the particular circumstances, precise location and network outages.
Tenure
The property is to be sold freehold with vacant possession.
Method of sale
The property is offered for sale by Private Treaty method. However the vendor reserves the right to conclude the sale by an alternative method if required.
Local Authority
Bromsgrove District Council
Council Tax Band F
Public rights of way, wayleaves and easements
The property is sold subject to all rights of way, wayleaves and easements whether or not they are defined in this brochure.
Planning
The selling agents will not provide advice/guidance on the planning history for the property/land. Interested parties are advised to make their own investigations. It is assumed that enquiries have been satisfied, prior to an offer being made.
Anti Money Laundering Regulations (AML)
In accordance with Anti Money Laundering Regulations (AML), we are required to request forms of identification and carry out due diligence on any parties connected to a successful offer. Should an offer be made on behalf of a business/company, AML due diligence will also be necessary. Proof/source of funding must be supplied, prior to offer acceptance.
Plans and boundaries
The plans within these particulars are based on Ordnance Survey data and provided for reference only. They are believed to be correct but accuracy is not guaranteed. The purchaser shall be deemed to have full knowledge of all boundaries and the extent of ownership. Neither the vendor nor the vendor’s agents will be responsible for defining the boundaries or the ownership thereof.
Viewings
Strictly by appointment through Fisher German LLP.
Directions
Postcode – DY9 9TN
what3words – ///nests.oils.lions
Ground floor
• The ground floor is open plan and full of character features including wall and ceiling timbers, solid oak latch doors, exposed brick walls and natural slate and solid oak flooring with underfloor heating.
• The kitchen is thoughtfully designed featuring cream cabinetry with wooden worktop over and tiled splashbacks, Belfast sink, integrated dishwasher and Rangemaster cooker with extractor over. There is space for an American style fridge freezer and space and plumbing for a washing machine and tumble dryer. A part glazed oak stable door leads out to the rear terrace.
• The sitting room is a bright and welcoming space, featuring beautiful solid oak flooring and a contemporary wood burner as its focal point. A Velux window set into the pitched roof, together with a stable door opening onto the rear terrace, create a charming blend of character and practicality. To the front, a traditional window adds balance, while a striking wall of full-height glazing frames views of the garden and floods the room with natural light, bringing the outdoors in.
• Ground floor cloakroom.
• Solid oak staircase with under stairs storage.
First floor
• Spacious landing with oak beams and Velux light.
• The property offers three generous double bedrooms, each beautifully light-filled thanks to a combination of Velux roof windows and traditional casement windows. Pitched ceilings enhance the sense of space while adding character and charm, creating inviting rooms that are both stylish and comfortable.
• The stylish family bathroom is part-tiled and features a generous shower cubicle with a modern rainhead fitting, a freestanding bath, WC, and a basin set on a vanity unit. Additional storage is provided by a tall vanity cupboard, while a contemporary illuminated mirror and wood-effect tiled flooring complete the space.
Gardens and grounds
• A picturesque garden set into the hillside.
• A large slate terrace, perfect for alfresco dining and entertaining.
• Well-stocked flower beds bordered by oak sleepers and iron railings.
• A wooden gate and pergola arch lead to the side of the property where there is an additional paved terrace and a lawned area, attractively enclosed by a curved brick wall to one side and bank of railway sleepers to the other.
• A gravelled driveway offers ample parking for several vehicles.
• A paddock with a timber stable block, comprising three stables, ideal for equestrian use.
• In all the plot extends to circa 1.09 acres.
Situation
Nestled in the picturesque and highly sought-after village of Belbroughton, The Ram House enjoys a prime semi-rural position that offers the perfect balance between countryside charm and everyday convenience. Surrounded by rolling Worcestershire countryside, this characterful home is ideally situated for those seeking a tranquil lifestyle, while still benefiting from excellent local amenities and strong transport links.
Belbroughton itself is a quintessential English village, known for its vibrant community, traditional pubs, independent shops, and excellent schooling options — all within easy reach. The nearby towns of Bromsgrove, Stourbridge, and Hagley provide a wider range of facilities, with Birmingham city centre accessible in under 30 minutes by road or rail, making it ideal for commuters.
Whether you're enjoying the peace of the surrounding green spaces or connecting easily to the region's key destinations, The Ram House offers an enviable location that combines rural beauty with practical accessibility.
Fixtures and fittings
All fixtures, fittings and furniture such as curtains, light fittings, garden ornaments and statuary are excluded from the sale. Some may be available by separate negotiation.
Services
Air source heat pump. Mains water. Water treatment plant. Underfloor heating throughout. None of the services or appliances, heating installations, plumbing or electrical systems have been tested by the selling agents.
If the private drainage system requires updating/replacement, it is assumed that prior to offers being made, associated costs have been considered and are the responsibility of the purchaser. Interested parties are advised to make their own investigations, no further information will be provided by the selling agents.
The estimated fastest download speed currently achievable for the property postcode area is around 49 Mbps (data taken from checker.ofcom.org.uk on 15/09/2025). Actual service availability at the property or speeds received may be different.
We understand that the property is likely to have current mobile coverage (data taken from checker.ofcom.org.uk on 15/09/2025). Please note that actual services available may be different depending on the particular circumstances, precise location and network outages.
Tenure
The property is to be sold freehold with vacant possession.
Method of sale
The property is offered for sale by Private Treaty method. However the vendor reserves the right to conclude the sale by an alternative method if required.
Local Authority
Bromsgrove District Council
Council Tax Band F
Public rights of way, wayleaves and easements
The property is sold subject to all rights of way, wayleaves and easements whether or not they are defined in this brochure.
Planning
The selling agents will not provide advice/guidance on the planning history for the property/land. Interested parties are advised to make their own investigations. It is assumed that enquiries have been satisfied, prior to an offer being made.
Anti Money Laundering Regulations (AML)
In accordance with Anti Money Laundering Regulations (AML), we are required to request forms of identification and carry out due diligence on any parties connected to a successful offer. Should an offer be made on behalf of a business/company, AML due diligence will also be necessary. Proof/source of funding must be supplied, prior to offer acceptance.
Plans and boundaries
The plans within these particulars are based on Ordnance Survey data and provided for reference only. They are believed to be correct but accuracy is not guaranteed. The purchaser shall be deemed to have full knowledge of all boundaries and the extent of ownership. Neither the vendor nor the vendor’s agents will be responsible for defining the boundaries or the ownership thereof.
Viewings
Strictly by appointment through Fisher German LLP.
Directions
Postcode – DY9 9TN
what3words – ///nests.oils.lions
Property information from this agent
About this agent

Fisher German is a dynamic, multi-disciplined firm of chartered surveyors and estate agents, offering an extensive range of services to buyers and sellers of property across much of England and Wales. The firm has been offering professional services in all aspects of land and property for over 180 years. We know that achieving a good sale is about creating and delivering a carefully considered strategy using a skilful blend of marketing to communicate with the target audience. Our campaigns include telephone contact, creative advertising and PR, postal mailings, extensive website listings and social media promotions. We leave no avenue for promotion unexplored, and our clients find this combination of initiatives incredibly effective. As well as matching buyers to properties and agreeing a sale, we work tirelessly to ensure that the sale continues through to completion. This is particularly important when market conditions may be more complex than usual. We understand exactly what it takes to ensure that a sale completes and our fall-through rate is exceptionally low. Above all, we pride ourselves on our impeccable service. Contact us to see what we can do for you.


















Floorplan