3 bedroom detached house for sale
Key information
Features and description
- Superbly presented period farmhouse
- 3 bedrooms main residence
- 2 bedroom single storey unrestricted dwelling
- 1 bedroom unrestricted dweeling
- Woodland
- Camping and caravan club certifide site with 12 pitches
- Approximately 3.11 acres in total
- Financial information available upon request
- Great potential to further increase income
The Farmhouse - Approached via a long, tree-lined private driveway, the principal farmhouse sits in an attractive courtyard with traditional barns, workshops, and ample parking. This fine stone residence provides versatile and spacious accommodation, blending character features with modern comforts.
The reception rooms include a welcoming sitting room with stone fireplace and wood burner, a dining room with inglenook fireplace and antique range cooker, and a further vaulted reception room with bespoke shelving and bi-fold doors opening onto the garden terrace. The farmhouse kitchen is fitted with a range of units topped with granite work surfaces, an integrated oven and hob, a central island, and a Rayburn, with direct access to a utility room, Belfast sink, rear porch, and shower room with WC.
Upstairs are three double bedrooms, including a principal bedroom with shower, alongside a family bathroom.
Complementing the main house is a detached single-storey office suite with kitchenette and shower room, as well as a superb detached games room with wood burner and bar. This versatile space could lend itself to additional accommodation, a studio, home office, or annexe (subject to any necessary consents).
The farmhouse is further enhanced by beautifully landscaped gardens, including a stone-paved terrace perfect for al fresco dining and entertaining. Beyond lies a productive vegetable garden with raised beds, a polytunnel, and log store, leading onto sweeping lawns, a sunken swimming pool, and a summer house enjoying far-reaching countryside views.
LANE END LINNEY
Nestled within a private courtyard, the Linney offers stylish single-storey living with two en suite bedrooms, two reception rooms, a utility room, and a modern fitted kitchen.
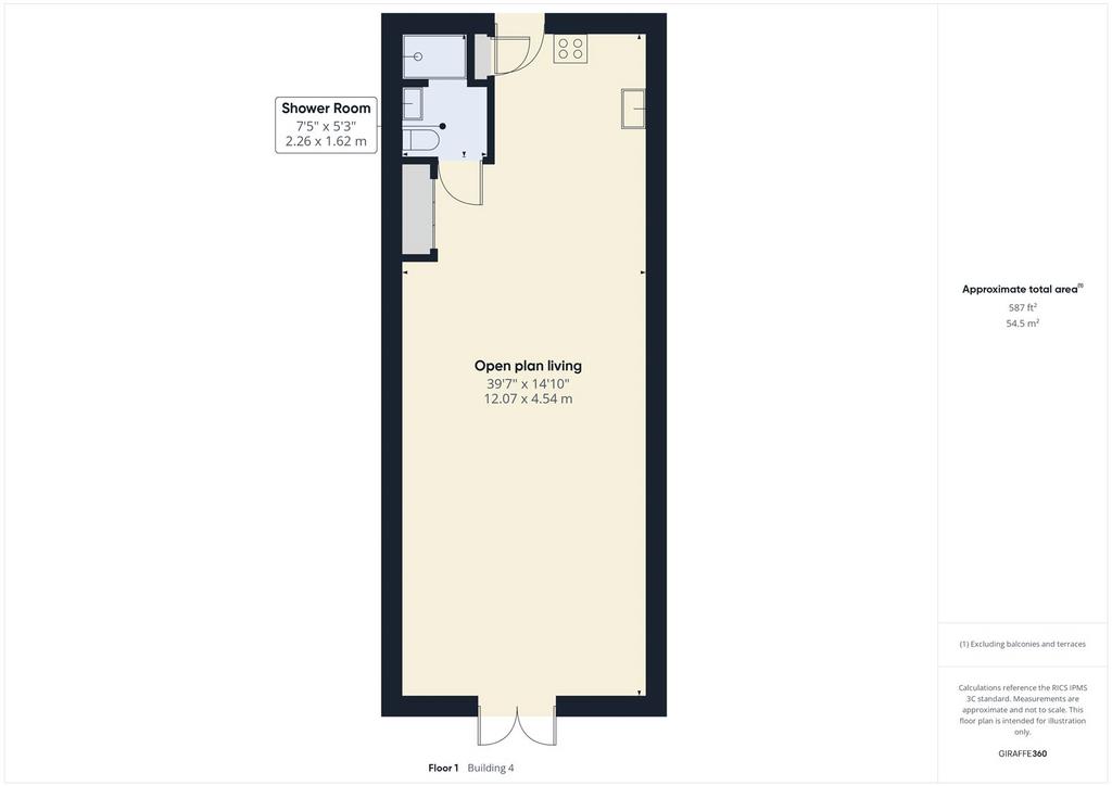
LANE END LOFT
A delightful studio loft apartment providing open-plan living with fitted kitchen and shower room.
THE CAMPSITE
Discreetly positioned with its own access, the well-established campsite is certified by the Caravan Club and provides up to 12 pitches set within landscaped grounds. The site features gravel pathways, picnic areas, woodland walks, and two ponds, creating a tranquil retreat and haven for wildlife.
GLAMPING PODS
Adding to the income potential are two bespoke glamping pods, each thoughtfully designed to offer dedicated areas for sleeping, dining, and cooking. These are complemented by shared washrooms, toilets, and dishwashing facilities nearby.
LIFESTYLE OPPORTUNITY
Lane End is more than just a home—it is a complete lifestyle package, combining beautifully appointed residences with excellent income-generating potential from the cottages and established campsite, making it ideal for those seeking a rewarding business venture in the heart of the countryside.
Located nearby Powlers Piece with its country crossroads from where there is excellent access to the locality. The major village of Bradworthy is some 4 miles and caters incredibly well for the locality with a truly outstanding range of village amenities, shops and highly acclaimed academy primary school. The picturesque port of Bideford is some 10 miles and 20 miles away is the regional centre of Barnstaple from where the North Devon link road provides good access to the M5 at Tiverton. Literally within a few minutes’ walk of the property there are large areas of forestry commission woodland whilst wrapping around the southern side there is an area of totally unspoilt common ground which is actually called "Common Moor".
Directions
From the centre of Holsworthy proceed on the Bude road and on the edge of town opposite the BP garage turn right signed Bradworthy. After 7 miles upon reaching Bradworthy turn right signed Bideford. Follow this road for 3 1/2 miles and Land End Farm will be found on the right hand side with a name plaque clearly displayed.
Rooms
Services
Oil fired central heating. Private drainage and water
According to Ofcom, Standard broadband is available at the property and mobile signal is likely with EE, Vodaphone, O2 and Three. For further information please see the Ofcom website.
Agents Notes
Before any sale is formally agreed, we have a legal obligation under the Money Laundering regulations and Terrorist Financing Act 2017 to obtain proof of your identity and of your address, take copies and retain on file for five years and will only be used for this purpose. We carry out this through a secure platform to protect your data. Each purchaser will be required to pay £20 upon an offer verbally being agreed to carry out these checks prior to the property being advertised as sale agreed.
Property information from this agent
About this agent
































Floorplans (