Popular
Total views: 2500+
7 bedroom property for sale
RARE INVESTMENT FREEHOLD | CORNER SITE | ILFORD LANE | IG1
Property
7 beds
5 baths
6064
EPC rating: D
Key information
Features and description
- 2 x Adjoining Freeholds
- Mixed Use
- Over £245,000 annual income
- Corner Plot
- Legal Contracts and Agreements In Place
- Businesses Unaffefcec
Very RARE opportunity to acquire 2 adjoining FREEHOLD MIXED USE units on Ilford Lane, generating in excess of £245,000 annual income from both the commercial and residential aspect.
The buildings are set over 3 levels (Basement, Ground and First Floor). They are fully occupied with all legal agreements in place.
Current businesses will be unaffected with the sale, however there is further potential to increase the property size and layout subject to the relevant planning permissions.
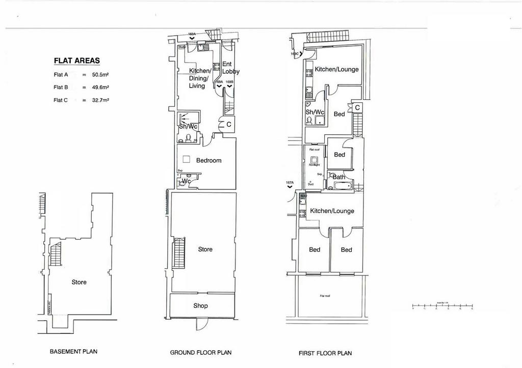
The 6064 sq ft CORNER plot site is currently set out as :-
6 x commercial units
5 x residential units (3 x 1 Bed/2 x 2 Bed)
Floorplans attached, further photos to follow.
Viewings are strictly by appointment only by Hawks Estate Agents
Contact the office on[use Contact Agent Button] and ask for Miss Cristina Broasca to discuss further and the full breakdown of the income stream.
The buildings are set over 3 levels (Basement, Ground and First Floor). They are fully occupied with all legal agreements in place.
Current businesses will be unaffected with the sale, however there is further potential to increase the property size and layout subject to the relevant planning permissions.
The 6064 sq ft CORNER plot site is currently set out as :-
6 x commercial units
5 x residential units (3 x 1 Bed/2 x 2 Bed)
Floorplans attached, further photos to follow.
Viewings are strictly by appointment only by Hawks Estate Agents
Contact the office on[use Contact Agent Button] and ask for Miss Cristina Broasca to discuss further and the full breakdown of the income stream.
Property information from this agent
Area statistics
Crime score
High crime
10/10
About this agent

W E B E L I E V E I N F R E E D O M The freedom to meet our clients needs in the way that works best for them. To work flexibly, efficiently and to respond quickly, without being bogged down by systems that don’t help. The freedom to build relationships, so that working together is pleasurable as well as profitable. To support each other and work as a team to provide brilliant, personalised service – and have fun doing it. And above all, freedom for the people who put their faith in us; to move forward with their lives, and pursue their dreams and ambitions. We’re Hawks, and this is freedom to move...






Floorplans (
Area stats