Popular
Total views: 2500+
3 bedroom semi-detached house for sale
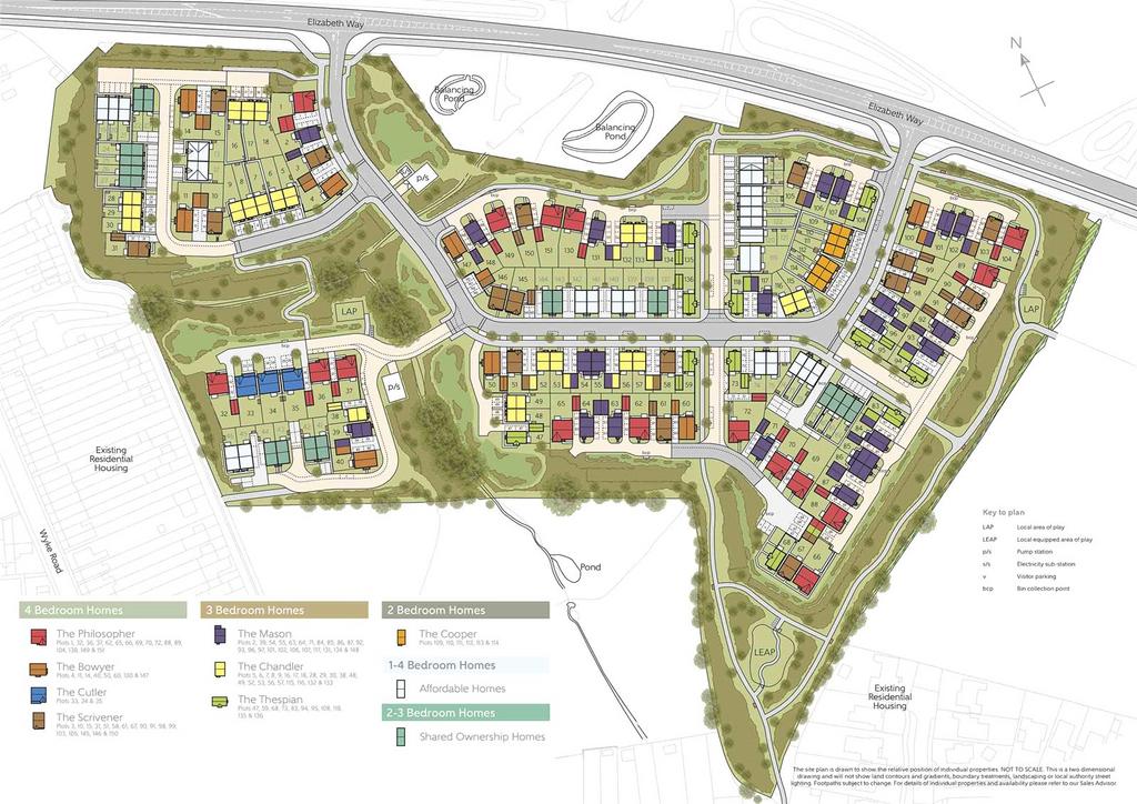
Plot 85, Weavers Meadow, Trowbridge
New build
EV charger
Solar panels
Semi-detached house
3 beds
2 baths
1043
Key information
Features and description
- Semi detached new build home
- Three bedrooms with master ensuite
- Stunning open plan living space
- Downstairs cloakroom
- Solar panels
- Garage, driveway parking & ev charger
- Highly respected 5* rated developer
- 10 year nhbc buildmark policy
This fantastic semi-detached house enjoys a stunning open plan living space as well as a separate lounge. Solar panels, EV charger and Google Nest provide modern convenience whilst driveway parking leads to a garage. If you want a spotless home from a 5* rated builder, look no further.
Stepping into the property you find an entrance hall with stairs to the first floor as well as doors to the living room, kitchen/dining/family room and downstairs cloakroom. The living room is a great spot to relax and unwind whilst the superb kitchen/dining/family room is an excellent entertaining space that will be the envy of your guests. There is a great amount of fitted units with work surface over whilst French doors lead to the garden and a further door takes you to the utility room. Well stocked for storage, this amazing part of the house has two large cupboards to hide life’s necessary equipment.
Moving upstairs, the landing has yet another built in cupboard as well as doors to all three bedrooms and the bathroom. Bedrooms one and two are both good double rooms with the main bedroom featuring an ensuite shower room. Bedroom three is a generous single room whilst the bathroom has a bath, WC and wash basin.
Externally the property has driveway parking with EV charger, leading to the garage. There is also a garden with gated side access. Please note, all marketing materials of The Mason are of Plot 2 (Show home) and should be used for reference only. This particular property is semi-detached. Specific details and orientation may vary from plot to plot. We understand that as is common with modern estates, there is an estate management charge which is expected to be £254 per year. Council tax bands are yet to be confirmed.
Weavers Meadow is a superb development by the highly regarded and award winning Bellway Homes. Built with efficiency in mind, each property features solar panels, EV chargers and Google Nest as well as predicted A rating for EPC's. If you are looking to purchase a home you can move straight in to, this development is a wonderful chance to do just that. With a variety of options to choose from (depending on build stage), your new home can be customised to your taste. There are various incentives available depending on circumstances, including part exchange to ease the pressure when selling to buy here.
Stepping into the property you find an entrance hall with stairs to the first floor as well as doors to the living room, kitchen/dining/family room and downstairs cloakroom. The living room is a great spot to relax and unwind whilst the superb kitchen/dining/family room is an excellent entertaining space that will be the envy of your guests. There is a great amount of fitted units with work surface over whilst French doors lead to the garden and a further door takes you to the utility room. Well stocked for storage, this amazing part of the house has two large cupboards to hide life’s necessary equipment.
Moving upstairs, the landing has yet another built in cupboard as well as doors to all three bedrooms and the bathroom. Bedrooms one and two are both good double rooms with the main bedroom featuring an ensuite shower room. Bedroom three is a generous single room whilst the bathroom has a bath, WC and wash basin.
Externally the property has driveway parking with EV charger, leading to the garage. There is also a garden with gated side access. Please note, all marketing materials of The Mason are of Plot 2 (Show home) and should be used for reference only. This particular property is semi-detached. Specific details and orientation may vary from plot to plot. We understand that as is common with modern estates, there is an estate management charge which is expected to be £254 per year. Council tax bands are yet to be confirmed.
Weavers Meadow is a superb development by the highly regarded and award winning Bellway Homes. Built with efficiency in mind, each property features solar panels, EV chargers and Google Nest as well as predicted A rating for EPC's. If you are looking to purchase a home you can move straight in to, this development is a wonderful chance to do just that. With a variety of options to choose from (depending on build stage), your new home can be customised to your taste. There are various incentives available depending on circumstances, including part exchange to ease the pressure when selling to buy here.
About this agent

Established in 1990 the Trowbridge office is the town's longest established independent Estate Agent, situated in the most prominent location with large window frontage displaying the extensive range of properties for sale. One of the largest and longest established award winning independent estate agents in the area, Davies & Davies offer a complete and personal service, benefiting from the professionalism, experience and commitment of a team who are dedicated to selling your home for the best possible price and in the shortest possible time. A market leader for the sale and valuation of residential property in and around Trowbridge, we enjoy an enviable reputation for integrity and professionalism. With attractive showroom displays, quality marketing material, extensive advertising and dedicated websites ensure that client’s interests are promoted to maximum effect.
Similar properties
Discover similar properties nearby in a single step.



















Floorplan
