Popular
Total views: 2500+
4 bedroom detached house for sale
Hillsborough Park Road, Ilfracombe, Devon, EX34
Featured
Detached house
4 beds
2 baths
Key information
Tenure: Freehold
Council tax: Ask agent
Broadband: Super-fast 57Mbps *
Mobile signal:
EEO2ThreeVodafone
Features and description
- Large living room
- Sunlit dining room
- Well-appointed kitchen/diner with access to decked terrace
- Tiled entrance hall
- Downstairs WC
- Extensive sloping rear garden with gardening potential
- Decked sun terrace and lower patio for outdoor seating
- Large store room under the property (ideal for bikes, tools, etc.)
- Full planning permission for a modern detached dwelling in the rear garden
- EPC: C
Video tours
DEVELOPMENT OPPORTUNITY WITH SUPERB VIEWS!
Spacious Family Home with Stunning Views & Full Planning Permission for a Second Dwelling
Tucked away in a peaceful and elevated position on the periphery of Ilfracombe, 10 Hillsborough Park Road presents a rare opportunity to acquire a spacious four-bedroom end-terrace home with exceptional potential.
Set in a quiet residential area, this well-maintained property boasts superb rear-facing views and offers generously proportioned, well-balanced accommodation ideally suited to family living.
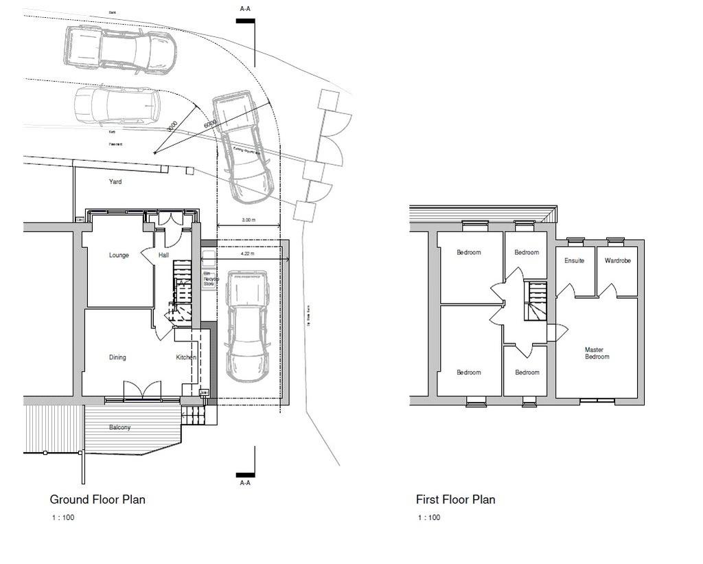
The ground floor features a bright and welcoming tiled entrance hall, a large living room, and a beautifully lit dining room flooded with natural light. The well-appointed kitchen/diner provides access to the rear decked terrace — a perfect spot for outdoor dining. Additional ground floor features include a WC and a versatile garage space currently being used as a utility room.
Upstairs, the spacious landing leads to three double bedrooms and one single bedroom. The principal bedroom benefits from a modern en-suite shower room and a walk-in wardrobe. A stylish family bathroom serves the remaining bedrooms. The home is equipped with gas central heating and uPVC double glazing throughout.
To the rear, the extensive sloping garden descends toward Hillside Road and offers outstanding gardening potential. A decked sun terrace and a lower patio area provide multiple outdoor seating options. Beneath the property, a large store room offers excellent space for bikes, tools, and garden equipment.
Development Opportunity
A standout feature of this property is the full planning permission granted for the construction of a highly individual, modern detached dwelling within the rear garden. Designed to blend seamlessly into the hillside, the proposed new home will enjoy the same stunning views and include vehicle access via a reconfiguration of the existing property’s ground floor — specifically the removal of the current kitchen, WC, and garage/utility space.
This is an exceptional opportunity for developers or buyers seeking multi-generational living options, a secondary income through holiday letting, or the chance to create a bespoke modern home alongside a traditional one.
Full planning permission:
In summary, 10 Hillsborough Park Road offers a rare blend of comfort, space, privacy, and development potential in one of Ilfracombe’s most desirable and peaceful locations.
Applicants are advised to proceed from our offices in an easterly direction along the High Street, following the road onto Portland Street. Continue up the hill passing Lantern Court (McCarthy & Stone) and proceed through the traffic lights. Continue along the road passing the Thatched Inn and shortly after entrance to the local swimming pool turn left into Hillsborough Park Road. Follow the road around to the left and the property is situated down at the far end, being the last property on the right hand side.
Spacious Family Home with Stunning Views & Full Planning Permission for a Second Dwelling
Tucked away in a peaceful and elevated position on the periphery of Ilfracombe, 10 Hillsborough Park Road presents a rare opportunity to acquire a spacious four-bedroom end-terrace home with exceptional potential.
Set in a quiet residential area, this well-maintained property boasts superb rear-facing views and offers generously proportioned, well-balanced accommodation ideally suited to family living.
The ground floor features a bright and welcoming tiled entrance hall, a large living room, and a beautifully lit dining room flooded with natural light. The well-appointed kitchen/diner provides access to the rear decked terrace — a perfect spot for outdoor dining. Additional ground floor features include a WC and a versatile garage space currently being used as a utility room.
Upstairs, the spacious landing leads to three double bedrooms and one single bedroom. The principal bedroom benefits from a modern en-suite shower room and a walk-in wardrobe. A stylish family bathroom serves the remaining bedrooms. The home is equipped with gas central heating and uPVC double glazing throughout.
To the rear, the extensive sloping garden descends toward Hillside Road and offers outstanding gardening potential. A decked sun terrace and a lower patio area provide multiple outdoor seating options. Beneath the property, a large store room offers excellent space for bikes, tools, and garden equipment.
Development Opportunity
A standout feature of this property is the full planning permission granted for the construction of a highly individual, modern detached dwelling within the rear garden. Designed to blend seamlessly into the hillside, the proposed new home will enjoy the same stunning views and include vehicle access via a reconfiguration of the existing property’s ground floor — specifically the removal of the current kitchen, WC, and garage/utility space.
This is an exceptional opportunity for developers or buyers seeking multi-generational living options, a secondary income through holiday letting, or the chance to create a bespoke modern home alongside a traditional one.
Full planning permission:
In summary, 10 Hillsborough Park Road offers a rare blend of comfort, space, privacy, and development potential in one of Ilfracombe’s most desirable and peaceful locations.
Applicants are advised to proceed from our offices in an easterly direction along the High Street, following the road onto Portland Street. Continue up the hill passing Lantern Court (McCarthy & Stone) and proceed through the traffic lights. Continue along the road passing the Thatched Inn and shortly after entrance to the local swimming pool turn left into Hillsborough Park Road. Follow the road around to the left and the property is situated down at the far end, being the last property on the right hand side.
Rooms
Ground Floor
Porch
Entrance Hall
Living Room 3.96m x 3.38m
Dining Room 5.33m x 4.06m
Kichen 4.45m x 3.86m
WC
Lobby
Garage/Utility
First Floor
Landing
Bedrom 1 4.55m x 3.7m
Shower Room Ensuite
Walk in wardrobe
Bedroom 2 4m x 2.84m
Bedroom 3 3.68m x 2.82m
Bedroom 4 2.64m x 2.06m
Bathroom 2.36m x 2.06m
Property information from this agent
About this agent

Established in 1924, Webbers estate agents are a national award-winning, independent estate agency, voted in the Top 3 estate agents in the UK for customer service in 2014. We have 16 West Country offices for residential sales & lettings in North Devon, West Somerset, Exmoor and Cornwall. Our exclusive Fine & Country marketing enables us to put our property in Park Lane, right in the heart of London, offering fabulous market exposure. In addition, with specialist departments for Commercial Property, Survey & Professional and New Homes, we deliver a comprehensive property service, with an enviable reputation as professionals in property. Ilfracombe is a bustling seaside town with curious coastal charm located on the rugged North Devon coastline. The town boasts a population of around 12,500 inhabitants and has predominantly Victorian and Edwardian architecture although there are a lot more post-war and modern properties towards the edge of the town. Facilities within the area include a variety of small shops with larger supermarkets including Tesco, Co-op and Lidl along with a good selection of restaurants and bars. There are infant, primary and secondary schools, the 'Landmark' theatre and cinema and a picturesque seafront with its working harbour and various beaches including the famous hand-carved 'Tunnels' beach.
Similar properties
Discover similar properties nearby in a single step.






















Floorplan
