Popular
Total views: 2500+
Guide price
£1,275,0005 bedroom equestrian property for sale
Great Lyth, Bayston Hill, Shrewsbury, Shropshire, SY3
Featured
Equestrian property
5 beds
2937
EPC rating: F
Key information
Tenure: Freehold
Council tax: Band G
Broadband: Basic 17Mbps *
Mobile signal:
EEO2ThreeVodafone
Features and description
- An exceptional family home located in a beautiful part of Shropshire with far reaching views.
- A separate enclosed stable yard with post and rail fenced paddocks, making it ideal for equestrian use.
- The Curlews is situated approximately one mile from Lyth Hill with a number of bridlepaths and footpaths accessed from the house.
- Shrewsbury and its train station are about 5.8 miles away and the A5, with access to the south and west, about 5 miles away.
- The Curlews is a fabulous property for those wanting a lifestyle with landscaped gardens and a separate allotment.
- There is lapsed planning permission on part of the land for an annexe.
- EPC Rating = F
This is an extremely special home, situated in a beautiful part of Shropshire, enjoying expansive views, privacy, stabling and about just under 7 acres in all.
Description
The Curlews is an exceptional family home situated in a beautiful private location with far-reaching, uninterrupted views across the South Shropshire hills. The property was built in 1953 and was extended some years later. The current owners have resided here for almost 30 years. This spacious family home offers generous, flowing accommodation in a wonderfully peaceful and tranquil setting. Notable features include striking solid oak arched doorways and window frames, complemented by bespoke fitted oak wardrobes, display cabinets and decorative arched windows crafted by a local Shrewsbury company.
The Curlews offers two front entrances with the current owners preferring to use the entrance that leads directly into the hall and kitchen for daily use. The hall has a utility room to the left-hand side which has fitted units and space for white goods.
The family kitchen is straight ahead with the formal dining room to the right. The kitchen window, overlooking the spectacular uninterrupted views of the fields and hills beyond the garden, is fitted with shaker style wall and base units. There is an electric Rangemaster oven with hob, integrated Bosch dishwasher and larder fridge together with granite worktops with partial splash back and a central island/breakfast bar. From here there is a door leading outside to the terrace and gardens. The kitchen provides access into an office with a further door leading into a boot room, separate WC, the central heating boiler and a further door leading outside to the gardens.
The formal dining room offers plenty of space for family gatherings and overlooks the front garden. A door out of the dining room leads into the formal hall where there is access to the main front door and a cloak room with a further separate WC. An oak French polished display cabinet is a particular feature of the main hall which leads into a sitting room with a York Minster stone open fireplace with decorative arched windows either side. This room also offers views of the gardens, fields and hills.
A comfortable living room features an open fire with a decorative surround and overlooks the rear gardens. French doors provide direct access to the terrace, with a further door leading to the kitchen.
Stairs rise from the main entrance hall onto the first floor which has a full height arched window and a gallery landing. All the bedrooms are situated at the rear of the property to maximize the spectacular views. To the left of the landing is bedroom 4 which is a spacious double room with a separate WC and separate room with a shower cubicle.
Bedroom 3 is a double room again overlooking the fabulous views. There is a separate family bathroom with a bath and shower over. Bedroom 5 is the smallest of the rooms but is still a double room. Bedroom 2 is a spacious double room and there is an airing cupboard situated on the landing.
The principal bedroom has impressive built-in oak wardrobes designed and crafted by a local Shrewsbury company and decorative arched windows.
The en-suite bathroom includes a corner bath and separate walk-in shower. Again, the wonderful views can be seen from this room.
Outside
The Curlews is approached through stone walls on either side of the tarmac driveway leading to a large turning circle with parking for several vehicles. There are colourful planted borders to the front of the house and tall hedging providing privacy and shelter.
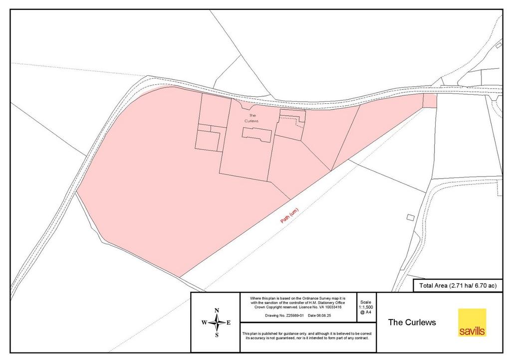
There are lawned areas to the side and back of the driveway and stone steps leading to a wicket gate into a paddock area which has previously housed chickens which would make an ideal kitchen garden or allotment. Adjacent to this paddock is an additional plot, lane side, which has lapsed planning permission for an annexe.
The south-facing gardens at the rear of the property are predominantly laid to lawn with gated side access. There is a greenhouse, stone borders, amazing views, sheltered hedged borders and two raised areas offering separate seating and privacy. The expansive views stretch toward the Shropshire Hills in complete seclusion. The terrace runs the full length of the rear of the house perfect for al fresco dining and entertaining.
The main drive also provides access through a five-bar gate into the stable yard where there are four loose boxes, a foaling bay, tack room/stable and a hay barn. All boxes have automatic water drinkers and electricity connected. The yard itself has a concrete walkway and a gravel area with a grass paddock within the centre. Beyond this are four paddocks with gated access and post and rail fencing.
Location
Great Lyth is a picturesque hamlet comprising of just seven properties, surrounded by breathtaking countryside. This quiet, tranquil location is ideal for those seeking to escape the hustle and bustle of city life.
Just one mile away lies Lyth Hill, part of the Shropshire Hills Area of Outstanding Beauty (ANOB), now classified as a National Landscape. This park covers an area of 69 acres and is home to a variety of wildlife including deer, badgers and foxes. It is also ideal for walking, cycling, and picnicking and offers panoramic views of the surrounding countryside. From here there are also several accessible bridlepaths and footpaths.
Local amenities include a small grocery shop, pub, café and medieval church all within one mile of The Curlews. Shrewsbury town centre is a 15-minute drive away, while Stoneyford Riding School is conveniently located half a mile away from the property.
Regular bus services connect Lyth Hill to Shrewsbury, where numerous attractions can be enjoyed including Theatre Severn, an abundance of cafés and restaurants, the Quarry Park and lovely riverside walks along the River Severn.
Longden C of E Primary School, Shrewsbury School, Prestfelde, Shrewsbury High School, The Priory School, Meole Brace Academy, Condover C of E Primary School are all Ofsted rated Good or Outstanding schools within 6 miles of The Curlews.
Shrewsbury railway station offers paid parking and regular services operated by Avanti West Coast and Transport for Wales connecting London to Shrewsbury in about 2hrs 27m. Cardiff to Shrewsbury in 1hr 49m and Birmingham to Shrewsbury in 55m (all times are approximate).
Square Footage: 2,937 sq ft
Acreage: 6.7 Acres
Additional Info
Council tax band- Shropshire, G
Mains water, electricity. Drainage by way of a septic tank. Oil central heating.
There is a right of way over part of the land.
Brochure prepared 2025/09 BTJ
Photographs 2025/08 E-House
Description
The Curlews is an exceptional family home situated in a beautiful private location with far-reaching, uninterrupted views across the South Shropshire hills. The property was built in 1953 and was extended some years later. The current owners have resided here for almost 30 years. This spacious family home offers generous, flowing accommodation in a wonderfully peaceful and tranquil setting. Notable features include striking solid oak arched doorways and window frames, complemented by bespoke fitted oak wardrobes, display cabinets and decorative arched windows crafted by a local Shrewsbury company.
The Curlews offers two front entrances with the current owners preferring to use the entrance that leads directly into the hall and kitchen for daily use. The hall has a utility room to the left-hand side which has fitted units and space for white goods.
The family kitchen is straight ahead with the formal dining room to the right. The kitchen window, overlooking the spectacular uninterrupted views of the fields and hills beyond the garden, is fitted with shaker style wall and base units. There is an electric Rangemaster oven with hob, integrated Bosch dishwasher and larder fridge together with granite worktops with partial splash back and a central island/breakfast bar. From here there is a door leading outside to the terrace and gardens. The kitchen provides access into an office with a further door leading into a boot room, separate WC, the central heating boiler and a further door leading outside to the gardens.
The formal dining room offers plenty of space for family gatherings and overlooks the front garden. A door out of the dining room leads into the formal hall where there is access to the main front door and a cloak room with a further separate WC. An oak French polished display cabinet is a particular feature of the main hall which leads into a sitting room with a York Minster stone open fireplace with decorative arched windows either side. This room also offers views of the gardens, fields and hills.
A comfortable living room features an open fire with a decorative surround and overlooks the rear gardens. French doors provide direct access to the terrace, with a further door leading to the kitchen.
Stairs rise from the main entrance hall onto the first floor which has a full height arched window and a gallery landing. All the bedrooms are situated at the rear of the property to maximize the spectacular views. To the left of the landing is bedroom 4 which is a spacious double room with a separate WC and separate room with a shower cubicle.
Bedroom 3 is a double room again overlooking the fabulous views. There is a separate family bathroom with a bath and shower over. Bedroom 5 is the smallest of the rooms but is still a double room. Bedroom 2 is a spacious double room and there is an airing cupboard situated on the landing.
The principal bedroom has impressive built-in oak wardrobes designed and crafted by a local Shrewsbury company and decorative arched windows.
The en-suite bathroom includes a corner bath and separate walk-in shower. Again, the wonderful views can be seen from this room.
Outside
The Curlews is approached through stone walls on either side of the tarmac driveway leading to a large turning circle with parking for several vehicles. There are colourful planted borders to the front of the house and tall hedging providing privacy and shelter.
There are lawned areas to the side and back of the driveway and stone steps leading to a wicket gate into a paddock area which has previously housed chickens which would make an ideal kitchen garden or allotment. Adjacent to this paddock is an additional plot, lane side, which has lapsed planning permission for an annexe.
The south-facing gardens at the rear of the property are predominantly laid to lawn with gated side access. There is a greenhouse, stone borders, amazing views, sheltered hedged borders and two raised areas offering separate seating and privacy. The expansive views stretch toward the Shropshire Hills in complete seclusion. The terrace runs the full length of the rear of the house perfect for al fresco dining and entertaining.
The main drive also provides access through a five-bar gate into the stable yard where there are four loose boxes, a foaling bay, tack room/stable and a hay barn. All boxes have automatic water drinkers and electricity connected. The yard itself has a concrete walkway and a gravel area with a grass paddock within the centre. Beyond this are four paddocks with gated access and post and rail fencing.
Location
Great Lyth is a picturesque hamlet comprising of just seven properties, surrounded by breathtaking countryside. This quiet, tranquil location is ideal for those seeking to escape the hustle and bustle of city life.
Just one mile away lies Lyth Hill, part of the Shropshire Hills Area of Outstanding Beauty (ANOB), now classified as a National Landscape. This park covers an area of 69 acres and is home to a variety of wildlife including deer, badgers and foxes. It is also ideal for walking, cycling, and picnicking and offers panoramic views of the surrounding countryside. From here there are also several accessible bridlepaths and footpaths.
Local amenities include a small grocery shop, pub, café and medieval church all within one mile of The Curlews. Shrewsbury town centre is a 15-minute drive away, while Stoneyford Riding School is conveniently located half a mile away from the property.
Regular bus services connect Lyth Hill to Shrewsbury, where numerous attractions can be enjoyed including Theatre Severn, an abundance of cafés and restaurants, the Quarry Park and lovely riverside walks along the River Severn.
Longden C of E Primary School, Shrewsbury School, Prestfelde, Shrewsbury High School, The Priory School, Meole Brace Academy, Condover C of E Primary School are all Ofsted rated Good or Outstanding schools within 6 miles of The Curlews.
Shrewsbury railway station offers paid parking and regular services operated by Avanti West Coast and Transport for Wales connecting London to Shrewsbury in about 2hrs 27m. Cardiff to Shrewsbury in 1hr 49m and Birmingham to Shrewsbury in 55m (all times are approximate).
Square Footage: 2,937 sq ft
Acreage: 6.7 Acres
Additional Info
Council tax band- Shropshire, G
Mains water, electricity. Drainage by way of a septic tank. Oil central heating.
There is a right of way over part of the land.
Brochure prepared 2025/09 BTJ
Photographs 2025/08 E-House
Property information from this agent
About this agent

Since 1997 Savills Telford have been providing a best-in-class service with wide-ranging specialist knowledge coupled with local expertise. We have an unparalleled understanding of all aspects of rural and residential property and work together seamlessly with our colleagues in wider property sectors including development, planning and commercial across our national and international Savills network. This provides our clients with an unmatched depth of resources, industry leading research teams, database contacts and expertise. Most visited website Savills.co.uk is the most visited UK national estate agency website, averaging over 2.4 million visits a month in 2020, and recording over 3.1 million visits in January 2021. Global exposure Our site is available in 22 languages including English, Chinese, Spanish and Russian. This guarantees your property will have the global exposure it deserves as well as providing access to more buyers via our website. Put simply, because we get more qualified visits, you get more opportunities to sell.






































Floorplan