Popular
Total views: 2500+
Offers over
£200,000Barn conversion for sale
The Barn, Accraplatts, Kirkby Malham, Skipton
Featured
Ground source heat pump
Solar panels
Barn conversion
2632
Key information
Features and description
- *please refrain from blocking the lane*
- 3/4 Bed barn conversion with planning permission
- Local occupancy or short term holiday let restriction
- Land by separate negotiation
- Stunning countryside views
- The planning authority is Yorkshire Dales National Park
- Planning Reference: C/61/10 A
The Barn offers an opportunity for conversion into a spacious 3/4-bedroom property, surrounded by stunning rolling Yorkshire Dales landscapes. It is set in a picturesque location moment from the magnificent landscapes of Malham Cove.
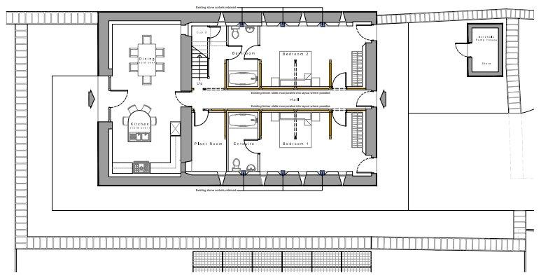
A rare opportunity to convert a barn with planning permission to create a three-bedroom dwelling for local occupancy or short term holidays lets. together with formalising two car-parking spaces; installation of a new cattle grid, new borehole with pumphouse, ground-mounted solar panels, package sewage treatment plant, ground source heat pump; and construction of a new boundary wall. The detached barn, which was re-roofed in the 1990's is set in approx. 0.24 acres and offers a wealth of splendid character features and period charm. The historic structure features handsome stone elevations and occupies a rural, dramatic hilltop position surrounded by sweeping Yorkshire Dales landscapes. The robust structure of the barn dates from 1861 and stands out against the rolling green fields surrounding the property, with the building comprising more than 2,600 square feet of floor space across two levels. Inside, the structure features original internal timber framing, including cattle pens, which could be retained in places and repurposed to create a comfortable, flexible living space. The plans show a kitchen/dining area on the ground floor and a further bedroom with ensuite and a living area on the first floor, perfect for enjoying the countryside views.
Bill Bryson, the renowned travel writer who lived for many years in the Yorkshire Dales commented about The Barn: "I don't believe i ever failed to marvel at that barn - for how beautifully it was built and how perfectly it enhanced its setting. I've no idea why it was built where it was ... still less why it was built with such handsome and scruplulous care, but thank goodness it was, for it really is a treasure".
*Viewings: We advise you not to enter the building during viewings for safety reasons.*
Strutt and Parker have had no input and attach no responsibility to the architect plans on this page.
Prospective purchasers are advised that they should make their own enquiries of the local planning authority as to the future development potential of the barn - C/61/10A
The barn enjoys views towards Pendle Hill, Skipton and Ilkley. The surrounding landscape is gently rolling farmland, with expansive green fields grazed by cattle, giving the location a tranquil atmosphere.
There is an opportunity to purchase an additional nine acres of land, by separate negotiation.
The village of Kirby Malham has a local pub, a village hall and a parish church, while the nearest primary school is between the villages and its slightly larger neighbour Malham. Settle provides easy access to a range of amenities, including shops, cafés, pubs and supermarkets, as well as being home to the nearest state secondary school. 13 miles to the south, Skipton offers a further choice of amenities and schools, including the sought after Grammar Schools Ermysteds and Skipton Girls School. The A59 at Skipton provides access towards the A1(M) and the historic town of Harrogate. Settle’s mainline station provides services to Shipley, where connections can be made to London King’s Cross.
A rare opportunity to convert a barn with planning permission to create a three-bedroom dwelling for local occupancy or short term holidays lets. together with formalising two car-parking spaces; installation of a new cattle grid, new borehole with pumphouse, ground-mounted solar panels, package sewage treatment plant, ground source heat pump; and construction of a new boundary wall. The detached barn, which was re-roofed in the 1990's is set in approx. 0.24 acres and offers a wealth of splendid character features and period charm. The historic structure features handsome stone elevations and occupies a rural, dramatic hilltop position surrounded by sweeping Yorkshire Dales landscapes. The robust structure of the barn dates from 1861 and stands out against the rolling green fields surrounding the property, with the building comprising more than 2,600 square feet of floor space across two levels. Inside, the structure features original internal timber framing, including cattle pens, which could be retained in places and repurposed to create a comfortable, flexible living space. The plans show a kitchen/dining area on the ground floor and a further bedroom with ensuite and a living area on the first floor, perfect for enjoying the countryside views.
Bill Bryson, the renowned travel writer who lived for many years in the Yorkshire Dales commented about The Barn: "I don't believe i ever failed to marvel at that barn - for how beautifully it was built and how perfectly it enhanced its setting. I've no idea why it was built where it was ... still less why it was built with such handsome and scruplulous care, but thank goodness it was, for it really is a treasure".
*Viewings: We advise you not to enter the building during viewings for safety reasons.*
Strutt and Parker have had no input and attach no responsibility to the architect plans on this page.
Prospective purchasers are advised that they should make their own enquiries of the local planning authority as to the future development potential of the barn - C/61/10A
The barn enjoys views towards Pendle Hill, Skipton and Ilkley. The surrounding landscape is gently rolling farmland, with expansive green fields grazed by cattle, giving the location a tranquil atmosphere.
There is an opportunity to purchase an additional nine acres of land, by separate negotiation.
The village of Kirby Malham has a local pub, a village hall and a parish church, while the nearest primary school is between the villages and its slightly larger neighbour Malham. Settle provides easy access to a range of amenities, including shops, cafés, pubs and supermarkets, as well as being home to the nearest state secondary school. 13 miles to the south, Skipton offers a further choice of amenities and schools, including the sought after Grammar Schools Ermysteds and Skipton Girls School. The A59 at Skipton provides access towards the A1(M) and the historic town of Harrogate. Settle’s mainline station provides services to Shipley, where connections can be made to London King’s Cross.
Property information from this agent
Area statistics
Crime score
Low crime
0/10
About this agent

One of the UK’s leading agents in selling, buying and letting town and country houses and cottages, London houses and flats, new homes, farms and estates and residential development land around the country with expert local knowledge backed up by national expertise to ensure a quality service. With a network of over 50 offices nationwide, and 11 offices in Central London, plus our international reach through our memberships with Leading Real Estate Companies of the World® and Luxury Portfolio International, we are well placed to handle any property requirement.




















Floorplan
Area stats