Popular
Total views: 2500+
Residential development for sale
High Road & 9-10 Johnston Road, Woodford Green
Residential development
2605
EPC rating: C
Key information
Tenure: Freehold
Council tax: Ask agent
Features and description
- Unique development opportunity
- Prominent corner property overlooking The Green/Duckpond
- Comprising loft space totalling approx 2,605 sq ft
- Planning consent granted for 3 apartments (1 x 1 bedroom & 2 x 2 bedroom)
- High Road location
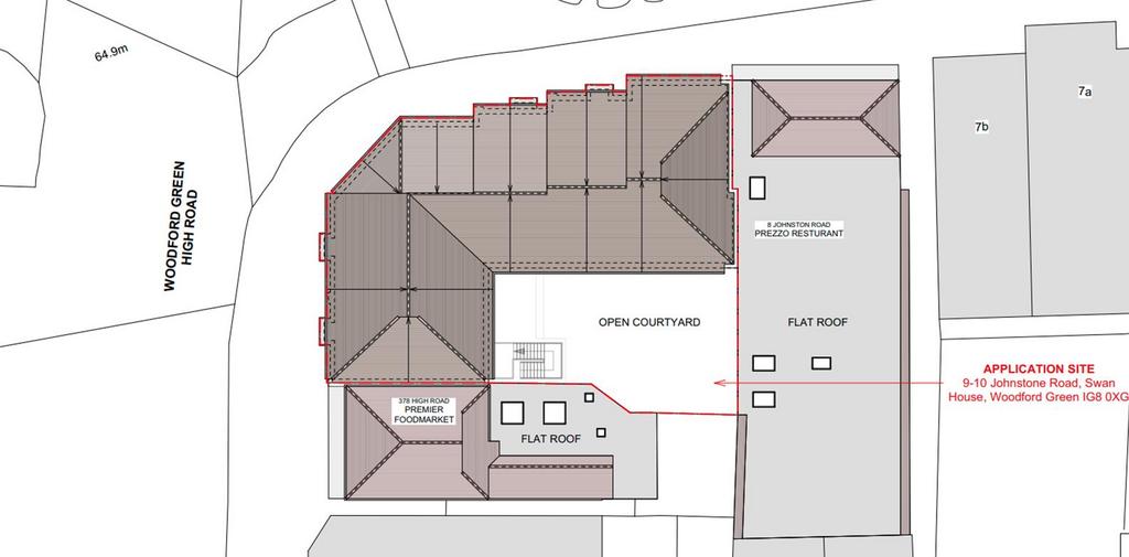
* DEVELOPMENT OPPORTUNITY FOR SALE * - Located prominently on the corner of Johnston Road and High Road, Woodford Green (A104). This particular section of the High Road consists of a variety of shops, restaurants, offices and flats. Woodford Underground Station is on the Central Line and provides a regular service into Central London. Comprising the loft space above a commercial building consisting of shops and offices. Above the 1st floor offices is vacant loft space with a total approximate gross internal area of 2,605 sq ft (242 sq m). Planning consent has been granted (Ref no 0513/22) to convert the loft space into 3 self-contained apartments (one x 1-bedroom & two x 2-bedroom) with balconies/terraces, associated amenity space, landscaping, together with cycle and refuse storage. For further information, please call CLARKE HILLYER on[use Contact Agent Button].
Location - The property is located prominently on the corner of Johnston Road and High Road, Woodford Green (A104). This particular section of the High Road consists of a variety of shops, restaurants, offices and flats. Woodford Underground Station is on the Central Line and provides a regular service into Central London. Access to the motorway network is via Junction 26 of the M25 at Waltham Abbey or via the North Circular Road (A406) at The Waterworks roundabout and local buses serve this location.
Description - Comprising the loft space above a commercial building consisting of shops and offices. Above the 1st floor offices is vacant loft space with a total approximate gross internal area of 2,605 sq ft (242 sq m).
All measurements quoted are approximate only.
Planning - Planning consent has been granted (Ref no 0513/22) to convert the loft space into 3 self-contained apartments (one x 1-bedroom & two x 2-bedroom) with balconies/terraces, associated amenity space, landscaping, together with cycle and refuse storage. Once the development is finished, the accommodation will be more particularly described as follows:
Flat A: 517 sq ft (48 sq m).
Flat B: 667 sq ft (62 sq m).
Flat C: 786 sq ft (73 sq m).
All measurements quoted are approximate and on the basis of Gross Internal Area.
Terms - The premises are available by way of long lease, with the benefit of the planning consent, for £650,000.
Viewings - Strictly via sole agents Clarke Hillyer, tel[use Contact Agent Button].
Epc - 384 High Road has an Energy Performance Certificate rating of C.
Location - The property is located prominently on the corner of Johnston Road and High Road, Woodford Green (A104). This particular section of the High Road consists of a variety of shops, restaurants, offices and flats. Woodford Underground Station is on the Central Line and provides a regular service into Central London. Access to the motorway network is via Junction 26 of the M25 at Waltham Abbey or via the North Circular Road (A406) at The Waterworks roundabout and local buses serve this location.
Description - Comprising the loft space above a commercial building consisting of shops and offices. Above the 1st floor offices is vacant loft space with a total approximate gross internal area of 2,605 sq ft (242 sq m).
All measurements quoted are approximate only.
Planning - Planning consent has been granted (Ref no 0513/22) to convert the loft space into 3 self-contained apartments (one x 1-bedroom & two x 2-bedroom) with balconies/terraces, associated amenity space, landscaping, together with cycle and refuse storage. Once the development is finished, the accommodation will be more particularly described as follows:
Flat A: 517 sq ft (48 sq m).
Flat B: 667 sq ft (62 sq m).
Flat C: 786 sq ft (73 sq m).
All measurements quoted are approximate and on the basis of Gross Internal Area.
Terms - The premises are available by way of long lease, with the benefit of the planning consent, for £650,000.
Viewings - Strictly via sole agents Clarke Hillyer, tel[use Contact Agent Button].
Epc - 384 High Road has an Energy Performance Certificate rating of C.
Property information from this agent
Area statistics
Crime score
Low crime
3/10
About this agent

Clarke Hillyer is proud of its heritage. Established in 1885, Clarke Hillyer grew to be one of East London and West Essex foremost property companies. Core values of professionalism, customer service and integrity have enabled us to retain some of our clients through the generations for over 100 years.








Floorplan
Area stats