Total views: 848
Land for sale
Land Moreton Lane, Bishopstone
Land
Features and description
- Building plot
- Planning granted for detached house
- Approximately 412sqm plot
- Located between Aylesbury & Princes Risborough
- Village location
- Conservation area
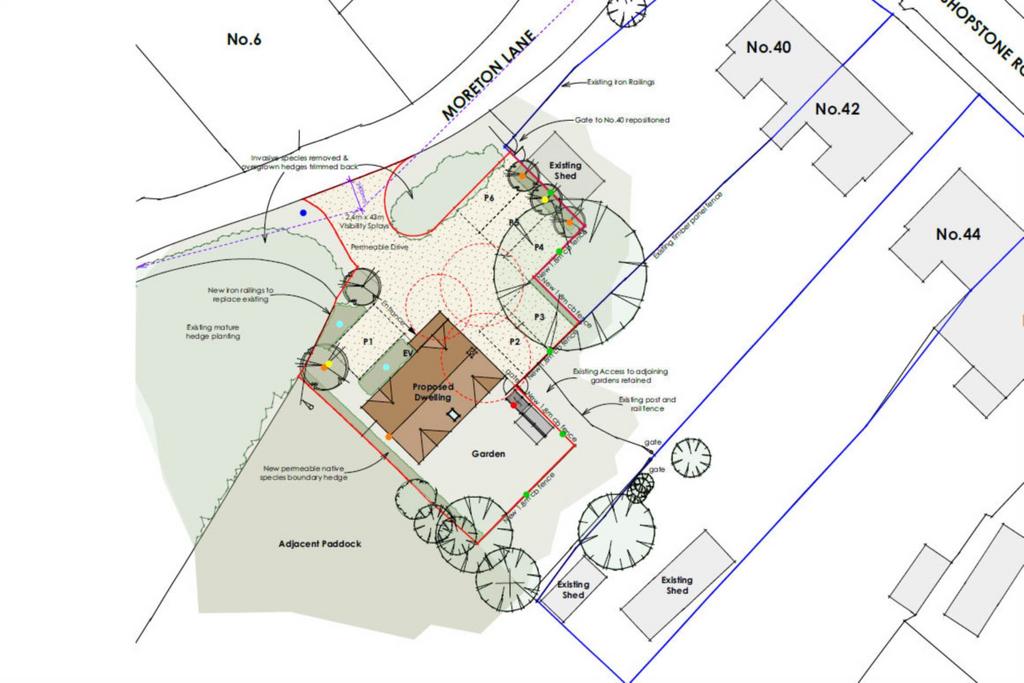
BUILDING PLOT - PLANNING CONSENT GRANTED A 412 square meter site with planning consent granted for a three bedroom detached house. The building plot is located in the Buckinghamshire village of Bishopstone between Aylesbury & Princes Risborough. PLEASE NOTE - Any buyer will be responsible for clearing the site & developing 4 additional parking spaces for the existing houses. The plot will remain on the market until Friday 28th February and all offers will need to submitted prior to that date. Planning Application Reference - 24/00991/APP
Notice
Please note we have not tested any apparatus, fixtures, fittings, or services. Interested parties must undertake their own investigation into the working order of these items. All measurements are approximate and photographs provided for guidance only.
Notice
Please note we have not tested any apparatus, fixtures, fittings, or services. Interested parties must undertake their own investigation into the working order of these items. All measurements are approximate and photographs provided for guidance only.
Property information from this agent
About this agent

Hillyards Estate Agents - Aylesbury
5 Villiers Buildings, Buckingham Street
Aylesbury
HP20 2LE
01296 537249Hillyards are an independent firm of Estate Agents providing a comprehensive service to our customers. Based in Aylesbury, Buckinghamshire, we deal with all aspects of Residential Sales & Lettings in and around Aylesbury and the surrounding areas. Well Established Local Business Established in 2002, Hillyards Estate Agents has built a reputation for exceptional customer service and vast local knowledge with the foresight of ensuring all our customers have the best experience possible. Extensive Internet Marketing We list all of our sales & rental properties on the major property portals as well as on our own website. All the listings will have multiple photos, floor plans, full colour brochures, local information and much more. Extended Opening Hours We’re open 7 days a week and until 6:30pm on weekdays. Experienced Local Staff All of our staff are local to the area and offer a wealth of experience in the property industry. No Sale No Fee With Hillyards there are no upfront costs or additional charges and we work on a strict ‘no sale no fee’ basis. If the sale doesn’t complete you don’t pay any fees. Professionalism Hillyards are a member of The Property Ombudsman. The memberships provide sellers and buyers with an assurance that they will receive the highest level of customer service and protection. Photography Our properties benefit from well taken photographs to ensure superb presentation in all media, making your home stand out from the competition.













Floorplan