Popular
Total views: 2500+
Land for sale
Building Plot Mill Close, Winslow
Land
Features and description
- Building plot
- Planning permission granted
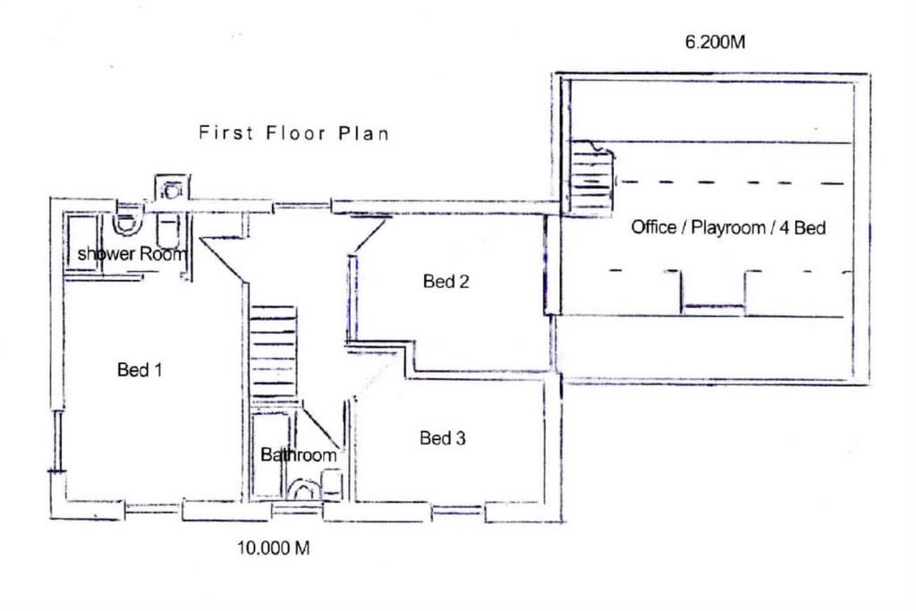
- Four bedroom detached house
- Situated in popular market town
- Close to amenities, schools & transport links
- Application Reference - 23/01679/APP
BUILDING PLOT - PLANNING CONSENT GRANTED - 1400 SQ FT DETACHED HOUSE
A building plot with planning permission granted for a 1400 sq ft detached family home located in the Buckinghamshire town of Winslow. The plot is situated on a quiet cul-de-sac and within easy reach the many amenities the town has to offer including shops, excellent schools and transport links.
PLEASE NOTE - The plot will remain on the market until Friday 30th May 2025 and all offers will need to submitted in writing with proof of funds prior to that date.
SERVICES & UTILITIES - All services are available in Mill Road. The foul sewer has been connected to the site already & the storm water has a pumping station on the adjacent green area that the property has consent to connect into.
TRANSPORT LINKS - The plot is situated within easy reach of the M1 & M40 that offer excellent link to London & Birmingham. The property also sits within half a mile of the new Winslow railway station (proposed to open in Summer 2025) that will offer links to Milton Keynes, Oxford & Bedford.
PLANNING APPLICATION REFERRANCE - 23/01679/APP
LINK TO APPLICATION & SUPPORTING DOCUMENTS (application reference required) -
Notice
Please note we have not tested any apparatus, fixtures, fittings, or services. Interested parties must undertake their own investigation into the working order of these items. All measurements are approximate and photographs provided for guidance only.
A building plot with planning permission granted for a 1400 sq ft detached family home located in the Buckinghamshire town of Winslow. The plot is situated on a quiet cul-de-sac and within easy reach the many amenities the town has to offer including shops, excellent schools and transport links.
PLEASE NOTE - The plot will remain on the market until Friday 30th May 2025 and all offers will need to submitted in writing with proof of funds prior to that date.
SERVICES & UTILITIES - All services are available in Mill Road. The foul sewer has been connected to the site already & the storm water has a pumping station on the adjacent green area that the property has consent to connect into.
TRANSPORT LINKS - The plot is situated within easy reach of the M1 & M40 that offer excellent link to London & Birmingham. The property also sits within half a mile of the new Winslow railway station (proposed to open in Summer 2025) that will offer links to Milton Keynes, Oxford & Bedford.
PLANNING APPLICATION REFERRANCE - 23/01679/APP
LINK TO APPLICATION & SUPPORTING DOCUMENTS (application reference required) -
Notice
Please note we have not tested any apparatus, fixtures, fittings, or services. Interested parties must undertake their own investigation into the working order of these items. All measurements are approximate and photographs provided for guidance only.
Property information from this agent
About this agent

Hillyards Estate Agents - Aylesbury
5 Villiers Buildings, Buckingham Street
Aylesbury
HP20 2LE
01296 537249Hillyards are an independent firm of Estate Agents providing a comprehensive service to our customers. Based in Aylesbury, Buckinghamshire, we deal with all aspects of Residential Sales & Lettings in and around Aylesbury and the surrounding areas. Well Established Local Business Established in 2002, Hillyards Estate Agents has built a reputation for exceptional customer service and vast local knowledge with the foresight of ensuring all our customers have the best experience possible. Extensive Internet Marketing We list all of our sales & rental properties on the major property portals as well as on our own website. All the listings will have multiple photos, floor plans, full colour brochures, local information and much more. Extended Opening Hours We’re open 7 days a week and until 6:30pm on weekdays. Experienced Local Staff All of our staff are local to the area and offer a wealth of experience in the property industry. No Sale No Fee With Hillyards there are no upfront costs or additional charges and we work on a strict ‘no sale no fee’ basis. If the sale doesn’t complete you don’t pay any fees. Professionalism Hillyards are a member of The Property Ombudsman. The memberships provide sellers and buyers with an assurance that they will receive the highest level of customer service and protection. Photography Our properties benefit from well taken photographs to ensure superb presentation in all media, making your home stand out from the competition.













Floorplan