Popular
Total views: 2500+
Guide price
£800,0004 bedroom barn conversion for sale
Yapton Lane, Walberton, Arundel, West Sussex
Featured
Barn conversion
4 beds
4 baths
Key information
Tenure: Freehold
Council tax: Ask agent
Features and description
- Substantial barn and stables
- Potential for conversion
- Planning permission to create four bedroom home
- Peaceful rural location
- Just outside sought after village
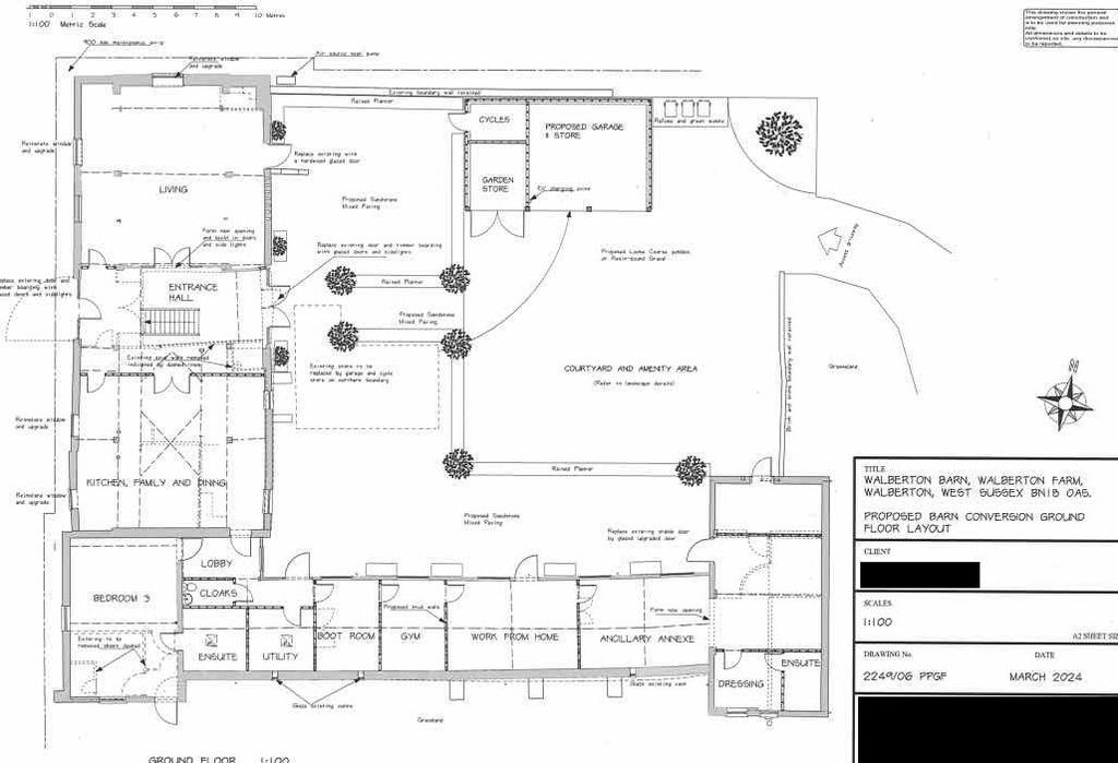
Walberton Barn is a substantial red-brick barn and stables, offering the potential for conversion into a handsome and characterful family home. With planning permission in place (Arun District Council ref. WA/95/24/PL, granted 14/1/25) to convert the structure into a four-bedroom dwelling, the proposals include a three-bedroom main house with a self contained one-bedroom ancillary annexe, which could provide valuable additional accommodation for family members or lodgers.
The current structure features the large barn with its sweeping roof and heavy internal timber framing, which is proposed to house a welcoming reception hall at its centre, with glazed doors and sidelights providing a light, airy feel to the entrance. There will be two large reception rooms to either side – a generous sitting room and an open-plan kitchen, family room and dining area. Both rooms will feature windows to the courtyard at the front, and onto the west-facing garden at the rear. Located in the current stables complex which is also of brick construction with internal timber framing, there will be one ground-floor double bedroom en suite, as well as a utility room, a boot room, a gym and an office for home working. At the end of the current stables block
there will also be the separate annexe with its living area and one double bedroom en suite. Upstairs there is a proposed galleried central landing, bringing light to the reception hall below. Off the landing there will be two generous, luxury double bedrooms among the timber eaves, with skylights affording views across the surrounding countryside. Both bedrooms will feature their own dressing rooms and en suite bathrooms.
The barn is situated on a peaceful lane, which is shared with the farmhouse. The lane leads to the courtyard around which the barn and stables is centred, providing plenty of parking. The courtyard is the site of a proposed double garage, cycle store and garden store while the plans describe raised planters surrounding a patio area at the front. There is an option to rent or purchase separate paddock land to the east available by separate negotiation.
The property is situated in a stunning rural location just outside the village of Walberton, close to the beautiful West Sussex coastline, the downs, Chichester and Arundel. Walberton provides various everyday amenities, including a local shop, a pub, a village hall and a primary school, with neighbouring Yapton and Barnham providing additional facilities. Arundel is just four miles away. Famous for its magnificent castle, which sits in a commanding, elevated position overlooking the town centre, the town has plenty of local amenities and facilities, including a good selection of shops and supermarkets, restaurants and cafés. There are several good schools in Arundel, while the outstanding-rated St Philip Howard Catholic School is in Barnham, and the reputable independent Slindon College is also within easy reach. The property is also well positioned to reach the large towns and cities nearby, including Chichester and Worthing, all via the A27, while the Arundel’s mainline station offers services to London Victoria (1 hour 25 minutes).
The current structure features the large barn with its sweeping roof and heavy internal timber framing, which is proposed to house a welcoming reception hall at its centre, with glazed doors and sidelights providing a light, airy feel to the entrance. There will be two large reception rooms to either side – a generous sitting room and an open-plan kitchen, family room and dining area. Both rooms will feature windows to the courtyard at the front, and onto the west-facing garden at the rear. Located in the current stables complex which is also of brick construction with internal timber framing, there will be one ground-floor double bedroom en suite, as well as a utility room, a boot room, a gym and an office for home working. At the end of the current stables block
there will also be the separate annexe with its living area and one double bedroom en suite. Upstairs there is a proposed galleried central landing, bringing light to the reception hall below. Off the landing there will be two generous, luxury double bedrooms among the timber eaves, with skylights affording views across the surrounding countryside. Both bedrooms will feature their own dressing rooms and en suite bathrooms.
The barn is situated on a peaceful lane, which is shared with the farmhouse. The lane leads to the courtyard around which the barn and stables is centred, providing plenty of parking. The courtyard is the site of a proposed double garage, cycle store and garden store while the plans describe raised planters surrounding a patio area at the front. There is an option to rent or purchase separate paddock land to the east available by separate negotiation.
The property is situated in a stunning rural location just outside the village of Walberton, close to the beautiful West Sussex coastline, the downs, Chichester and Arundel. Walberton provides various everyday amenities, including a local shop, a pub, a village hall and a primary school, with neighbouring Yapton and Barnham providing additional facilities. Arundel is just four miles away. Famous for its magnificent castle, which sits in a commanding, elevated position overlooking the town centre, the town has plenty of local amenities and facilities, including a good selection of shops and supermarkets, restaurants and cafés. There are several good schools in Arundel, while the outstanding-rated St Philip Howard Catholic School is in Barnham, and the reputable independent Slindon College is also within easy reach. The property is also well positioned to reach the large towns and cities nearby, including Chichester and Worthing, all via the A27, while the Arundel’s mainline station offers services to London Victoria (1 hour 25 minutes).
Property information from this agent
About this agent

One of the UK’s leading agents in selling, buying and letting town and country houses and cottages, London houses and flats, new homes, farms and estates and residential development land around the country with expert local knowledge backed up by national expertise to ensure a quality service. With a network of over 50 offices nationwide, and 11 offices in Central London, plus our international reach through our memberships with Leading Real Estate Companies of the World® and Luxury Portfolio International, we are well placed to handle any property requirement.


















