Popular
Total views: 2500+
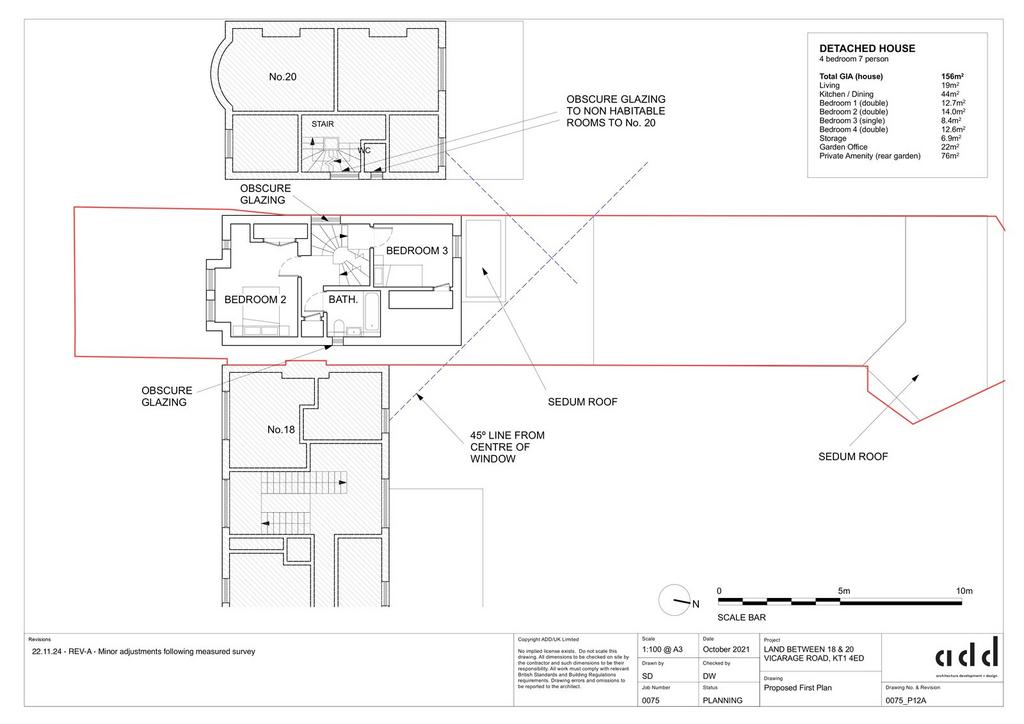
Land for sale
Vicarage Road, Kingston Upon Thames
Land
1453
EPC rating: C
Key information
Features and description
- Plot for sale
- Planning permission granted
- Deatched family home
- Four bedrooms
- Sought after location
- Close to station and Royal Bushy Park
This is a wonderful opportunity to purchase a great plot with planning permission to build a detached house at Vicarage Road Hampton Wick. Situated within moments of Royal Bushy Park this architecturally designed property would be perfect for someone who is looking to build their dream home. The property would provide four bedrooms, ample living space, kitchen dining room and rear garden.
Once completed this fantastic four bedroom home would be valued in the region of cira £1,450,000 to £1,500,000.
Once completed this fantastic four bedroom home would be valued in the region of cira £1,450,000 to £1,500,000.
About this agent

Chase Buchanan has provided exceptional property services for over 30 years. Our highly experienced, professional staff are on hand to help whether you are looking to buy, sell, let or rent. The teams' vast experience means we are able to assist our clients and provide a first-class service from start to finish. With over 15 well located, long established branches we are the number one choice across the South West of England and South West London.













