Popular
Total views: 2500+
3 bedroom property with land for sale
Building Plot at Levant, Trewellard, St Just, TR19 7SR
Study
Plot
3 beds
2 baths
Key information
Features and description
- Lovely sea views
- Plot with detailed planning permission for a 3/4 bedroom detached house
- Offering: lounge/dining room * kitchen
- Bedroom four to the ground floor
- Tech room * cloakroom
- Three bedrooms to first floor * dressing room * two bathrooms
- Good size plot with ample parking and garden area
- Conveniently placed for local amenities
- Access to the cornish coastal path
- Cil charge £15,751.57 * council tax band = tbc
Lovely sea views over surrounding countryside and beyond from this rare opportunity to acquire a building plot with detailed planning permission for a three/four bedroom detached family home by Dan-Wood which are built to high energy efficiency and 'turn key' ready, with input from purchaser on the final internals, offering a good degree of privacy and with direct sea views, from the first floor. The site is centrally located on the outskirts of Trewellard, with further option of a nearby paddock of approximately 1 acre, available by separate negotiation. The site is conveniently positioned, close to most local amenities. Due to the high demand for properties such as this we recommend an early appointment. Planning REF: PA20/00878 agreed on appeal. There is a CIL charge £15,751.57
Property additional info
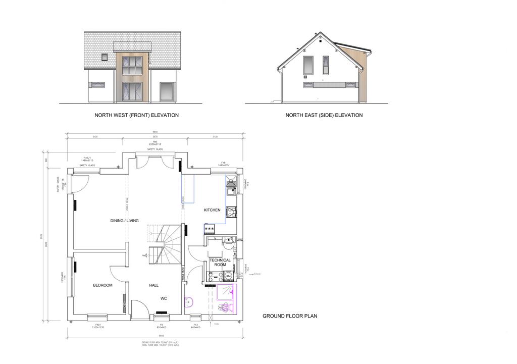
PROPOSED ACCOMMODATION:
ENTRANCE HALL:
LIVING ROOM/DINING ROOM:
Opening into:
KITCHEN:
BEDROOM FOUR/STUDY:
SHOWER ROOM:
TECH ROOM:
Central staircase to:
FIRST FLOOR LANDING:
MAIN BEDROOM:
DRESSING ROOM:
EN SUITE:
BEDROOM TWO:
BEDROOM THREE:
FAMILY BATHROOM:
OUTSIDE:
Gardens surround with ample parking and turning area.
NB:
This layout can be altered internally, subject to any necessary planning permission, a small lane will be formed at the bottom of the plot which will be retained for access to the adjoining field. There is a CIL charge of £15,751.57.
SERVICES:
Close by. A new septic tank will have to be installed.
DIRECTIONS:
Via "What3Words" app: ///definite.armful.myths
Property additional info
PROPOSED ACCOMMODATION:
ENTRANCE HALL:
LIVING ROOM/DINING ROOM:
Opening into:
KITCHEN:
BEDROOM FOUR/STUDY:
SHOWER ROOM:
TECH ROOM:
Central staircase to:
FIRST FLOOR LANDING:
MAIN BEDROOM:
DRESSING ROOM:
EN SUITE:
BEDROOM TWO:
BEDROOM THREE:
FAMILY BATHROOM:
OUTSIDE:
Gardens surround with ample parking and turning area.
NB:
This layout can be altered internally, subject to any necessary planning permission, a small lane will be formed at the bottom of the plot which will be retained for access to the adjoining field. There is a CIL charge of £15,751.57.
SERVICES:
Close by. A new septic tank will have to be installed.
DIRECTIONS:
Via "What3Words" app: ///definite.armful.myths
Property information from this agent
About this agent

Marshalls Estate Agents is West Cornwall's leading Independent Estate agent with five offices locally & links to over 1,300 nationwide. Please contact us for any property related query, whether you are looking to buy, sell, rent or let.








