Popular
Total views: 2500+
From
£600,0005 bedroom detached house for sale
Horne, Horley, Surrey, RH6
Detached house
5 beds
2 baths
2131
Key information
Tenure: Freehold
Council tax: Ask agent
Features and description
- Former village shop
- 4/5 Bedrooms
- Living room and dining area
- Double garage and parking
- Garden
- Great opportunity for improvement
- Downstairs shower room
- Utility
- One bedroom annex
Video tours
OFFERED TO THE MARKET ON A PRICE GUIDE OF £600,000 - £625,000.
Mayhew Estates are delighted to offer to the market ‘Old Horne Stores’ in the rural village of Horne. This former village shop was converted into a 4/5 bedroom family home with a separate annex and enjoys a surprising amount of space. In need of modernisation this is an exciting opportunity for a buyer to create their forever family home. A viewing is recommended!
The property comprises of a large living room and dining area, the high ceilings help with spacious rooms and the large windows offer lots of natural light. There is plenty of room for sofas and 8 seater dining room table. In need of updating the farm house style kitchen/breakfast room has plenty of surface and storage space with room for a breakfast table. The kitchen gives access to the utility room and downstairs shower room.
On the first floor there are 4 bedrooms, the master is a large double with plenty of space for king size bed, bedside tables and wardrobes. The three further bedrooms are all doubles and have space for bedroom furniture. There is also a family bathroom, that has bath with overhead shower, basin and toilet.
The annex does have access from the main house but has currently been separated, the self contained annex is situated over 2 floors. On the ground floor there is a living room, kitchen and shower room. The 1st floor which is 29’8 x 10’9 is a large bedroom but could be remodelled to create further sleeping accommodation.
Outside:
To the rear of the property is a generous garden, it is currently in need of landscaping but would be a great space for a keen gardener to enjoy. There is a double garage that comfortably fits 2 cars with parking to the front of the property for 2 cars.
Mayhew Estates are delighted to offer to the market ‘Old Horne Stores’ in the rural village of Horne. This former village shop was converted into a 4/5 bedroom family home with a separate annex and enjoys a surprising amount of space. In need of modernisation this is an exciting opportunity for a buyer to create their forever family home. A viewing is recommended!
The property comprises of a large living room and dining area, the high ceilings help with spacious rooms and the large windows offer lots of natural light. There is plenty of room for sofas and 8 seater dining room table. In need of updating the farm house style kitchen/breakfast room has plenty of surface and storage space with room for a breakfast table. The kitchen gives access to the utility room and downstairs shower room.
On the first floor there are 4 bedrooms, the master is a large double with plenty of space for king size bed, bedside tables and wardrobes. The three further bedrooms are all doubles and have space for bedroom furniture. There is also a family bathroom, that has bath with overhead shower, basin and toilet.
The annex does have access from the main house but has currently been separated, the self contained annex is situated over 2 floors. On the ground floor there is a living room, kitchen and shower room. The 1st floor which is 29’8 x 10’9 is a large bedroom but could be remodelled to create further sleeping accommodation.
Outside:
To the rear of the property is a generous garden, it is currently in need of landscaping but would be a great space for a keen gardener to enjoy. There is a double garage that comfortably fits 2 cars with parking to the front of the property for 2 cars.
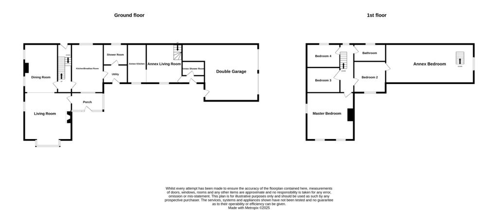
Rooms
Living Room 4.88m x 4.88m
Dining Room 5m x 3.43m
Kitchen 5m x 3.28m
Master Bedroom 4.88m x 4.88m
Bedroom 2 3.5m x 3.33m
Bedroom 3 3.45m x 2.57m
Bedroom 4 3.43m x 2.29m
Bathroom 3.33m x 1.37m
Annex Living Room 4.04m x 3.7m
Annex Kitchen 4.04m x 1.96m
Annex Bedroom 9.04m x 3.28m
Property information from this agent
About this agent

Horley is home to our founding estate and letting agent’s office, and, we have a strong connection with the town. Our friendly, local team is on hand to help you buy or sell a house, or let a property in the Horley area and beyond. Award-winning estate & letting agents in Horley Here at Mayhews we have an unprecedented commitment to customer service and continually gain feedback to ensure we maintain the high standards of service we are known for in the local area. Our team of estate agentstake pride in helping our clients move in and around some of the most beautiful parts of Surrey. Due to our success over the years, and our 100% satisfaction rate, we have added new offices in East Grinstead and Horsham. About Horley Sitting below the neighbouring towns of Reigate and Redhill in Surrey sits the popular commuter town of Horley – ideal for travellers to London and south coast destinations. The town straddles the main railway line and the A23, and is very close to Gatwick Airport. A small, yet bustling town of just over 20,000 people, Horley is a delightful residential area with a vibrant community and a wide range of leisure activities, sporting facilities, associations and clubs to suit every interest. Horley is surrounded by community of villages, which include Earlswood, Copthorne, Salfords, and Burstow. The town benefits from an excellent transportation system – in addition to frequent trains to and from London, Gatwick, and the south coast, there’s frequent buses run by Fastway, local taxis, and great access to local main roads and motorways. Like East Grinstead, Horley’s history is particularly colourful, notably with its connections to Henry VIII who took ownership of Horley Manor in 1539 after the dissolution of the monasteries.
Similar properties
Discover similar properties nearby in a single step.
















Floorplan
