Popular
Total views: 2500+
Offers in excess of
£660,000Plot for sale
Northwood Avenue, Purley, CR8
Plot
5091
EPC rating: D
Key information
Tenure: Freehold
Council tax: Ask agent
Broadband: Ultra-fast 1000Mbps *
Mobile signal:
EEO2ThreeVodafone
Features and description
Located within in a residential area providing good access to amenities. Beaumont
Primary School (Outstanding) is just 0.2 miles away, with several other well rated
schools within a mile, Reedham rail station is approximately 0.3 miles away and
provides convenient transport links.
Local shopping is available at Purley High Street,
0.6 miles distant, while larger retail options can be found at Purley Cross Retail Park,
about a mile away.
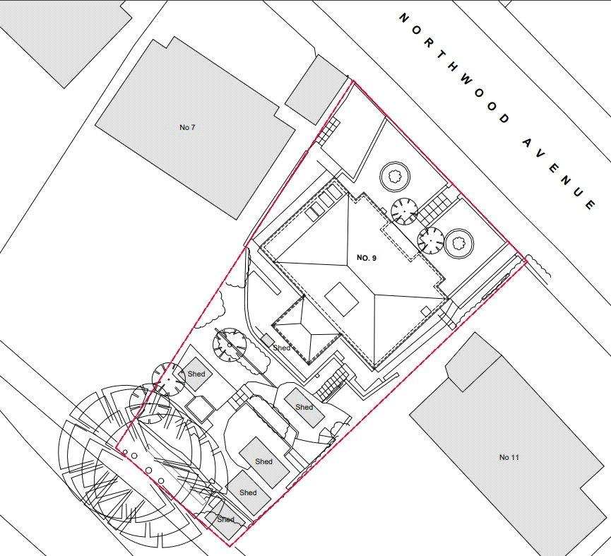
This consented development opportunity with planning granted to demolish existing buildings and construct a brand new scheme of 5 x apartments each with their own private outside space.
The breakdown of the units consists of 2 x 1 Bedroom apartments, 2 x 2 Bedroom and 1 x 3 Bedroom.
The plot size is 473 sqm and is occupied by an existing detached chalet bungalow with off street parking
CIL: £60,000
Primary School (Outstanding) is just 0.2 miles away, with several other well rated
schools within a mile, Reedham rail station is approximately 0.3 miles away and
provides convenient transport links.
Local shopping is available at Purley High Street,
0.6 miles distant, while larger retail options can be found at Purley Cross Retail Park,
about a mile away.
This consented development opportunity with planning granted to demolish existing buildings and construct a brand new scheme of 5 x apartments each with their own private outside space.
The breakdown of the units consists of 2 x 1 Bedroom apartments, 2 x 2 Bedroom and 1 x 3 Bedroom.
The plot size is 473 sqm and is occupied by an existing detached chalet bungalow with off street parking
CIL: £60,000
About this agent

Streets Ahead - New Homes



