Popular
Total views: 2500+
Guide price
£425,000Land for sale
Fairy Cross, Bideford
Featured
Land
Features and description
- Full planning permission granted for the erection of three detached properties
- Planning reference 1/0823/2024/REM on Torridge District Council website
- Building plot is set within the idyllic North Devon hamlet of Fairy Cross
- Easy access to the North Devon Link Road
- Vendors have received quotes for connecting to mains electrics
- Mains drainage and water main is located in the road providing access to the site
- Please contact our office for potential re-sale values of the properties when finished
A superb development site with full planning permission granted for the erection of three detached dwellings set in a semi-rural position with excellent access to the North Devon Link Road, offering convenient connections to Bideford, Barnstaple and beyond.
Description - Set within the peaceful and picturesque hamlet of Fairy Cross, this superb development site offers a rare opportunity to acquire a building plot with full planning permission granted for the erection of three detached dwellings. The site enjoys a semi-rural position with excellent access to the North Devon Link Road, offering convenient connections to Bideford, Barnstaple and beyond.
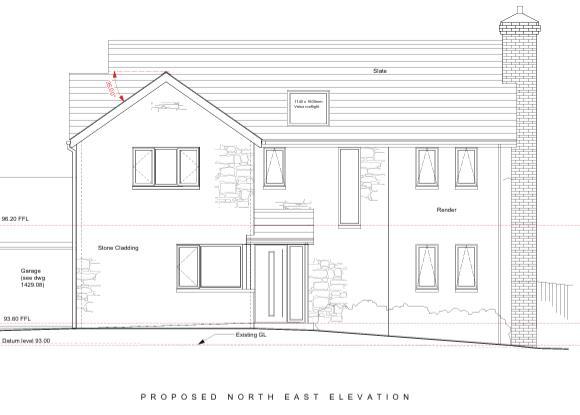
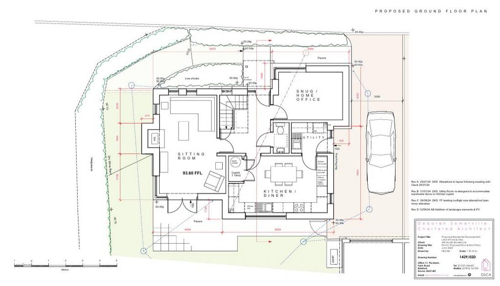
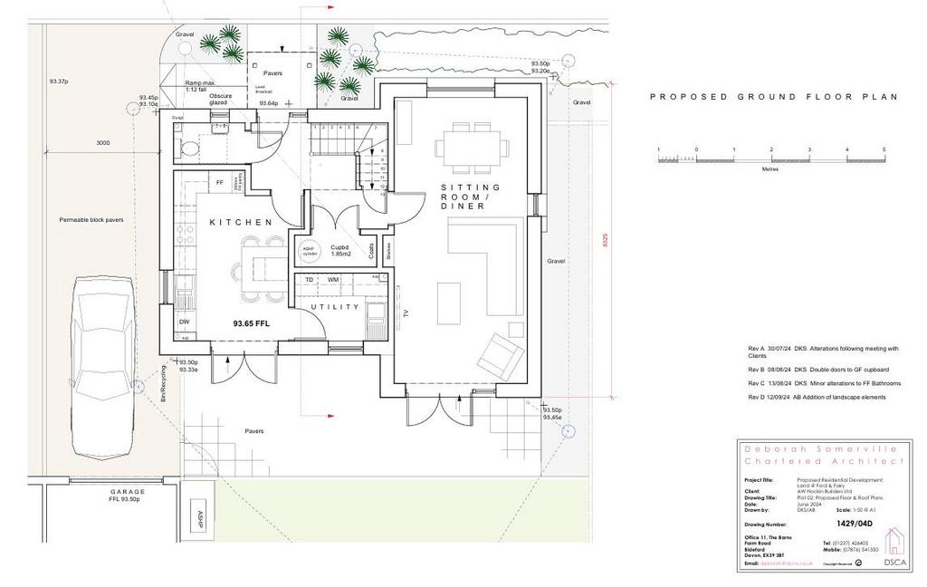
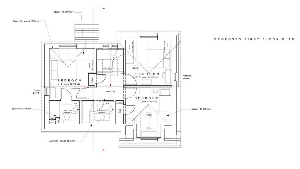
Planning permission (reference: 1/0823/2024/REM) has been approved via Torridge District Council, and the proposed development comprises a thoughtfully arranged mix of properties, each with private garages and appealing individual designs:
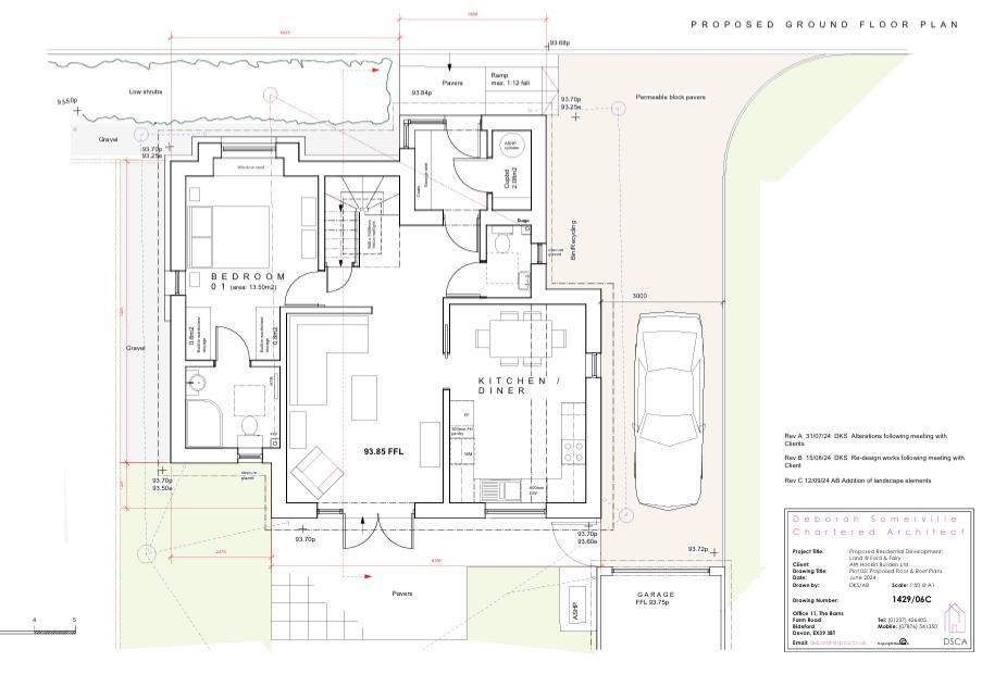
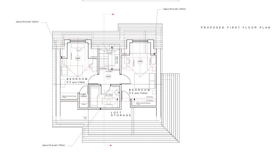
•Plot 1: A spacious four-bedroom detached house with a garage, extending to approximately 1,507 sq ft.
•Plot 2: A well-proportioned three-bedroom detached chalet bungalow with garage, extending to approximately 1,330 sq ft.
•Plot 3: A charming three-bedroom dormer bungalow with garage, extending to approximately 1,314 sq ft.
This is a superb prospect for small-scale developers or self-builders seeking a project in a tranquil yet accessible location. Re-sale values are available upon request—please contact our office for further details.
N.B: There is currently a section 106 in place on the plots, which the vendors will pay to be lifted upon completion of sale.
Situation - Fairy Cross is located approximately 4 miles away from the port and market town of Bideford and the safe and sandy beach at Westward Ho!. Just under 2 miles away is the rugged North Devon coastline, affording fantastic walks. The popular village of Abbotsham is approximately 2 miles away and benefits from a church, local thatched village inn and a renowned primary school. There is also access via Greencliff to the South West Coast Path, which offers excellent walks with stunning vistas of the rugged North Devon coastline. The retail park, Affinity, is just a short 2 mile drive away and has an excellent range of well-known branded shops and factory outlets with supermarkets adjacent. Bideford town centre sits on the banks of the River Torridge offering a range of amenities including various shops, banks, butchers, bakeries, places of worship, pubs and restaurants, schooling for all ages (public and private) and supermarkets.
Property Information - The vendors have received quotes for connection to mains electricity, and mains water and drainage are conveniently located within the adjoining road, facilitating future development works.
what3words ///alerting.bundles.courage
Description - Set within the peaceful and picturesque hamlet of Fairy Cross, this superb development site offers a rare opportunity to acquire a building plot with full planning permission granted for the erection of three detached dwellings. The site enjoys a semi-rural position with excellent access to the North Devon Link Road, offering convenient connections to Bideford, Barnstaple and beyond.
Planning permission (reference: 1/0823/2024/REM) has been approved via Torridge District Council, and the proposed development comprises a thoughtfully arranged mix of properties, each with private garages and appealing individual designs:
•Plot 1: A spacious four-bedroom detached house with a garage, extending to approximately 1,507 sq ft.
•Plot 2: A well-proportioned three-bedroom detached chalet bungalow with garage, extending to approximately 1,330 sq ft.
•Plot 3: A charming three-bedroom dormer bungalow with garage, extending to approximately 1,314 sq ft.
This is a superb prospect for small-scale developers or self-builders seeking a project in a tranquil yet accessible location. Re-sale values are available upon request—please contact our office for further details.
N.B: There is currently a section 106 in place on the plots, which the vendors will pay to be lifted upon completion of sale.
Situation - Fairy Cross is located approximately 4 miles away from the port and market town of Bideford and the safe and sandy beach at Westward Ho!. Just under 2 miles away is the rugged North Devon coastline, affording fantastic walks. The popular village of Abbotsham is approximately 2 miles away and benefits from a church, local thatched village inn and a renowned primary school. There is also access via Greencliff to the South West Coast Path, which offers excellent walks with stunning vistas of the rugged North Devon coastline. The retail park, Affinity, is just a short 2 mile drive away and has an excellent range of well-known branded shops and factory outlets with supermarkets adjacent. Bideford town centre sits on the banks of the River Torridge offering a range of amenities including various shops, banks, butchers, bakeries, places of worship, pubs and restaurants, schooling for all ages (public and private) and supermarkets.
Property Information - The vendors have received quotes for connection to mains electricity, and mains water and drainage are conveniently located within the adjoining road, facilitating future development works.
what3words ///alerting.bundles.courage
Property information from this agent
About this agent

Stags estate and letting agents office in Bideford is conveniently situated on the Quay near the Long Bridge. From here the team conducts the sale and letting of all town, village and country property and land throughout the area.


































Floorplan